小编今天带您了解一下混凝土预制建造技术的新突破!
“世构体系”的结构框架——南京市丁家庄第三小学项目
该项目是南京市首批工业化公共建筑的试点项目。
小学采用“世构体系”来构建结构框架,并采用层压地板,预制楼梯和隔墙来完成主体建筑。
南京市丁家庄第三小学
南京邦建都市建筑设计事务所

项目背景
南京丁家庄第三小学项目位于南京丁家庄保障房片区的中心社区服务带。规模为6轨制36班小学,总占地面积27500平方米,总建筑面积26800平方米。
Nanjing Dingjiazhuang No.3 Primary School Project is located in the central community service belt of dingjiazhuang affordable housing area, Nanjing. The scale is a 6-track 36-class primary school with a total site area of 27,500 square meters and a total building area of 26,800 square meters.



预制工业化
该项目是南京市首批工业化公共建筑的试点项目。选取3栋单元重复率较高的教学楼进行混凝土预制建造技术试验。
小学采用“世构体系”来构建结构框架,并采用层压地板,预制楼梯和隔墙来完成主体建筑。
外墙围护系统采用预制混凝土板。阳台由预制混凝土种植槽和金属栏杆制成;空调装置还使用了金属装配构件-整个工业建造试验部分的预制装配率接近100%。
This project is one of the first batch of pilot projects of industrialized public buildings in Nanjing. Three teaching buildings with high unit repetition rate are selected to test concrete precast construction technology. The primary school adopts the "Scope system" to construct the structural framework, and adopts laminated floors, prefabricated stairs and partition walls to complete the main building; The facade envelope system adopts precast concrete slab; The balconies are made of precast concrete planters and metal railings; Metal assembly is also used for the air conditioning units - the prefabrication rate for the entire industrial-built test section is close to 100%.



工业化语境表达
在方案设计中,我们不仅将教学楼平面作为试验部分进行优化,还最小化了预制梁柱的规格,而且希望在工业化建筑的表达方式方面有所探索。
In the program design, we not only optimize the teaching building plan as a test section, minimizing the specifications of the prefabricated beams and columns, but also hope to explore the expression of industrialized buildings.



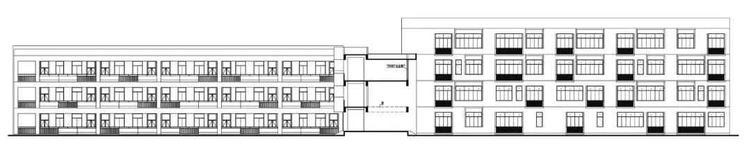
色彩和构成作为几何抽象元素被运用到建筑的外墙设计中,并与工业化建造技术相结合。其中,色彩的表达与几何图形相结合,起到分隔预制板和丰富整体效果的作用。此外,从自然景观中提取的蓝,绿和黄等主色调营造出校园欢快,自由和艺术的氛围。
而以三角与矩形为母题的构成,通过其简单的造型和多变的组合而创建的抽象性可以有效地提升空间感和立体感,形成对视觉的冲击和创造多变的可能性。
Color and composition as elements of geometric abstraction are applied to the facade design of the building and combined with the context of industrial construction techniques. Among them, the expression of color is combined with the geometric figure, which plays the role of separating prefabricated panels and enriching the overall effect. Moreover, the main colors of blue, green and yellow extracted from the natural landscape create the cheerful and free and artistic atmosphere of the campus. With the triangle and rectangle as the motif, the abstraction created by its simple shape and changeable combination can effectively enhance the sense of space and three-dimensionality, forming a visual impact and creating a possibility of changeability.



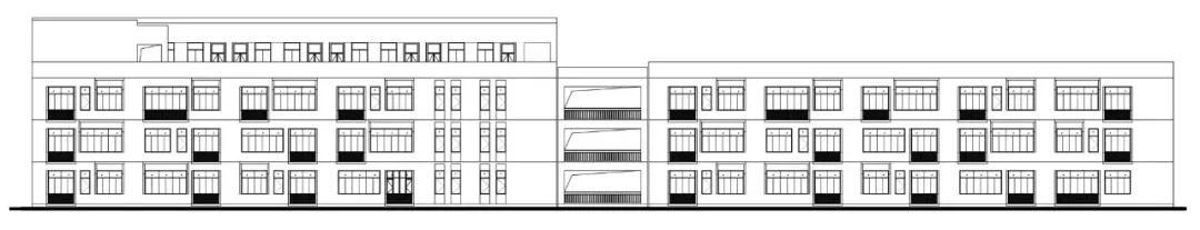
在教学楼的山墙上,创作了一幅强调立面预制墙板划分的抽象画,适当地呼应了该项目的工业化建造技术。
在教学楼的北立面上,根据9米长的圆柱网确定4.5米的预制外墙板变化模数,外墙板的宽度为4500mm。而且空调和窗框也随着涂料的色彩而变化,形成了丰富的变化。
斜切的金属窗框呼应山墙的彩色三角形母题,探索了基于模数控制的建筑立面语言的可能性。
On the gable of the teaching building, an abstract painting emphasizing the division of facade prefabricated wall panels was created, appropriately echoing the industrialized construction technology of the project. On the north facade of the teaching building, according to the 9-meter column network, the variation modulus of the 4.5-meter prefabricated exterior wall panel is determined, and the width of the exterior wall panel is 4500mm. And the air conditioning and window cover also change, with the color of paint, forming a rich change. The slanted metal window casings echo the gable's colorful triangular motif, exploring a possibility of building facade language based on modulus control.









总平

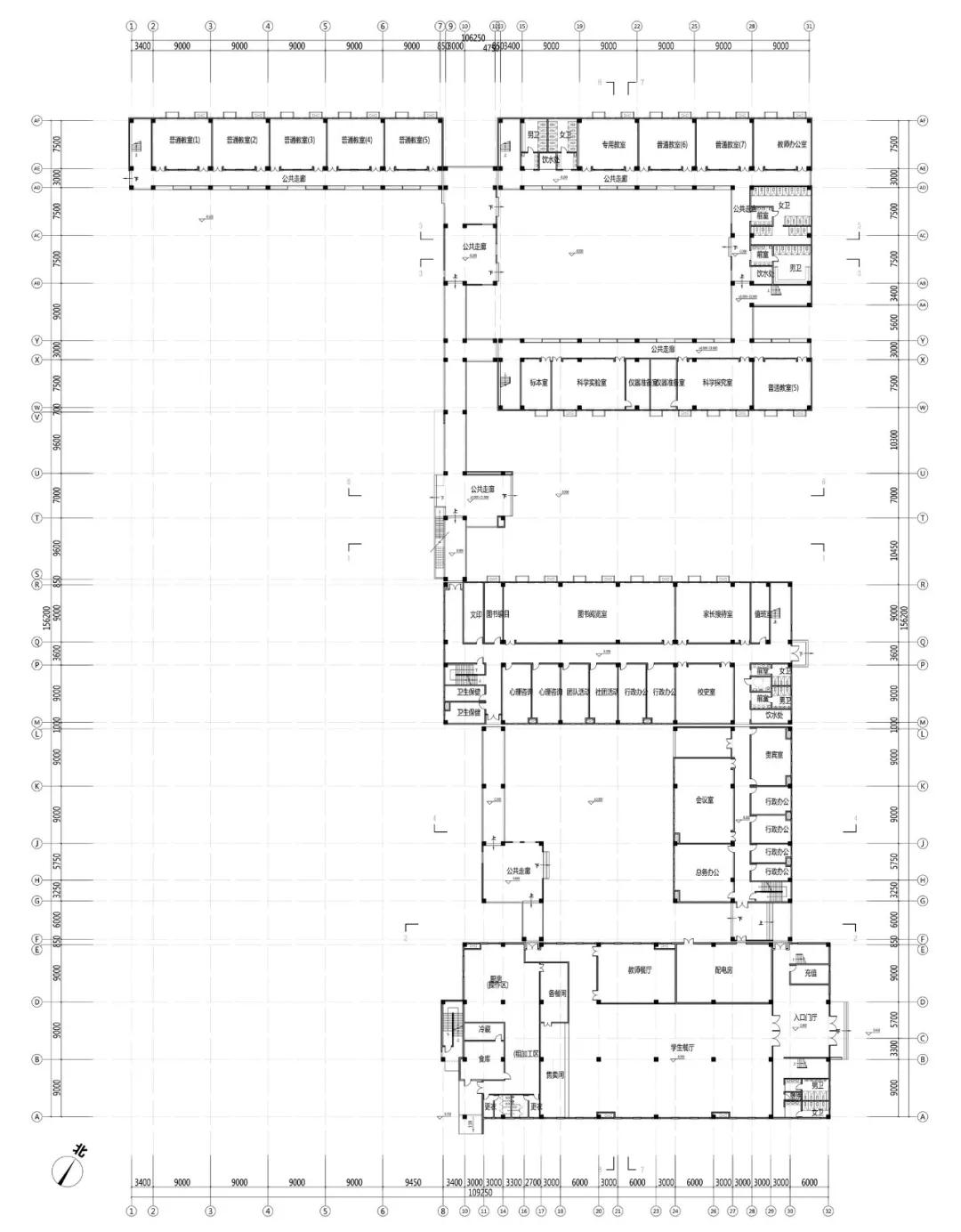
教学楼一层

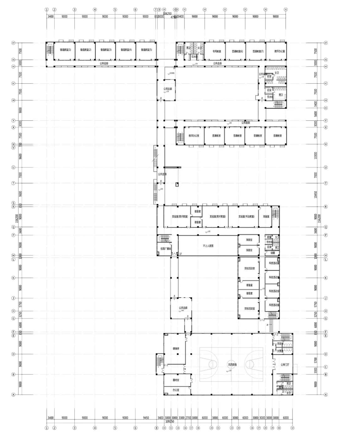
教学楼二层

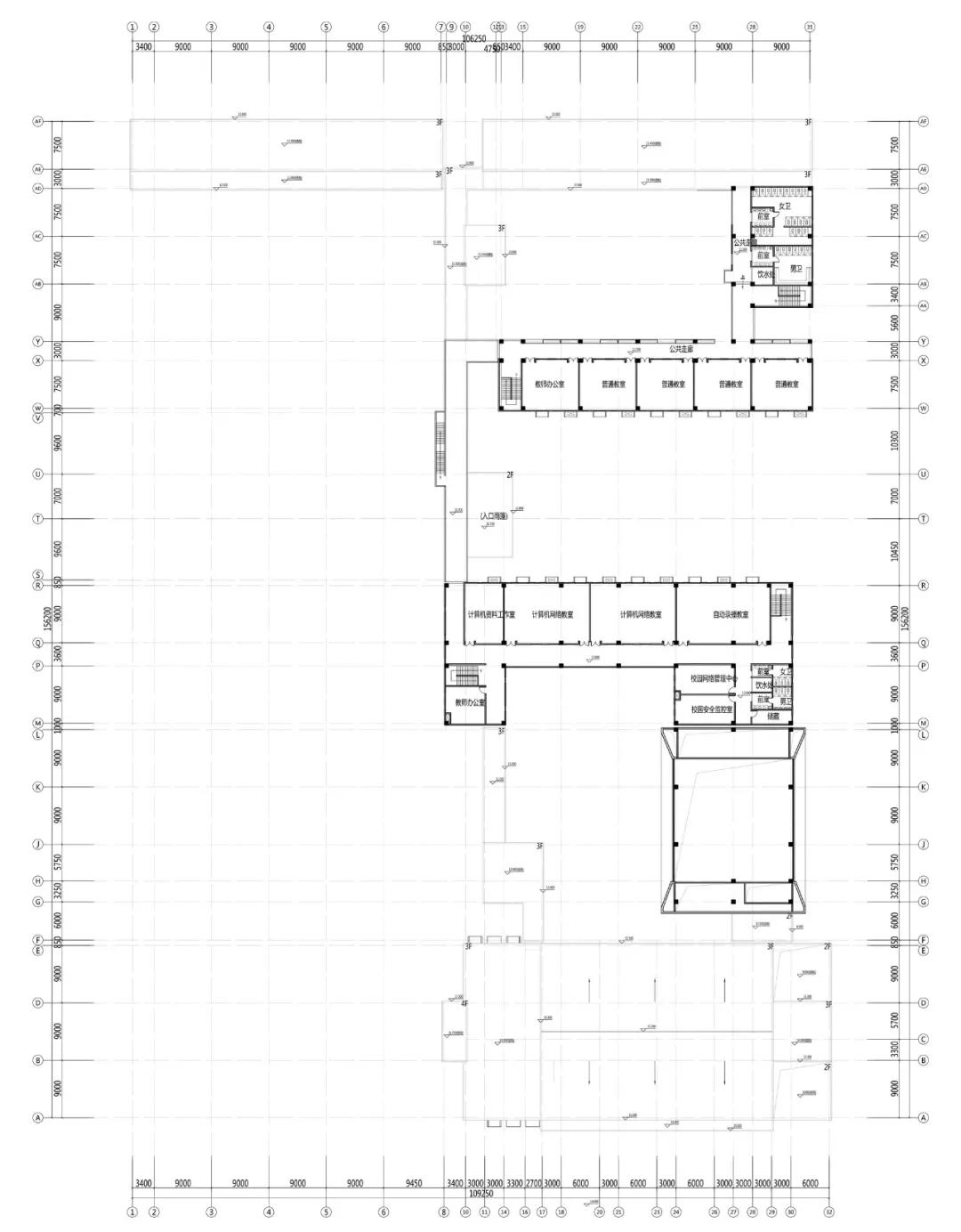
教学楼三层

教学楼四层

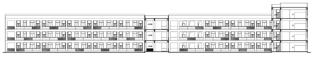
教学楼立面


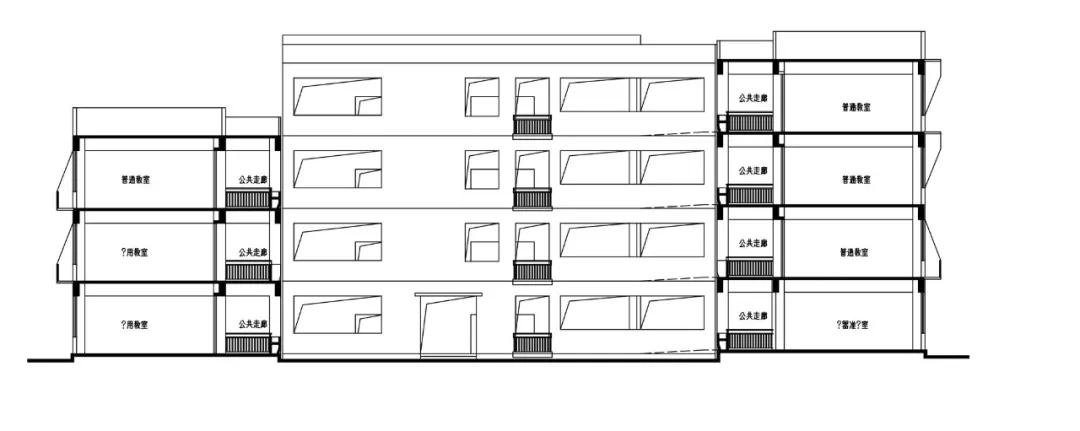
教学楼剖立面




墙身剖面

阶梯教室构造

风雨操场高窗构造

空调机位剖面构造

有无空调机位的两种立面板

立面效果手绘

轴测图纸
