同样的户型,同样的小区,如何让自己家有个性,让自己家的居住环境变得舒适,那就要在装修上花功夫了,此套案例采用欧式风格,舒适、明亮、给这个家不一样的感觉
装修风格:欧式风格
建筑面积:160平方
小区户型:复式
装修造价:35万

客厅全景

餐厅

厨房

书房布局

卫生间

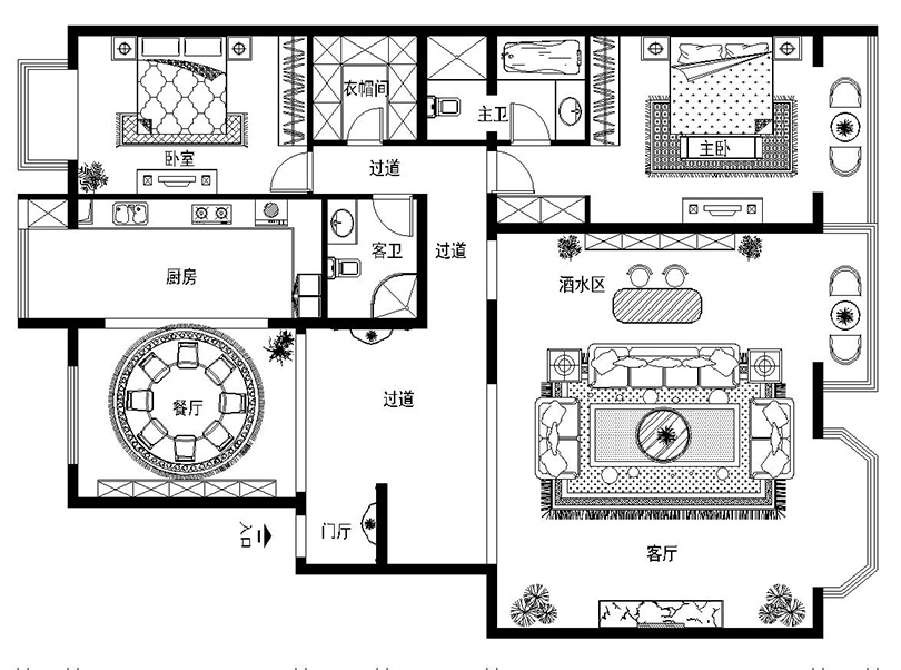
平面户型布局


卧室
同样的户型,同样的小区,如何让自己家有个性,让自己家的居住环境变得舒适,那就要在装修上花功夫了,此套案例采用欧式风格,舒适、明亮、给这个家不一样的感觉
装修风格:欧式风格
建筑面积:160平方
小区户型:复式
装修造价:35万

客厅全景

餐厅

厨房

书房布局

卫生间

平面户型布局


卧室