

竹影因风和 雀 动,
唯美客来心留香。
仙人吹 笙 期子来,
碧桃花下应相待。
本案,
雀笙饮居久宿,
位于凤城二路岗家寨北院,
西安早期的两套老式别墅,
设计师李明
两套别墅合并打通,
重新定义,
落地成为民宿&吃茶的空间;
8间客房,各自摇曳,
两个通道,双双迎客,
闹中觅静,绿树成荫,
春去花还在,人来鸟不惊。
葱郁婉转 · 几番春暮



门开翠绿径,
室距桃花源,
即便是热气腾腾的夏季,
郁郁葱葱也长满了,
这两套早期的老式别墅,
空间上是多有局限的,
因此,院落成了很重要的呼应.


白色的鹅卵石和通铺的防腐木,
递进错落的庭院&户外阳台,
成了雀笙饮居久宿的庭院核心,
进入阁前拜,
退就廊下餐。
入口可见 · 茶意绵绵


设计师李明:“雀笙里收了许多的老家具、精致的老物件,就像茶一样,需要精心的品,耐心的泡,雀笙的主人非常喜欢茶,也很懂得茶;原始的两套房屋打通合并,因此两个楼梯通道均保存下来继续使用,空间多了流转,也让空间里的人和事多了互动,让大隐隐于市的舒适和淡然实现,说走就走的旅行变得很简单。”
「雀笙饮居久宿」
茶&宿的空间,
迎面而入的右入口,
设计规划为前台接待区,
淘来的药柜古朴极了,
成了极好的储茶物件。
厅阔 · 斜云美景入古厅


一杯清露暂留客,
两腋清风几欲仙,
原始的砖混结构的建筑,
设计师进行了二次现浇加固,
原本两套房的隔墙两头各留了墙垛,
打造了一楼通畅的茶空间,
也让一楼的空间感开阔延长,
原本的小窗户都被打开成为落地窗,
迎面的右入口,
整面的砖红色 端景墙&老家具,
让整个空间文艺感渗透。
围合 · *坐静**爱初凉


竹雨松风琴韵,
茶烟梧月书声,
除却一层大的茶空间,
雀笙的每个房间设计师都用了小心思,
都有小小的茶区。
根据空间的结构定制的白色弧形沙发舒适自然,
空间里白色中晕了一些灰,
如水墨画入室,
清新雅致。
帷幔飘飘 · 茶宿小世界




飘飘帷幔轻,
芙蓉不及美人妆,
水殿风来珠翠香,
客房的墙面都被营造成了“山水意境”,
茶&宿的设计理念贯穿在客房空间设计里,
原木的床品和轻盈的纱幔相顾,
飘飘然拂过斑驳的红漆木柜,
自然纹路蔓延着树木年轮和疤霭的地面,
一方草编席,
布一方茶席,
或休憩或吃茶,
都是自己的小世界。
雅致装庭宇 · 浓淡相宜





态浓意远淑且真,
清幽婉转,
即便是最简单的空间,
也要让自然过渡其中,
又结合现代人的生活习惯,
极简的卫浴间让入住的你完全放松其中,
在雀笙的气质里,
黑白会被中和了,
不刚硬不妩媚。


对于民宿空间而言,
光的设计把控也是极重要的,
设计师将空间尽量的打开,
让自然光流入空间,
亦注意空间的私密时间。
许多的小设计都在空间里悄然出现,
定制的储物搁板,
与空间自然融合又功能兼具。
陪伴 · 行到身边 琼 步款


沿着客房下至大厅,转入庭院,
还有一个独立的空间,
亦是一个独立的茶室,
时光如水,侵润漫漫茶香。
因为老宅的缘故,
见证了四季年轮,
因此那些雨水洗刷外立面的痕迹让雀笙更有感觉,
设计师李明就让他们迎着自然。

灯火四起,
夜风习习,
日子鲜活。


这个茶&宿的度假别墅,
若是你旅途至西安,
这里定可以让你安放自己,
梦魂安稳觉心平,
舍此欲何归。
▼平面布置图/Floor plan

1层原始结构图

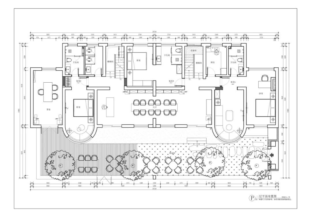
1层平面布局图

2层原始结构图

2 层平面布置图
项目名称: 雀笙饮居久宿
项目面积:550㎡
空间类型:商业空间
全案设计主创: 李明
设计团队:贾丹妮、陈景亮
摄影师:张炜
关于设计师

李明
L&M空间规划设计事务所·设计师总监
就业经历:
2000-2003年 陕西西安西京大学室内设计专业
2003-2004年 西安雅饰家装饰工程有限公司
2005-2007年 西安峰光无限装饰工程有限公司
2008-2009年 北京元洲装饰有限公司西安分公司
2010-2016年 北京建极峰上大宅装饰有限公司西安分公司
2016年 米兰理工大学结业
2016-2017年 L&M空间规划设计事务所
2017年 日本东京艺术大学结业
2018年 金堂奖全国优秀作品奖
部分荣誉:
2004年 陕西广播916特约嘉宾 西安华商报推荐设计师
2005年 陕西电视台特约嘉宾设计师 房周刊推荐设计师
2012年《房周刊》设计师联盟专属设计师
2013年 中国国际空间环境艺术设计大赛(筑巢奖) 别墅设计优秀奖
2014年 中国国际空间环境艺术设计大赛(筑巢奖) 样板间设计 优秀奖
2019年 中国国际空间环境艺术设计大赛(筑巢奖) 商业空间 优秀奖
设计理念:室内设计是一种精神,也是种文化。我们设计的初衷就是体会生活,用专业的,艺术的手法来表达对生活的认知和向往。