女生大多都会想要一间属于自己的衣帽间,早上打开后所有衣服一目了然,再也不用弯腰埋头在衣柜里翻找去年买的黑色毛衣了。可是小户型家庭面积有限,如何挤出空间,合理的布置衣帽间呢?
衣帽间的相关知识
第一
衣帽间的分类
常见的衣帽间从空间角度分为两种,独立式衣帽间和开放式衣帽间。
独立式衣帽间就是小伙伴们在网上看到的那种专门用一个独立的房间打造成衣帽间,照明充足,空间宽敞,对空间面积要求大。
一般是利用现有空间或者是利用隔断墙将大的空间强行分割出来一个小的独立空间。

开放式衣帽间很简单,你也可以把它理解成开放式衣柜,通常不加门,如果加的话,门和衣柜之间会留下一段距离,留作试衣空间。
它的好处是空气流通效果好,视觉上也很宽敞。不过也要注意防尘。

第二
衣帽间的布局
在说具体怎么打造之前,我们先了解一下衣帽间的布局分类。
它们分别是 一字型 、U字型、L型、二字型。
不同的布局适合不同的空间。
正方形空间适合U字型。

狭长过道适合一字型或者二字型。

长方形适合L型。

第三
尺寸
因为衣帽间并不是必需品,小户型可以将它放在家庭装修里的最后一步,等全部装修完成后,你可以环顾四周,看是否还有角落放置你的衣帽间。

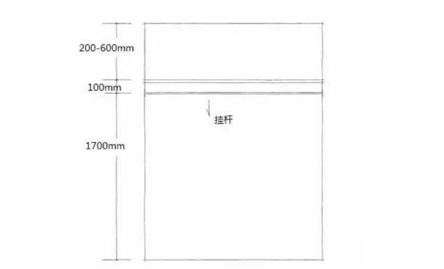
这时候知道尺寸就很重要,打造衣帽间主要看四个数据,衣橱的进深、长度、高度、和人在衣柜之前的活动距离。
其中衣柜的长度取决于你家具体的尺寸,是可变化的。
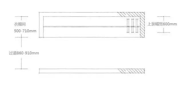
通常橱柜的进深是300-450mm,而上衣的宽幅在600mm左右,会伸出衣柜200-250mm的距离,所以不算上护墙板和衣橱里板的厚度,衣帽间实际占地的进深也有500-710mm的距离。

挂衣杆决定收纳的量,一般距离地板高度为1700mm, 挂衣杆和上层搁板的距离应在10mm左右,过小这之间无法放下挂衣架,过大又造成空间上的浪费。

搁板以上的空间取决于你家的层高和实际需求。所以通常中小型户型中,衣柜的高度在2米到2.4米之间。
而人在衣橱面前能够直立转身和弯腰换鞋的活动距离在860-910mm之间。如果你将衣帽间放在过道两侧,打造走廊式衣帽间,这个距离指只能满足两人侧身而立,或者错身蹲下。

了解这些,我们心里可以对什么样的空间适合改造成什么样的衣帽间,有了的大致方向。
小户型如何挤出衣帽间第一
利用过道
通常人们会在卧室到主卫之间隔离出一个穿过式衣帽间。拿衣服,洗澡,换衣服,出来,动线合理。

如果你家里两个房间中间有一条宽度足够的过道,也可以做衣帽间。

这个宽度是指两侧或一侧衣柜的实际占地进深(衣柜本身进深加衣服幅宽伸出衣柜的长度)加上人的活动距离。
前面我们说过一人想要弯身蹲下需要860-910mm 的距离,如果你不打算在这里换衣,人的活动距离只需要700mm就足够你正面直立通过了。

第二
活用卧室空间
卧室自然是衣帽间的最佳选择啦。
有些户型在设计时已经给卧室留出衣帽间的位置,直接在这一区域布置就好。
如果你选择的是平开门,则要注意平开门在打开情况下,平开门部分会占用部分空间,拿取物品会不方便,因此计算收纳空间时需要减去这一部分。
如果卧室没有留出衣帽间的设计,你也可以将非承重墙的那一面凿开,衣帽间的柜子背面之间加石膏板形成隔墙,打造成嵌入式衣帽间,然后加布帘隔断。

不想拆墙,而卧室空间又足够,也可以选一面墙放置挂杆搁板储物盒组合成一个开放型帽间。

第三
利用闲置空间
另一种常见的办法是,将闲置空间改成衣帽间,或者是衣帽间与其他功能区的合并,比如闲置的书房,可以和衣帽间合并成书房衣帽间。
卧室连着的主卫生间也可以改成衣帽间。但要根据你家的实际情况。
如果家里人口少,比如一家三口,一个卫生间完全够用,可是家里人却喜欢买衣服,衣柜不够放,衣服扔的到处都是,可以考虑把主卫改成衣帽间,但是要做好防水防潮。

第四
巧用公共空间
有的户型会有凹进去或者凸出来的角落,在生活里往往很难利用,或者被忽略,容易造成空间上的浪费。
这时候可以考虑把这些地方利用开放型衣柜打造成衣帽间。

今天主要说的还是小户型如何挤出空间打造衣帽间,以及一些注意事项,如果小伙伴们看完还有一些疑问,也可以留言告诉我们哦。