寒假就要来了,有些学校也要准备换“新装”啦!
上海海事大学附属北蔡高级中学二期改扩建工程即将启动,项目正在公示中。和小布一起来了解改扩建详情吧→
项目效果图

■ 建设单位:
上海海事大学附属北蔡高级中学
■ 建设工程名称:
上海海事大学附属北蔡高级中学二期改扩建工程
地块规划依据:
规划名称:上海海事大学附属北蔡高级中学二期改扩建工程工程控制性详细规划
■ 用地性质:文教体卫

项目效果图
项目介绍
项目基地处于浦东新区北蔡镇范围,地块:
-
东至沪南公路
-
南至北蔡小学
-
西至已建住宅用地
-
北至已建住宅用地
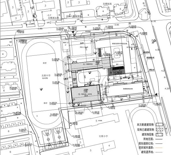
建设工程方案平面示意图
(点击可查看高清大图)

建设内容
该地块拟建:
一幢六层新建实验图书信息综合楼
一幢八层新建新建宿舍楼
两层门卫
一层垃圾房
项目鸟瞰图

主要经济技术指标
用地面积:23142.48平方米
总建筑面积:约34339.55平方米
其中,地上建筑面积:约27199.85平方米
地下建筑面积:约5867.75平方米
容积率:1.32
建筑密度:22%
绿地率: 30%

在环境这么优美的校园里上学,
想想都有一些小激动捏~

更多效果图来了!

上海海事大学附属北蔡高级中学即将新增的实验图书馆信息综合楼,将为同学们提供更先进的实验系统、更新鲜的信息咨询,其即将新增的宿舍楼,将成为不少同学温馨的小窝。随着校园设施的逐渐升级,该校同学们将享受更优秀的教育环境,看完效果图,同学们是不是更加期待了呢?
编辑:李志豪
摄影:区规划资源局

邮箱:pdxinwenchu@163.com