中正锦城项目位于小店区建设路与南内环街交界口西南200米,项目主推建面约122~145㎡户型,位居都会之央,双名校全配套,中正地产用心构建业主的幸福生活。

一、深度分析
1、配套★★★★☆
中正锦城位于太原市建设路与南内环交界口西南角,项目周边路网发达,交通便利,建设路、并州路、东岗路、太行路、南内环街等城市快速主干道环绕锦城左右,地铁4号线,多条公交线路紧邻锦城而设,使居住在此的人们能轻松选择多种出行方式,便捷的到达市内的每一个角落,从而免去道路拥堵的烦恼。
1)交通:项目位于都会之央,项目与太行路、东岗路、并州路、迎泽大街、双塔街、南内环街、长风街、南中环街、龙城大街、府东街、胜利街、北大街等共同编织立体交通网络,瞬间畅达城市每一个角落。数十条公交线路就在家门口,临近未来地铁四号线,多种出行方式为便捷出行锦上添花。
2)商业:项目王府井、百盛、和信摩尔、沃尔玛、燕莎、美特好等商业配套集聚,品质生活触手可及。
3)医院:山西省人民医院、山西现代女子医院、太原新医医院、迎泽区中医研究所、山大一院等丰富医疗配套守护家人健康。
4)教育:小店区新世纪幼儿园、大营盘小学、沙河街小学、三十二中、四十七中、太原师范学院等各类幼小中大各类学校云集周边。

2、宜居★★★☆☆
容积率2.7,绿化率35%,项目周边配套环绕林立,使居住在此的人们轻松悠然的享受城市中心的繁华万象,进退自如。

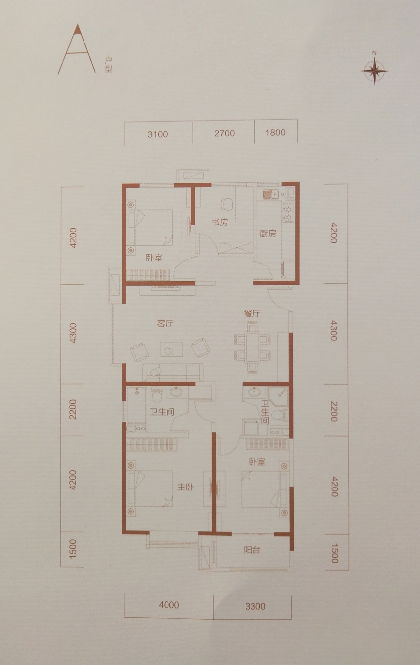
3、户型★★★★☆
中正锦城主推建筑面积约122~145㎡户型,项目提出“全生命周期一站式完美社区”概念,用心构筑业主幸福生活时光。

1)122.66㎡户型:3室2厅2卫
中正锦城约122.66㎡3室2厅2卫户型。户型整体格局方正,此户型设计超宽开间,三室朝南,全明通透。双明卫设计,强化结构优化,强收纳空间格局。双飘窗,大阳台,坐在家中即享阳光沐浴生活。

2)139.29㎡户型:3室2厅2卫
中正锦城约139.29㎡3室2厅2卫户型。对称是该户型的一大亮点,功能对称式经典,尺度合理布构。三面采光设计,适阔阳台,景入家境。重视私密性,同时看重共处空间。家居动线根据家庭起居习惯设计,贴合宜居日常生活。

3)145.24㎡户型:4室2厅2卫
中正锦城约145.24㎡4室2厅2卫户型。该户型南北通透,流光纵贯,开阔舒适。以双厅为轴,动线分明,动静分区。空间灵活可变,在这里你的个性创造与居家适用可以并存,足够大的空间让业主尽情释放“思维风暴”。

二、编辑点评
1)着急买房:项目122㎡的户型相对于自己住来说很合适,真真正正的户型方正,南北通透,有孩子的家庭可以着重考虑一下这个户型,项目周边的教育资源无需多余描述,双名校教育配套,有时间的置业者可以去实地考察一下!
2)观望买房:南北通透,中正地产的户型选择较为单调,如果考虑大户型的置业者可以先去中正锦城看一看,产品合适,一百多平米的面积完全包括了日常所需空间,去看看总归不会有损失。
3)投资买房:小店区可以说是目前太原市发展潜力的片区之一,中正锦城这个项目无论是从地段还是质量配套都是值得入手的。
中正锦城12000元/㎡

购房咨询热线 400-818-5005转83973