前段时间,一朋友陷入人生低谷,生活的样子就是穿睡衣和拖鞋为主,饿了就叫外卖,整日游荡在狭小的房间里,不与外界接触。
一天,我接到了他的电话,电话里的声音软弱无力,像是生病的猫叫。她说“反正生着一场大病,生死未卜前途未知,对生的期盼与眷恋,早就慢慢熄灭了”。我心里想,既然你都这样态度对自己了,干嘛还给我打电话,她是让我善后吗?
后来我才知道,她这样已经快一个月了,她和男友分手后一直是这种状态,赶过去才知道她生病了,还辞去了工作成了一个无业游民,践踏自己的生命。

这样真的值得吗?
她说“人生总会经历几个低潮期,过了就啥事都没有,气话谁不会说,可真的当灾难来临时,我们开始惧怕、退缩了”。
和男友分手后,她决定重新把旧房改造,不想留着男友的那些记忆,所以她就把我叫过去和她一起改造装饰。这种事当然二话不说就答应了。这真是一个大决定,我们把房间弄了底朝天,全部翻新了一遍,她说“房间就应该这样,住不爽了就换”。
我觉得她很霸气,看似柔弱的女孩内心的决定会这强势,我都被她撂倒了。

我们首先做的就是收拾她那些杂物和零食堆,爱情真是一个可怕的东西,总是让人丧失理智,却又会让人成长。我们整理了一大堆的垃圾,男友留下的所有物品,床单、被套、衣架、墙贴等等所有一切都扔垃圾桶。我觉得没必要这样,可她说看着怎么会不生情嘛,还是扔了的好。
我们就去市场上、网上找来很多旧房改造设计方案,都不满意,唯有骅锶装饰的设计吸引了我们,我们就在骅锶装饰上面找了一个方案,按照旧房的设计、配色、规划来改造房间。

我们花了一个周,终于大体样子出来了。
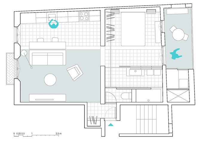
这就是我们最终改造出来的样子,她说“既然抛弃我,我也能抛弃一切;我从生活的地方开始,让那些不愉快都随着我的新房沉淀”。
是啊,房间是一个人生活的地方,离开了房间又能去哪儿,像她这么对房间在心的人能有多少呢?

一个人的生活质量,全部在居住的房间里。
有些人的房间乱成一团,乱七八糟,而有的人的房间,整整齐齐、干干净净;房间的质量直接影响了生活的质量,想要拥有一个高质量的生活,就从一个整洁的房间开始!