本案银盛泰德郡四期210平业主为40多岁的成功人士,在充分考虑到业主的生活习惯、品位喜好后,将本案的主题定位为典雅大气的欧式新古典风格。整体色彩以米黄色及黑胡桃木色为主,石膏线、地脚线、门的细部都是经典的欧式元素造型,地面采用大理石拼花、搭配黑胡桃木的门与家具,整个格调沉稳而大方。无论是材料的选择,家居的造型,还是房间的配饰方面,都透露出尊贵与典雅。

银盛泰德郡210平别墅装修,成功人士的装修喜好

银盛泰德郡210平别墅装修,成功人士的装修喜好

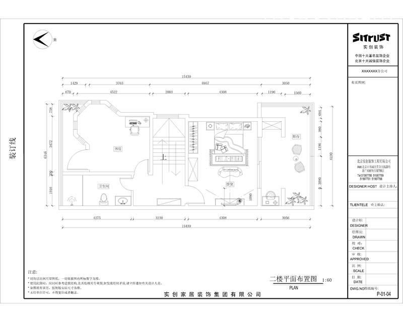
银盛泰德郡210平别墅装修,成功人士的装修喜好

银盛泰德郡210平别墅装修,成功人士的装修喜好

银盛泰德郡210平别墅装修,成功人士的装修喜好

银盛泰德郡210平别墅装修,成功人士的装修喜好

银盛泰德郡210平别墅装修,成功人士的装修喜好

银盛泰德郡210平别墅装修,成功人士的装修喜好



了解更多青岛小区装修案例
加微信 18353285901 (限青岛)
交流装修 让装修变得更简单!!!