地勘,咋们老百姓一听到这个词。第一反应肯定觉得不是建设高楼大厦采用的步骤吗?怎么建个大棚也要搞地勘啊!这个地勘也肯不便宜不了啊!大部分人也觉得没有必要,不用浪费这份钱的。而实际地勘也分为不同的等级要求,建大棚要求的地勘并不会像建大楼那样复杂。

地勘分析
导读:关于大棚的建设而言,它的基础直接决定大棚整体的使用年限,也被人们称作为根基。无论建设高楼大厦、普通民房还是蔬菜大棚,它的基础是否稳定直接导致地面建筑是是否稳定。我相信在这一点上大家还是认同的我观点,地面的建筑安全性首要就是保证地下的基础是否稳定。而在整个温室大棚行业中无论那种类型的,它有符合温室本身的基础设计以及基础要求。在下面我就与大家分享关于温室大棚建设的基础部位进行一定的描述,主要是根据我自己的实际经验带大家了解。

连栋温室
引言
在整个温室大棚行业中,最具有代表性,也就是普遍建设的温室类型大体有三种形式,分为春秋大棚、日光温室、连栋温室。而其中最为亲民、接地气的温室为春秋大棚和日光温室,而连栋温室相对的造价比较高,一般都是规模化、集团化的相对较多,不过也有从最开始的日光温室种植者慢慢发展成连栋温室的普通菜农。但是他们的相同特点谁都无法缺少的,那就是他们在地面建筑之下的基础。没有坚固的大棚基础,就无法谈及大棚的整体建造。

温室基本分类
春秋大棚基础建筑情况
在对于春秋大棚这个词可能有点陌生,这个词主要是温室行业的书面语。而实际的生活中老百姓喜欢叫它冷棚、塑料大棚、地插棚等,这些都是它的称呼,也都是非常形象的。这些也无非都是根据在实际的应用或建筑形式给大棚进行的命名。

无基础春秋大棚
①不做基础的春秋大棚
在实际的施工的过程中确实可以不用任何基础也可以把春秋大棚建设完成并且保证安全性,但这个必须有前提的要求。首先就是当地的气候问题,一般情况下很少会有大风的出现,减少的春秋大棚的阻力问题。另外与它的使用季节有关系,一般在初春或秋末使用,这个季节相对的风力比较小,但这一点并不是主要的因素。而在实际当中还是与它的建设地点的土壤有很大的关系,也就是土壤层深度或松软程度。大家该有点疑问,和这些又有什么关系呢?因为春秋大棚的骨架要插入到土壤中30-40公分,如果土壤的硬度比较大,是无法插入这么深的,就无法保证春秋大棚骨架的稳定性。这样的安装方式有一定的地域性限制。

红色圈,水泥浇筑位置
②不叫基础的基础,但可以稳定春秋大棚骨架
为什么说不叫基础的基础呢?但在春秋大棚的建设中还是不可缺少的安装方式,另外它的施工也比较简单,并且没有很高的技术要求。它适合于任何的土层安装环境,尤其是土壤比较硬的。春秋大棚的骨架一般为直径32MM或25MM的圆管,如果插入地下比较浅,很容易被大风吹散。现在就采用土壤钻孔机,在土壤上开孔。开口直径一般为15或20公分,深度在30-40公分,这样春秋大棚圆管骨架就可以放到里面。这样的直接填土肯定是不行的,如今的解决方案就在孔里面填入水泥和砂石的混合物,行业中被称为浇筑。在这样的方式下圆管骨架与水泥混合就称为了一体,就有了非常好的拔地力,就非常的牢固了。是在春秋大棚骨架安装中最为牢固的方式之一。
小结:春秋大棚在建设中对于基础建设的时候,是不要进行地勘的。因为春秋大棚本身的承重性非常低,另外它使用的时间也比较短,只是在春茬或秋茬种植的保证棚的土壤有一定的温度提高就可以了。在环境温度上升后基本就需要把塑料薄膜给拆除了,不然温度太高。
日光温室基础建筑情况
日光温室这样的叫法也是书面的语言,而在北方大部分的菜农喜欢称呼它为暖棚,还有一个特点就是日光温室是北方地区特有的温室类型。主要的因素是因为它自身的保温性比较强,在没有外界采暖的情况下也可以种植,特殊天气情况除外。另外就是日光温室也有坚固的基础设施,可以保证温室外部土壤的低温传入到温室内部,这样更利于温室内的保温。但在实际当中日光温室最为常见的两种模式为土墙日光温室和砖墙日光温室。

土墙日光基础施工
①土墙日光温室基础
在整个暖棚发展中可以说土墙日光温室给历史留下不可磨灭的功劳,是那个时代赋予它的见证。土墙日光温室从剖面来了解它的墙体结构,它整体剖面属于梯形。也就是底面宽、上面窄的形式。土墙也是由人工或机械设备层层堆积而成,在堆积土墙之前,需要进行地面的处理。在这里也不是所谓的基础,但不做肯定是不行的,也可以称为垫层。就是采用三合土,进行多层的夯实。不仅有足够的承重力,还可以防治土壤潮解,防治老鼠打洞给土墙造成的承重性损坏。

砖墙日光温室基础施工
②砖墙日光温室基础
在这个砖墙的日光温室基础的建设中就更容易理解,它也是安装建筑行业的要求进行施工的。整个日光温室是以长方形为主,它的四周全部都是这样的水泥条形基础。而这个条形基础的建设也是要求的,首先就是进行开槽,对于这个开槽的深度就取决于地勘的情况,在小结中在具体的说明。在开槽完工以后,就是做基础垫层。传统的垫层也非常简单,就是采用三合土,延后采用砸夯机进行砸实,一般在15-20公分,特殊情况除外。接下来就是条形的水泥基础,在基础中还钢筋笼子,一般采用8MM螺纹钢制作而成。最后一步就是进行基础模板的制作,把钢筋笼子放进里面,进行水泥浇筑就可以。另外一点注意的就是前屋面的预埋件放置位置一定要准确。
小结:日光温室的基础设计就需要进行地勘了,尤其是有冻土层或浅水层的区域,就需要进行地勘的进行。不然对于基础的建设来讲就太不负责了,在这里并不需要专业的地勘测试过程。但在实际的施工过程中,需要在建设基础地点进行挖掘,一定要突破冻土层,说简单点基础一定要建设在冻土层一下,才能保证在后期使用的过程中,基础不会发生沉降或锻炼。
连栋温室基础建筑情况
在整个温室行业中,连栋温室属于最高端的形式了。它的建设标准、审核都是了专业的标准。从整体设计年限为20年,这个也是因为大棚属于临时性建筑的最高年限了。而它建筑基础部位采用的是完全按照建筑基础设计,也就是50年。在连栋温室的建设的基础主要分为两种类型:条形基础和独立基础。条形基础主要是在连栋温室的四周,而独立基础是在连栋温室内部的立柱基础。

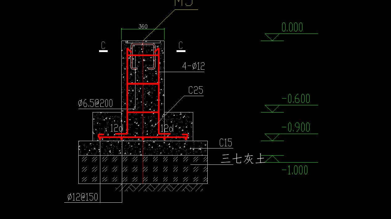
条形基础施工
①连栋温室条形基础
◆ 在连栋温室的建设中它的基础完全是建筑标准,也就是说在基础的设计前,就必须对建设地进行地勘。对于下面地质结构有充分的了解,才可以进行基础的设计工作。这样是保证基础有足够的承重能力,因为连栋温室自身的重量比较大,而且还有更加当地的雪载情况,这一部的承载力也是要考虑进去的。

条形基础设计
◆ 连栋温室开槽深度一般在1米左右,整个连栋温室基础层次结构,从底到上部为三七灰土、水泥垫层(C15水泥就可以)、到T型的条形基础。这个三七灰土应该大部分的人都有了解,也就是三合土,它就是石灰与土的比例混合物。在三合土上面进行浇筑10公分的水泥垫层,也有一定的找平作用。接下来就是关键的条形基础,从剖面来看是倒梯形结构,这样更有力拔地力。这个在钢筋笼子是制作上相对比较困难一点,但也是为了保证基础设计的更为合理,才保证地上连栋温室整体的承重性。在实际中是必须这样的做的,不仅要遵循行业标准,但基础是完全遵循建筑行业的标准进行的。条形基础的设计宽度一般为360MM,在立柱的位置有预埋件,有足够的支撑力保证。

独立基础养护中
②连栋温室独立基础
独立基础设计相对比较简单,但施工比较麻烦,这个也是由于连栋温室内的独立立柱相对比较分散。这个基础的开槽一般都是独立的开挖,相对比较耗时耗力。它的制作步骤也是与条形基础一样的,也是三七灰土、水泥垫层、钢筋笼子也是倒T梯形设计。这样不仅有足够的支撑力,还有抗拔的作用,防治防风的袭扰。它的深度一般也是1米左右,与条形基础一样,特殊的地勘条件除外。独立基础一般为正方形或圆形,正方形比较常见,尺寸在24公分,顶部有预埋件的预留。

独立基础预埋件放置
小结:在连栋温室的设计前,第一件事就是了解建设地的地质情况,也就是我所的地勘。不仅是因为连栋温室本身的造价高,还有就是连栋温室本身的重量非常大,对于基础的承重就有这个很高的要求。其中就是地质的要求,如果地质松软,就需要进行特殊的处理后,才可进行基础设计以及施工。
总结:温室大棚的建设中,是否要进行地勘这一步骤。毕竟这一步骤是需要花费一定的真金白银的,但是为了保证温室建筑的稳定性而言,还是值得的。尤其是连栋温室建设,对于地勘这一项是必不可少少的。另外就是日光温室的基础建设,如有有冻土层或浅水层地区,地勘也是要作的。而不需要进行地勘说明的,也只有春秋大棚,因为的自身的承重比较小、使用时间比较短而决定。