楼盘优势
“恒豪翠谷城”位于江山路与株洲大道间,珠江北路与江山路交汇处,毗邻天元区政府,与“香山美境”相邻,与“颐景园”隔路相望,项目西侧为不可多得的自然山体林地,环境优雅,生态和谐,周边配套成熟,是株洲业主不错的选择
今天给大家分享一下恒豪翠谷城127㎡户型的室内设计方案,给广大的业主朋友一个参考,也希望大家能够避免一些装修坑。
户型优势
户型好不好,关键看2个点,采光与动线;
采光好的房子很通透,通风也好,住起来更加舒适
动静分区理想能更好的保护隐私与提高效率,是设计师对室内规划的依据
例如:改变开门方向,既能缩短路线又能保护隐私;轻质隔断保护隐私;改变关键节点的位置以缩短动线等等,看似很小的改动,对居住的感受却意义非凡;

完美动静线范本-图片来自网络
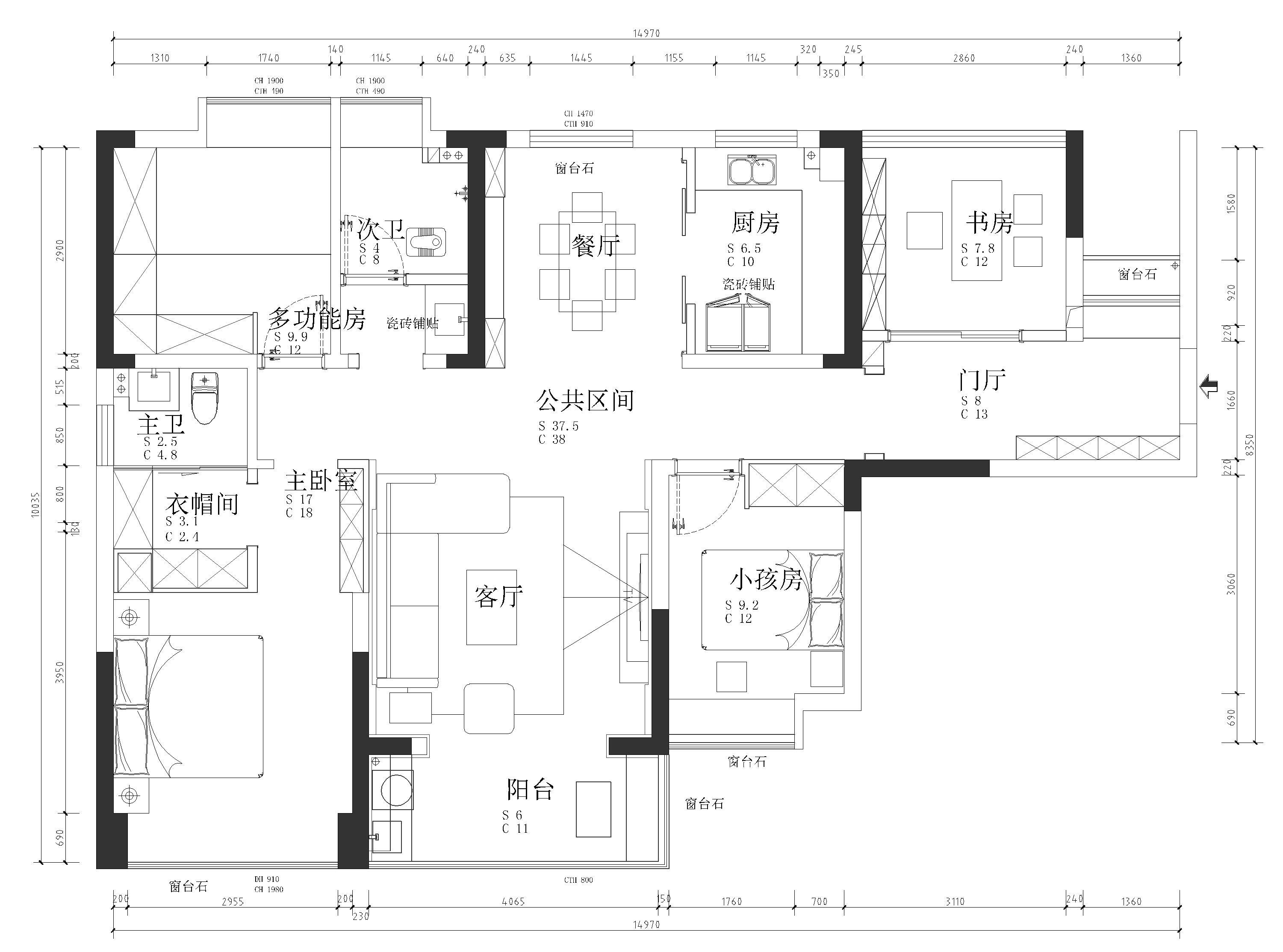
户型分析
●原始户型:

红色为动区,蓝色为静区
●基础数据:
建筑面积:127平米 外框面积:116平米
●采光方面:
本户型从东向西进入,户型朝西,属于双向对侧采光,空气对流,通风非常好
●动线方面:
①起居动线:卧室与卫生间相邻,起居动线较短;唯入户处卧房距离卫生间较远,不适合老人居住;
②家务动线:家务动线比较合理,能在一定程度上减短缓解做家务的一些疲惫
③访客动线:来客动线经过次卧,私密性受影响;
●总结:
在整体的格局上需要改变的并不多,对于常驻人口叫多的家庭需要考虑入户处卧房的私密性及起居动线的优化;若对卧房需求不高,入户处的静区可改为对私密性要求不高的使用中性使用区;
改造方案
对于普通家庭来说,房子利用率是最关键的,改方案适合家庭成员不是很多的4口之家,入户花园改造为书房,入户次卧用于小孩房。

效果展示
改造风格为新中式,在传承传统中式风格精髓的同时,通过与现代潮流的对话碰撞而产生的创新,传承优秀的中国文化
●客厅

●餐厅

●书房

●儿童房

●主卧

●多功能房

花费
方案很美丽,钱包很紧张,其实往往业主会站在不想费时、费力、费钱的角度思考问题,去选择包装很华丽的整装产品,却忽视了包装盒里面承载的项目和材料;
●装修模式
■清包模式:人工,含做柜子大概在280~360元/平方施工费
■半包模式: 人工+辅材公司给你包了, 大概在600-760元/平方
■全包模式:人工+辅材+主材,公司给你包了
■整装模式:工人+辅材+主材+家电+家具+软装公司给你包了
☒ 整装产品会给业主设置面积和户型的要求,达不到公司标准,对不起这是肯定要加钱;
☒ 整装产品包含项目有些残缺,比如鞋柜、吊顶、造型、只要业主稍微有点设计的要求基本满足不了,当让加钱也是必然;
☒ 整装产品所用到的材料,比如:地砖、地板、木门、移门、橱柜、洁具、包含在整装产品里面的基本是标配材料,想换样式升级得加钱;
☒ 整装产品所包含的家具,想说:标配的家具就算了吧,14件套进价也就1.2万元左右,当然升级还是要加钱的。
●脱坑秘籍
要想装修不跳坑,还可以去当家装修APP上看,应该有一些你的邻居,或者隔壁小区的业主在上面开工了,能看到他们家做什么样子的实际花费。
有了施工图还可以去花钱做一份装修精算,3块5,也蛮便宜的,主要是给把这套房子要用的东西、施工项目都算出来,这样避免因为自己啥也不懂被师傅偷工减料,或者被项目经理之类的杀猪,没用的东西也要收你的钱~
给你呈上一份详细人工施工花费,可以根据您家的改造进行参考,更多的内容可以去当家装修APP查看,还有材料明细哦~

拆除人工花费-例

水电人工花费-例

泥工人工花费1-例

泥工人工花费2-例

泥工人工花费3-例

木工人工花费木制作-例

木工人工花费吊顶-例

油漆人工费-例