
新中式风格主要是利用现代的装饰表现手法,结合中式传统文化元素,以打造出满足现代人家居生活需求的这样的家居空间。那么,新中式风格家居到底是怎样的呢?本期长沙装修网小编就带大家一起来了解了解新中式风格,下面我们大家就赶欣赏下新中式风格装修案例,看过的朋友都说好!
新中式风格装修案例:
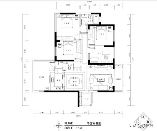
小区:江河东澜湾
面积:131平米
户型:四居室
风格:新中式风格
装修公司:长沙华浔品味装饰
设计说明:本案为四房二厅二卫一厨的多层住宅。环境优美,为一四口之家为依据进行设计,突出温馨且不失时尚之感。

进入大厅,墙面大面积采用的是米黄色墙纸来点缀,再加以实木线条的衬托,使得整个空间尽显温馨明快。

餐厅经过精心的布置。设计师在与电视背景相对的一面墙特意设计了展示柜,并且展示柜采用的乳白色颜色设计搭配。

主卧与书房显得十分淡雅,这里没有多余的色彩、布置和家具,也没有喧嚣与繁冗,呈现的是一派宁静与悠远。

现代家庭基本上都是独生子,很重视孩子的成长,为满足孩子成长的需要,让孩子有一个完全属于自己的空间,而精心布置儿童房。

上面内容就是本期长沙装修网小编为大家带来的关于新中式风格装修案例的相关分享,小编相信大家在看了上面的案例之后,对于新中式风格有一定的了解了,那么打造新中式风格家居也就不在话下。对于准备装修的朋友,大家可以点击发布免费招标信息,即可获取到免费装修服务:上门量房、装修预算、设计方案,正规专业的装修公司,为您的新家保驾护航!

详情点击“了解更多”!!!
↓↓↓