二手房虽然在价格上很是讨喜,但是直接拎包入住不切实际,都是得在次翻新才得以满足居住条件。

今天给大伙儿介绍的这套91㎡破旧二手房,在户型规划和设计上都无法满足如今的居住需求,只能通过改造来提升居住舒适度。

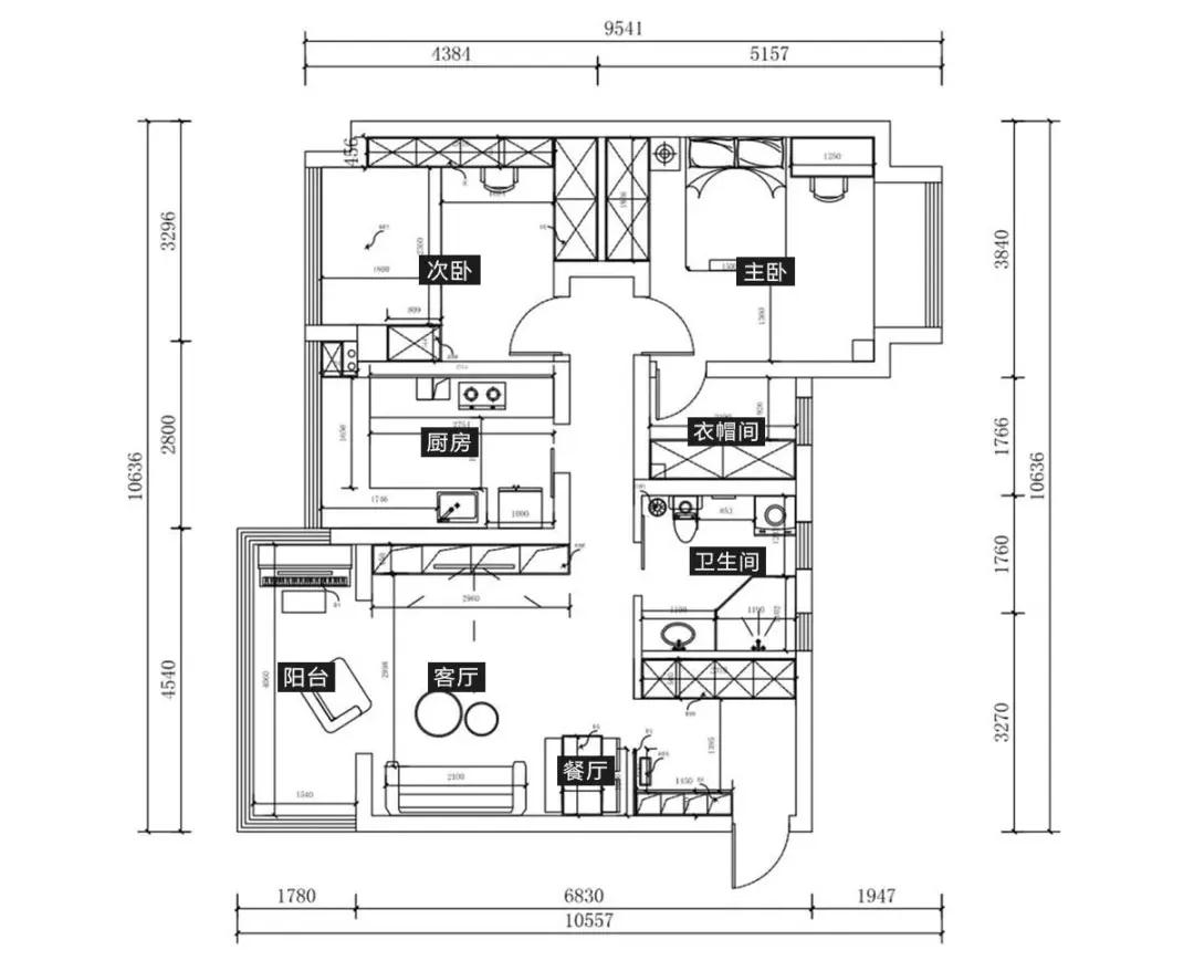
将主卫改成衣帽间,次卫向门口外扩了一些,厨房敲掉原来的小阳台并入其中,让厨房和次卫能够看起来大一点,同时整个空间的改造还是以增加收纳为主,不至于居住后期无空间可收。
改造前


原先客厅用水晶灯作为主照明,平层还用水晶灯,不仅压低了层高,明黄色的灯光也较为单一。

普通的白墙已泛着黑黄色,让整体空间看起来稍显昏暗。

厨房那猪肝色橱柜都是原始的装修风格,显然对于现在审美已经过时几百年了。
玄关

入户两边都打造了立顶的白色储物柜,底部镂空放日常更换的鞋子,中间镂空加入灯带,可以随手放置一些小物。
墙面安装可自由组合的洞洞板,变化多样,以此满足不同时刻的摆放要求。
客厅

玄关和客厅之间用木栅栏进行隔断,木栅栏的轻巧性不会过度占用空间,能够起到很好的隔断作用。

白色沙发墙用挂画进行装饰,原木风的双拼茶几和地板搭配深灰色的布艺沙发,添了些许日式风格,中和空间颜色单一的缺陷,也不会略显沉闷。

电视背景墙定做了整面的储物柜,依然采用白色系,保持空间的统一性,同时白色也不会让空间显得拥挤。
靠近阳台一侧设计成玻璃柜门,避免了单一性,同时可以将喜欢的手办和装饰品展示出来。
阳台

将客厅阳台打造成休闲区,拓宽客厅空间的使用范围。
摆放了两辆小推车,放置了满满当当的小零食,再摆上一张黄色单人椅,生活好惬意。
餐厅

餐厅安排在沙发的一侧,原木的餐桌椅搭配上一张素色的流苏桌布,稍显异域风情。
顶面三盏高低不一的玻璃吊灯,为空间增添不少设计感和温馨气息。
厨房

厨房布局采用平行分布,中间作为过道通行。木色+白色的橱柜设计,视觉效果很清爽。
吊柜还专门设计了专门放调料的位置,摆放得整整齐齐,要拿取也很方便。
主卧

主卧原木+床头柜和梳妆台,保持空间整体格调一致。

侧面做了一个嵌入式的大衣柜,平开门的设计,避免移门轨道容易损坏。
在床头背景加入一副大面积的色块油画,为白色系的空间加入些许色彩。
衣帽间

原本的主卫改造成衣帽间,延续了其他空间的色系,主卧的衣柜不够用,还有衣帽间,想怎么放就怎么放。
次卧


次卧设计成榻榻米的形式,将卧室+书房结合在一起,储物能力满分,充分利用空间的使用性。
卫生间

我IE和僧建采用推拉式门,节省空间的同时,美观度也大幅提升。
洗漱台的镜柜是隔雾镜,不受热水蒸汽的影响,内部也能作为收纳空间使用,完美!
试问,这样整洁美观度爆表的二手房谁不想拥有呢?
现全国征集300名业主进行免费设计,设计不花一分钱,装修立省30%,点下方“了解更多”报名↓↓↓
全程免费↓↓↓