武汉的楼市格局,有三个明显特征。
1、内环豪宅化,核心区房价4万+/平,首付门槛200万,寸土寸金;
2、二环高端化,房价2.1-4万/平,以二七滨江、武昌滨江为首的排头兵,直接把二环房价拉升至4万/平;
3、三环改善化,你基本找不到均价1.5万/平以内楼盘,部分楼盘定价直接超过2万/平。
如果说内环的房价你已高攀不起,那么二环将是大多数购房者最好的选择,这里有最密集的城市核心功能区,配套一点不输内环。今天,选房师将为大家推荐一个适合捡漏的二环内楼盘—— 武汉城建汉阳印象,均价21500元/平,用2年前的价格,给你最后上车主城核心的机会 !

图 |二环房价一览
01
一街之隔 房价便宜5000+
武汉城建汉阳印象位于汉阳核心区,靠近钟家村商圈,是一个 双地铁 盘,项目 距离地铁4号线马鹦路站约970米, 距离地铁6号线拦江路站约1.1公里。目前在售101-140平毛坯房源,均价21500元/平,首付门槛65万。

图 |项目与拦江路站、马鹦路站测距
同为汉阳二环段,远洋东方境世界观均价26873元/平,最小112平,首付门槛90万;招商愉樾均价25000元/平,最小135平,首付门槛101万;融创武汉1890均价24000元/平,最小117平,首付门槛84万;恒韵府均价19500元/平,最小99平,有一定价格优势,但这个项目争议较大;相较之下,武汉汉阳印象比周边楼盘便宜5000+, 算是二环内性价比最高的低价盘 。

图 |汉阳段二环内楼盘对比
02
钟家村小学、三初就在家门口
一街之隔,项目东面有钟家村二小、武汉三初双名校,相距约1.5公里处有 钟家村小学本部 ,相距约1.2公里处还有西大街小学本部。

图 |项目周边教育资源一览
早在2010年,汉阳区开始实施联合学区制,由优质小学或初中牵头,设立试验“学区”,而 与三寄宿同根生的武汉市第三初级中学,就营运而生,作为一所公办学校,它和三寄宿都是集团办学,师资统一调配 ,有24个班,光现代化装备上的投入就高达400万元。
三寄宿到底有多牛?选房师查找资料发现,2019年三寄宿高分人数全市排名第三,高分层非常惊艳;2020年中考高分保护4人,500分以上24人,上省示范线708人,示范率80%。在三寄宿,基本每个老师都拿过奖项,最高拿到国家一等奖,师资力量不容小觑。

实景图 |武汉三初

效果图 |武汉三初
众所周知,钟家村小学是汉阳首屈一指的公办小学,曾先后获得“武汉市中小学德育实体建设示范学校”、“武汉市中小学综合办学水平示范学校”等殊荣, 往年数据显示三寄宿在钟家村小学六年级优录进入三寄宿的人数超过150人 。不仅如此,钟家村二小作为钟家村小学分校,口碑较好。 由于新房不存在对口,具体等交付后以教育局划片信息为准。
03
武汉城建汉阳印象基本信息
首套首付3成 二套首付5成
楼盘地址:汉阳区国博大道以北、冰糖角路以东
总占地面积:约2.75万方
总建筑面积:约11 万方
交房时间:预计2022年10月
容积率:4.02
绿化率:约30%
公摊:1、2号楼公摊23%,6号楼公摊20%,7号楼公摊27%
总户数:825户
总车位数:960个
车位配比:1:1.16
物业费:3.4元/平·月
物业公司:武汉地产集团东方物业
开发商: 武汉城建集团(国企)
04
武汉城建汉阳印象楼栋和户型
项目总建面约11万方,体量不大,由5栋高层、2栋超高层和一所幼儿园组成。该地块较为方正,5号楼为东南朝向,南偏东约15°,其余楼栋均为西南朝向,南偏西约45°。从日照图来看, 1-5号楼南面1楼大寒日均能保持4个小时以上的阳光直射,部分还能达到6-7个小时 ,6、7号楼1楼大寒日南向采光能达到1-2个小时,楼栋南向采光好。

日照图 |武汉城建汉阳印象
目前,项目主推1、2、6、7号楼,非临街楼栋,居住相对安静,但1、6号楼距离幼儿园较近,可能会受到一定噪音影响。

效果图 |武汉城建汉阳印象

户型平面图 |武汉城建汉阳印象1号楼

户型平面图 |武汉城建汉阳印象2号楼

户型平面图 |武汉城建汉阳印象6、7号楼

关于公租房问题
小区7号楼内规划有96户公租房,位于7号楼东南侧端户位置,公租房入户大堂是单独的,首层入户与商品房入户大堂无法连通、完全隔开。
不仅如此, 公租房的室外活动空间与商品房通过下图所示的红色线条处外围栏隔离开 。可见,公租房对小区整体居住品质影响不大,不过介意的购房者可以优先选择1、2、6号楼。

图 |公租房的室外活动空间与商品房完全隔离开

关于铁路问题
此前有网友担心项目旁边的铁路是否会有噪音影响?选房师实探发现,这是一条货运铁路,目前还在运行中,距离项目约80米,对1、2号楼影响最大,介意的购房者可以优先选择3、4、5、6、7号楼。

图 |项目与铁路测距
在售楼栋
1号楼 1个单元 28层 2梯4户
2号楼 1个单元 46层 3梯4户
6号楼 1个单元 26层 2梯4户
7号楼 2个单元 33层 2梯3户
在售户型
101、115、116、117、118、120、126、135、140平
均价
21500元/平(毛坯)
户型展示

户型图 |101平
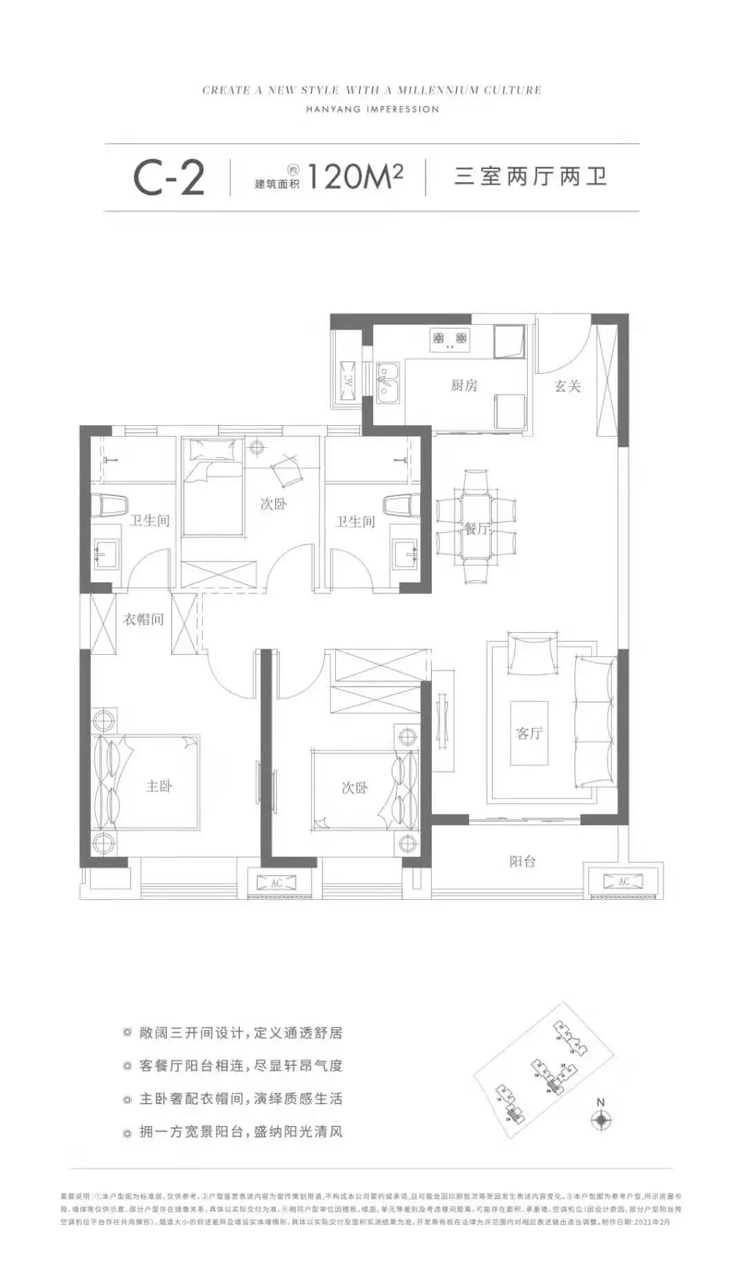
户型点评:101平位于1号楼中间户,三房设计,三开间朝南,北面是连廊,实现了南北通透,但北面书房私密性一般;该户型是是一个非常实用的三房两卫。

户型图 |115平
户型点评:115平位于6号楼中间户,也是三房两卫设计,三开间朝南,北面是连廊,实现了南北通透,但北面次卧私密性一般。

户型图 |116平
户型点评:116平也是三房两卫设计,是真正的南北通透,采光、通风效果好,但餐厅面积较小。

户型图 |117平
户型点评:117平位于6号楼边户,也是南北通透设计,三房两厅两卫,南面采光较好。

户型图 |118平
户型点评:118平位于1号楼边户,三房设计,南北通透,户型设计整体与117平类似。

户型图 |120平
户型点评:120平位于2号楼中间户,北面是连廊,实现了南北通透,但北面次卧私密性一般。

户型图 |126平
户型点评:126平位于7号楼边户,为三房两卫设计,南北通透,居住舒适度高。

户型图 |135平
户型点评:135平位于6号楼边户,为四房设计,南北通透,功能性强,一步到位。该户型客厅连接南向超大阳台,餐厅连接南向飘窗,居住舒适度较高。

户型图 |140平
户型点评:140平位于2号楼边户,四房两厅两卫,南北通透,整体设计与135平类似,但多了5平,空间感更大一点。

户型图 |140平
户型点评:140平位于1、3号楼边户,为四房设计,南北通透,功能性强,一步到位。
05
占据二环核心地段 地理位置优越
区位:项目 位于二环内,与钟家村一站之隔 ,地理位置优越,周边都是成熟小区,发展成熟,人流量巨大。从小区位来看,项目北边是燕归园小区、市政道路、归元寺,南面是规划商业用地、国博大道、二环线,西面是冰糖角路、铁路、江腾苑小区,东面是规划道路、复地翠微新城、钟家村二小、武汉三初、远洋东方境世界观。

区位图 |武汉汉阳印象
交通配套: 从项目出发,驱车沿国博大道进入鹦鹉大道,往北直达钟家村商圈,往南直达四新国博滨江;或沿着二环线,往西直达王家湾商圈,往东过鹦鹉洲长江大桥,直达武昌老城区,自驾便利。
地铁公交:作为一个 双地铁 盘,项目 距离地铁4号线马鹦路站约970米, 距离地铁6号线拦江路站约1.1公里。乘坐6号线可在钟家村站换乘4号线,乘坐4号线可在王家湾站换乘3号线,直达汉口、武昌,非常便利。此外,项目门口还有国博大道万家巷公交站,现已开通547、637路,可直达钟家村、经开永旺、月湖等地。

图 |项目周边路网一览
商业配套: 项目距离江腾广场约1公里,这里有中百罗森、豪客来、吾饮良品等; 距离钟家村商圈约1.6公里,这里有闽东国际城、汉商银座、家乐福等 ,购物、买菜十分方便。后期钟家村的远洋太古里商业成型,从项目步行过去约25分钟,商业配套成熟。

效果图 |项目周边商业一览

实景图 |江腾广场
医疗配套:项目 距离第五医院约3公里 ,自驾约10分钟 。五医院是汉阳地区唯一一所集医疗、教学、科研和预防保健为一体的三级甲等公立医院,口碑较好;或者过江汉桥去汉口,有同济医院和协和医院,相距约6公里,自驾约15分钟。

图 |项目距离五医院约3公里
生态环境 : 项目 西面距离汉*江阳**滩约2.5公里,步行约35分钟, 这里有足球场、篮球场等运动设施,还有广场、景观带灯,适合休闲娱乐。

图 |距离汉*江阳**滩约2.5公里

实景图 |汉南江滩
06
选房师有话说
亮点:
1、卖毛坯, 比隔壁盘便宜5000+ ,价格优势明显
2、️教育资源充足, 周边1.5公里内有钟家村小学本部 、钟家村二小、武汉三初双名校、西大街小学本部
3、️ 位于二环内 ,环线位置优越
4、 靠近国博大道、鹦鹉大道,自驾便利
5、 双地铁 ,距离地铁4号线马鹦路站约970米,距离地铁6号线拦江路站约1.1公里
6、户型选择较多,从101-140平不等
不足:
距离项目100米处有货运铁路,临近楼盘会受到一定噪音影响。

●— END —●
武汉选房指南
2021,一起洞察武汉楼市
@片区分析:
关山大道 / 蔡甸 / 汉阳 / 白沙洲 /后湖 / 青山 / 光谷东 / 南湖 / 盘龙城 / 智慧生态城 / 司门口 / 雄楚大道 / 沙湖 / 光谷南
@学区房:
小学对口 / 大汉阳新房预计对口小学+初中 / 大武昌新房预计对口小学+初中 / 大汉口新房预计对口小学+初中 / 光谷学区房 / 二手学区房 / 南湖学区房 / 金银湖学区房
@购房小tips:
房查、征信查询 / 最新购房政策 / *款贷**问题大汇总 / 落户详细流程 / 交房验房攻略
@选房笔记:
旭辉华宇江悦府 / 保利星云 / 中国城乡香樾洲 / 恒大时代新城 / 碧桂园江城纪 / 顶琇国际城 / 康桥朗城 / 禹洲新希望雍禧兰台 / 中设众安双屿大观 / 中国铁建知语1901 / 中南云城 / 时代海伦堡印记 / 花博汇桃李春风 / 正荣悦珑府 / 观湖园二期 / 愉景湾 / 更多选房笔记点击