最近很多粉丝留言中骏世界城,看样子城南受关注还是很高,今天就聊聊这个楼盘。
中骏世界城·璟悦:地处:福州仓山上三路与南台大道交汇处

地块规划
中骏世界城是个大盘,项目规划了45万,包括21万方住宅、4500㎡幼儿园,以及14万方大型商业体。定位滨海快线的东升地铁停车场上盖。
分析:近年随着地铁的建设,很多TOD项目也开始逐渐面市,项目近300亩,多个地块,目前主推的商品房在C地块。这次推售的规划14栋11-16层的纯商品房。

土拍情况
2020年2月27日,中骏集团以45.6亿元竞得宗地2020-07号(仓山东升地铁停车场上盖及周边地块),选址面积189198平(约283.8亩)、出让面积161795平(约242.69亩),容积率2.04,成交楼面价约为13815.59元/平,溢价率9.6%。配建社会租赁住房2.4万平(可相对集中布局于地块B西侧),按6490元/平回购。
分析:在今年才拿下的大地块,定位滨海快线的TOD项目,在安商房模式下,项目居然没有配建安置房要求,在242亩的地块没有这个要求实属难得,项目仅仅需要配建社会租赁住房,而且也已经要求集中规划,对于后续的商品房规划有很大帮助。目前项目A地块将打造购物中心(中骏世界城),B、C、E地块建盖住宅。这次开盘的就是C地块,一个纯商品地块。
中骏以低溢价率13815的楼面价拿下三叉街周边地块,可以说是相当合算,目前周边的几个新盘价格都在30000-35000左右。对比这样的售价和楼面价,未来的利润空间是非常大。不过由于项目较大,对于资金的压力也较大,楼盘才拿不到半年就已经开始蓄客准备开盘,可见开发商对于资金的需求也是相当紧迫。

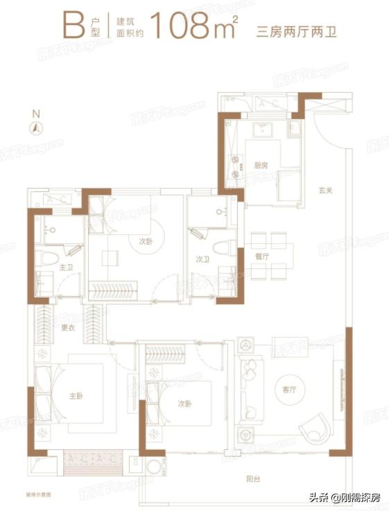
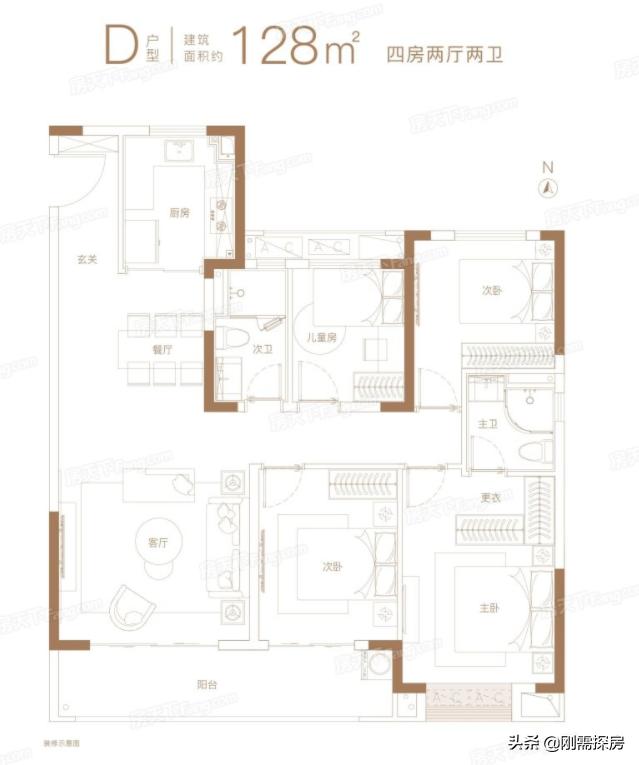
户型情况
95平米:三房两厅两卫,位于中户,市面主流户型,三开间朝南,动静分类,北面存在一定隐私问题。

108平米:三房两厅两卫,位于东西端头,与95户型类似,阳台较大,主卧卫生间对床需要重新设计。

118平米:四房两厅两卫,位于东西端头,三开间朝南,也是市面比较主流,118做四房,导致北面两间房间都较小。

128平米:四房两厅两卫,位于东西端头,与118户型布局一致,主要就是北面两个房间变大,居住会更好。

价格情况
项目目前还未备案,由于项目是带装修上市,目前三叉街周边的其他三个新盘,毛胚均价在33000左右,如果参照项目楼面价,其实项目如果按带装修32000以下上市,性价比是周边最高的,毕竟定位TOD项目,加上配建一个大型商场,对于楼盘的升值有一定帮助,加上C地块定位纯商品房,在目前主流的安商房下,难能可贵。当然备案价大概率会比较高。
区位情况
项目位于南台大道西侧,属于三叉街片区,定位滨海快线的东升地铁停车场上盖,项目的C地块属于周边地块,距离一号线三叉街站600米,滨海快线370米,交通较为便利。同时由于自身配建中骏世界城,周边还有规划的SM广场,白湖亭万达等,对于以后的周边人流吸引也较大。区位总体算不错。

开发商
最近有关注房产的朋友应该有注意到,位于东二环的泰禾金尊府和泰禾福州湾的维权事件,由于开发商的资金问题,导致项目目前停工或者无证预售。对于购买的朋友来说,无疑是打击巨大,对于很多人对期房的购买欲望有所下降。
至于该盘的开发商中骏,近年也传出了资金的不利新闻,由于跟其他开发商类似,定了利润目标冲击,高周转加速运行,对整个集团都产生了很大的压力,其他城市的中骏项目也传出了质量问题。这对于有意向购买的朋友需求自己评估。
楼盘总结
项目位于三叉街附近250亩的大盘,目前准备推售的首期定位纯商地块,加上楼面价仅仅14000不到,加上周边普遍毛胚均价在32000以上。项目的户型也是目前市面主流户型,整体楼盘还算不错。后续性价比主要看项目到时候备案价如何,如果带装修均价在32000以下,性价比是不错的。如果在33000以上就要谨慎入手了。当然楼盘最重要一个隐患就是项目较大,对于开发商资金压力较大,加上中骏自身也存在一定压力,所以需要有意向的朋友自己拿捏风险。
题外话:大家决定对比三叉街的滨海首府,融侨则徐壹号,福晟云樾东升,该盘的价格在多少区间是比较合理的?大家对比这四个楼盘更喜欢哪个?