写在前面:
生活越往前走,我们对“家”的构想越庞杂,越用繁复的加减法计算得与失。然而生活不止有加减法,还有许多隐形的符号,把我们迷失的部分一点点串联起来,重现家在内心深处原本的轮廓。
本期案例:
案例地址:北辰三角洲
案例面积:180㎡
案例风格:港式轻奢风格

原始结构图

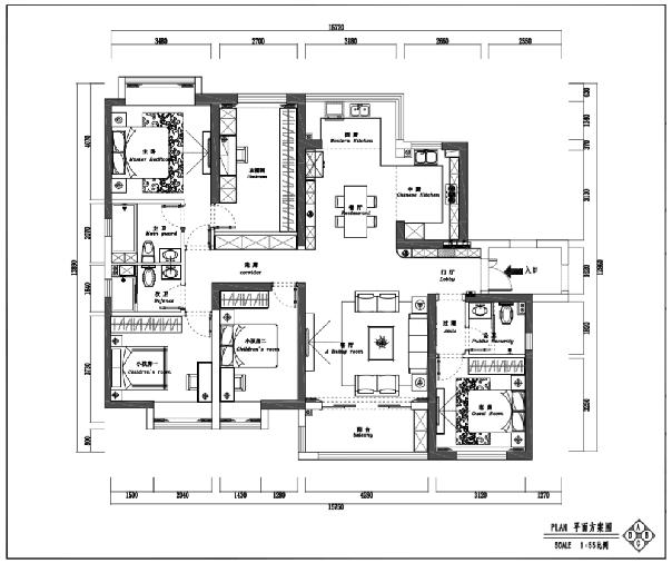
平面布置图
本案设计中,摒弃了多余的装饰,强化空间的艺术境界。通过精巧的墙面设计升华空间的艺术美感。家具的款式和色彩亦精心设计与挑选,充分体现设计的温馨、品质、优雅、营造出沉稳的高级感氛围。让生活成为高级品质的外延。

客厅
有人喜欢清水混凝土的质朴简约,也有人喜欢木头的原生禅韵。
而这套设计,业主喜欢现代轻奢港式的感觉。秋天的五彩斑斓和黄昏晚霞的灿烂,因为这总能让人从繁忙的工作中,感觉特别温暖和放松,而这又像足了人们的性格,待人处事都抱以开放的姿态,处处充满了热情与包容。
很快就有了这个空间居所的标签——暖意、收获,友善而低调,因此本案的主题定义位——寓【·归】,寓意为居住,【寓·归】意为日落而归。

客餐厅
硬装部分选用了暖色系,软装部分则用了冷色,冷暖的搭配让空间有活跃的气息。布艺、木、金属、大理石等不同的材质在对比中呈现不同的性格,让空间有了层次的变化。
各个区域的颜色搭配与布局,都力求做到自然与融合,金属的质感和木头的柔和体现出那种自然而不做作的洒脱感。灯光的设计,是选择了氛围及聚拢感更强的光线,宛如傍晚时分,走在浅灰的石头路上,看着身旁那盏刚点亮的路灯,很有代入感。不同的材料,软硬的质感,直线、柔和的灯光,为空间增添了一分慵懒的气息,而浅黄的色调则为由远及近、自上而下的色彩分布起到了承接的作用。

餐厅
厨餐厅运用开放式空间的手法与酒柜相适应,使其层层递进,打造出空间的层次感,给人一种舒适放松的感受。
在灯光与木制颜色上以咖色、米白色为主色调的设计,加之卡其色搭配,使整个空间简洁有力充满温度。 餐桌配套选用了木制材质的圆弧造型起到柔和空间棱角和压住地面用色的作用,墙面木制的护墙板,表达了硬装与软装的完美契合。

主卧
简约的吊顶设计,加上线条的层次感,使主卧空间不刻板冷漠。
床头的背景采用金色的线条和麻布的硬包,简约而又时尚,兼具舒适与雅致,从细节着手,床头利用对称线条的硬包构成,木色的地板、利落的墙面、毫无冗赘的家具相搭配,演绎材质的自然拼接,窗边的大飘窗,让整个空间简洁而温暖。

主卧
深色的床搭配暖奶茶色的墙纸柔和空间,床品及配饰上考虑主人的感受选用了布艺抱枕及中性质感的地板,灯光运用柔和的暖白更是相得益彰。
南面的阳光可以任意的洒落在房间,墙面的设计简约而有质感,软装的材质使整个空间更具有轻奢感。
本案设计师:

罗西欧
设计师:罗西欧
设计理念:好的设计,为人而生,以人为本,让人活得更有尊严。这或许正是人本精神,独特而又可贵的存在。
擅长风格: 现代 欧式 中式 美式等
代表作品:美洲故事 阳光锦城 龙湾国际 康斯丹郡 万博汇 阳光丽城 乾隆学府 中建麓山和苑 中建芙蓉嘉苑 北辰三角洲 保利麓谷林语 青园 紫湖香醍 格兰郡 万境水岸 云开一品 星都荟 水岸御园 云顶翠峰 藏珑等
所获荣誉:
湖南百姓杯设计大赛优秀奖
全国室内设计大赛佳作奖
全国“华耐杯”室内设计大赛佳作奖
湖南长沙室内设计大赛银奖
获中国建筑装饰装修行业“中国建筑室内设计专业优秀设计师”称号