
//
目前80%的中国家庭
仍然在一体式卫生间中将就着,崩溃着。
//
不知昨天的水电文章,有没有把大家噎到。
从今天开始,我们就会把各个空间掰开揉碎给大家看,个中细节讲究逐一奉上。
今天先从「卫生间」开刀。
按照国际惯例,此处应有一张触目惊心的「改造前」:

按照国际惯例again,此处应有一张惊掉下巴的「改造后」:
。
然而,并没有
因为
我们精心打造的三分离
太
难
拍
了

好了说正经的。
鉴于卫生间是家里最容易「脏乱差」的存在,我们在规划之初,就坚定把「实用」和「好打理」,置于「颜值」之上。
软装部分待屋主日后根据个人品味,慢慢添。而我们能做的,就是给卫生间「打好底子」:好打理,不容易脏乱差。
所以,我们不靠「before&after」的冲击对比图取胜,靠的是润物细无声,却能在每天高频使用中细水长流的细节。

改造后:洗漱区
来,先听听屋主对这巴掌大的方寸之地的怨声载道:
每天早上7点,一家人准时上演抢卫生间大战……心(难道不是膀胱?)很累。
无数瓶瓶罐罐以及什么纸巾棉柔巾香皂毛巾根本无处安放……挤得慌。
卫生间光线太差,洗脸化妆两头跑……跑断腿。
一洗完澡,整个卫生间都湿漉漉?每天拖了脏脏了拖,拖拖脏脏无止境……*b大**ug。
于是,我们做了这三件事。

我们在卫生间换了头门
然后,神奇的三分离……出现了
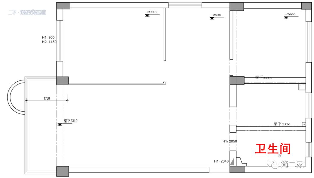
这次改造,卫生间的难点在于:不能动格局(无论其他格局怎么大改,卫生间的位置动不得)。
如此,如何实现三分离??
我们只做了一件事:把门换了个朝向。
温故一下改造前。原房卫生间只做了简单的干湿分离,严格意义上,连二分离都算不上。这样的一体式卫生间,基本无法容许一人以上同时段使用。

改造前的一体式卫生间
然而,卫生间的功能可远不止1个啊!
如厕
淋浴
洗漱
所以,在只有一个卫生间的家庭中,当蹲坑时喜欢看手机的,遇上洗漱化妆半小时的,再碰上个热爱洗澡皮肤好好的,基本就为家庭矛盾成功埋下了一颗定时*弹炸**。
三分离可以完美终结上述矛盾。不夸张,一个三分离卫生间,使用效率顶得上两个一体式卫生间。
而悲惨的事实是,目前80%的中国家庭,仍然在这样的一体式卫生间中将就着,崩溃着。
这次我们的爆改案例,希望给你一点启发。如果你家卫生间也是长条形,来,跟我们一起:把门换一个朝向。
原房卫生间门在长方形的短边上,朝南(进大门右手边就是卫生间):

放大看:

格局不能动,怎么改?
很简单,核心在于:改动「门」的位置。
这是重新规划后的格局:

我们放大图看一下改变:
before
﹀
﹀

after

如上图,卫生间的位置没有变动。但是进卫生间的门的朝向做了改动。(原本卫生间和厨房之间隔了一道墙,现在把那堵墙敲了,把厨房做成中岛式,所以留出一个过道。)
对于长条形卫生间,实现三分离的关键就在于——把门从矩形的短边上,移动到长边上。
第二步,在三分离之后,我们把使用频率最高的洗漱区放在中间位置。
中间是使用最频繁的洗漱台,两边分别是马桶和淋浴区。如此一来,三者可以同时使用,互不打扰。

为什么我们在马桶间和淋浴区布置了移门,而非平开门?
为了最大程度省空间。
(毕竟三分离后,马桶间和淋浴间真的……很小了)

上面两扇门,二姑娘要为它继续打call。
上面两张图,大家应该能看出来,我们用的是细框磨砂玻璃移门。两个目的:透光&隐私。门套用的纯白不锈钢门套,非常窄(是木头门套的三分之一或者四分之一) ,线条利落是其一,防水是其二。

至于干区的洗漱区,直接敞开也无妨(我们也的确没有在此加门)。
长条形的卫生间,如果说实现以上彻底的三分离有一些难度,那么这个退而求其次的方法,也是讨(偷)喜(懒)之举——把洗漱台从卫生间拿出来。
洗漱台是三个功能中使用最频繁的地方,一旦移出来了,很多时候就可以实现多人同时使用卫生间。让洗漱*独台**立出来,不占用卫生间本身空间。而真正意义上的卫生间只剩下马桶和淋浴区。
这是把洗漱台拿出来之前的图——

这是把洗漱台拿出来之后的图。标红的那堵墙,是需要做改动的,把这堵轻质墙往里面移,移到洗漱台和马桶之间。

还有一种拎法是这样:
这个比上图更合理,是真正意义的“三分离”。让马桶和淋浴区并列,从两边分别进入,可以彻彻底底地实现“俩人同时蹲坑和洗澡”。

那正方形卫生间何解?
二姑娘简单放一下解决方案:

以上三者大同小异,但是万变不离其宗。核心在于:
让使用频率最高的洗漱区处于公共的过道上。

在这个小到不能小的卫生间做收纳
我们是认真的
这个房子的卫生间本身不大,在我们做了三分离后,就……显得更小更局促了(毕竟多加了几道墙)。
因为没办法任性,收纳才更需要提前做好精密规划,不放过任何可能的空间。
所有收纳的原则都不外乎这几个:
1.藏大部分,露小部分。
2.全部上墙。
镜柜:藏起来万事大吉
老粉都知道,二姑娘是镜柜坚定不移的拥护者。
合上,岁月静好;打开,海纳百川。
无论大小户型的卫生间,都值得来一个加持收纳。
这次我们用了科勒的一款防雾镜箱,里面的隔层分布合理,空间利用率高,随随便便放几十个瓶瓶罐罐绰绰有余:

(镜柜:赛珂K-12098T-NA)
这个科勒的镜柜还有个附带技能——自带镜前灯:
你们知道,化妆时候,光有头顶一盏顶灯是不够的,会在脸上投射下阴影,所以需要来自镜子前的灯光,去消除这个阴影。

唯一的一个遗憾,就是在镜柜左右两边留下了些许空隙,没有严丝合缝(大家吸取教训,以后记得前期选好产品,再规划尺寸)。
镜柜下方留了一个台面,放最高频使用的东西(比如洗手液),和装饰性物品(比如绿植);镜柜边上留了一个小毛巾架。
至此,洗漱区域完成了“有藏有露,全部上墙”的指标。而最下面的洗漱台面,就可以被成功解放出来,不承担任何收纳重任。(因为这个地方极容易有水花,东西若置于此,底部常年有水渍)
马桶上方:我们也不想放过
三分离后,马桶间是真不大了。
哪里去“偷空间”呢?
除了选择吉博力的壁挂马桶,在视觉上进行精简(可以把硕大的水箱藏起来),我们把目光盯准了……马桶上方的空间。

让木工给打了个严丝合缝的白柜子。以及,我们特意在柜子下方留了一个类似壁龛的空间,放放顺手用的纸巾,香薰(还有提裤子时候的手机?)。

马桶上方的定制柜子
至于柜子里,双十一囤货的纸巾姨妈巾可以都供于此。

马桶上方的柜子,打开后
淋浴区:全~部~上~墙
淋浴区的收纳方案相对简单,同样全部在墙上:
壁龛,上墙置物架,电热毛巾架。

电热毛巾架:科勒STILLNESS® 斯蒂尼
花洒:科勒 k-99741
考虑到洗完澡需要直接能拿到毛巾,所以我们把电热毛巾架径直安在了淋浴区。
黄梅天怕发霉?
不存在的。电热毛巾架专治一切湿哒哒。

为了给屋主省点家务活
我们把魔爪伸到了墙上……
第二点中,我们交代了这次卫生间所有的收纳方案。为什么我们不选择一些,后期可以随时增加的收纳方案呢(比如落地置物架)?
因为我们要丧心病狂地利用墙上空间。
一则为省空间。
二则为好打理。
你们懂的,在卫生间这个全屋最湿润的地方,一切落地的东西,都意味着三个字:难,收,拾。
能上墙就尽量让它们上墙,能凌波微步就别让它们沾地。那些逼死处女座的卫生死角,通常来自于:
马桶底部边缘
洗漱台面
马桶刷一周
…………
所以我们坚持选择了吉博力的壁挂式马桶(连马桶刷也严禁着地):

马桶:吉博力可琥+kappa矮版水箱水箱+20白色面板
如此一来,卫生间的最大死角便荡然无存。
再见了,马桶边缘一圈黑黢黢的,魔鬼般的,挥之不去的,脏东西。
洗漱台同理,储物柜和地面留足了距离。确认过眼神,是能让扫地机器人来去自如的距离。

所以,二姑娘给大家的一个忠告就是,在硬装时,就提前规划好卫生间的墙上收纳方案,日后会省力不少。
另外,二姑娘再拎出来几个小细节:
1.这个亮点不太显而易见: 整个洗漱区没有贴任何瓷砖,全部用的是纯白大理石。从墙到台面,再到镜柜后面,全部是一个整体,一种材质。好处在于全部严丝合缝,把这里的卫生死角扼杀在摇篮里。

2.插座记得留够。
不嫌多。
画图阶段,我们在洗漱台只预留了两个插座。在了解屋主的生活习惯后,我们发现两个插座满足不了现有的需求,所以让设计师多规划进去一个。(电动牙刷,水牙线,吹风机, 手机, iPad,美容仪 ……女人在洗漱区的用电需求,比你想象的多)
马桶边上也记得留个插座,为以后智能马桶盖的升级留好后路。

4.卫生间水质可以通过一些终端净水产品来升级。
这次爆改的房子,我们安装了净水设备(明天会详细讲)。在淋浴间,我们又加持了一个科勒的花洒过滤器。
这个过滤器能够过滤掉水里的余氯、重金属、杂质,用过滤后的水洗澡洗头,对敏感皮肤尤其友好。

5.这次的浴霸用的是遥控器,不需要安装开关。遥控器可以挂墙上,也可放在柜子里。据屋主反馈,非常方便。

经过这次爆改,二姑娘更加深深地觉得,卫生间的高级感,不止来自于软装的搭配,还需要海纳百川却有条不紊的收纳体系,随时干爽的湿度,以及通透柔和的光线,来共同加持。
而“能和人间烟火和谐共处”的高级感,才最有普世意义,也正是接地气如卫生间,所最需要的。
好啦,今天的「卫生间大稿」到此为止。(如果大家还有疑问,可以在评论区告诉二姑娘)。明天,我们会给大家揭秘那个,被扩大了一倍的,带中岛的厨房。
﹀
如果你还没看过前两天的文章:
关于这次爆改:
关于水电和格局:

文中提到的部分产品,都已经在二家商城上架,可以扫描上面海报的二维码,或者点击原文链接进入,查看详细产品信息~
你可能还想看
﹀
除甲醛 | 灭蟑螂 | 清洁卫生死角 | 家装防后悔指南
衣柜内部格局 | 衣柜外观 | 灯光照明 | 厨房布局
阳台家务区 | 阳台景观区 | 卫生间四式分离
四件套 | 床垫 | 窗帘 | 扫地机 | 吸尘器
宜家改造 | 1万块翻新二手房
新中式 | 北欧风屋主采访 | 超强爆改
防臭 | 插座位置 | 清包半包全包 | 装修顺序
全屋净水系统 | 厨柜五金 | 家具板材 | 免打孔好物
电商合作微信:17746822618
广告及商务合作微信:18058722310
设计师/屋主投稿:jianerjia02@163.com