楼盘概览
项目名称:湾田·望江府
项目地址:长沙市望城区雷锋大道与连江路交汇处东南角
占地面积:90871平方米
建筑面积:280000平方米
容积率:2.4
绿化率:35%
总户数:1749户
户型面积:约105平、约118平、130平
物业管理:时代物业
交付标准:毛坯交付
交付时间:2021年12月1号
预计均价:项目暂未开盘,实际价格以开盘为主(周边住宅均价约5900元/平)
销售动态:预推5#、9#建面约105平、约118平、130平毛坯高层住

(图片来源于网络)
一、项目分析
1.项目亮点
湾田·望江府是湾田地产集团在长沙打造的首个品质住宅项目,位于湘江新区的滨水新城,距离地铁四号线北延线连江路站约200米左右、片区3公里内有望城步行街、万达广场(建设中)等商业,同时项目自带4000多平米社区商业。教育上有第一师范斑马湖小学和长郡斑马湖中学两大学区配套。周边生态资源也是一级棒, “一江两湖三公园”在市区难得一见的生态环境,项目产品涵盖高层、洋房、叠墅等多种类型,是滨水新城斑马湖核心板块,性价非常高的刚需改善楼盘

(图片来源于项目实地拍摄)
2.适宜人群
望城斑马湖板块本地人、在长沙的刚需客及投资客。
二、居住体验维度
1.景观建筑
作为在长沙的首个高品质项目,湾田望江府打造“二心三轴七园”景观体系,小区内匠心打造近10000㎡新中式景观园林,绿化率高达到35%,生活在这样的小区可以说是极舒适的。小区规划了11栋高层住宅、4栋洋房、14栋叠墅。
2.社区配套
(1)游乐场:
小区打造了一个0-12岁的全年龄化的儿童亲子乐园,还为0-3岁、3-6岁、6-12岁三个不同年龄段的孩子定制了森林主题乐园。

(图片来源于项目实地拍摄)
(2)休闲配置:
社区打造有文化交流空间和一条环绕内部园林的长达500米左右的夜光跑道,是业主们在茶余饭后交流、散步、锻炼的好去处。
(3)自带商业:
项目自带4000多平米的社区底商,虽然商业配套规模不算很大,但却足够满足住户的日常生活所需,这也恰好保证了居住的纯粹性,没有大型商业的喧嚣与嘈杂,到时候乘坐地铁4号线到望城万达广场也只有1个站的距离。
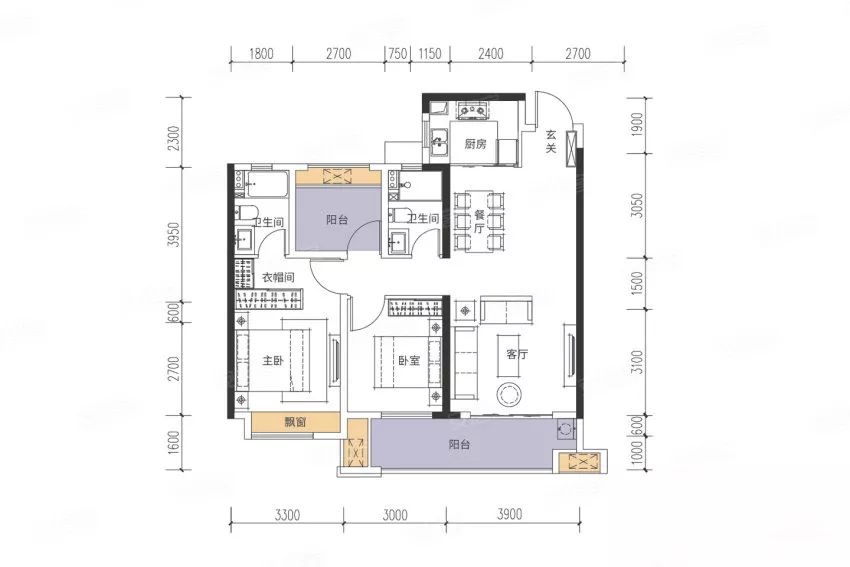
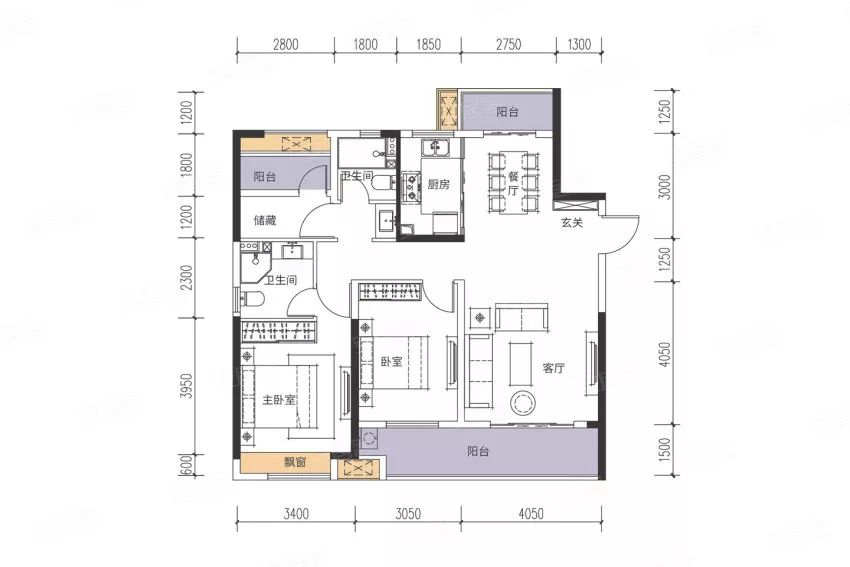
3.户型分析
项目即将推售的是5栋和9栋,分别为30层和34层,两梯四户,主力户型面积为:约105㎡三房两厅两卫、约118㎡三房两厅两卫、130㎡四房两厅两卫。
约105平户型:
(1)105平舒适三房,两室朝南,采光好,北边房间前方为连廊,有助空气对流;

(2)书房和生活阳台均为半赠送,2个大飘窗全赠送,释放更多的生活空间;

(图片数据来源于项目样板房测量)
(3)约6米宽阔阳台,可以俯瞰园林美景;
(4)美中不足的是,107的中间户为带连廊户型,南北通风没有问题,北向书房的私密性、采光会有一定的影响。
约118平户型:
(1)118平宽敞3房,南北双阳台设计,利于空气对流,保证家人隐私,生活阳台可以晾衣服、洗衣服,实用性高,约7米的休闲阳台改造成一个茶室、小型健身房或者花房空间都绰绰有余,坐在客厅就能观景;

(2)赠送近半个书房,飘窗全赠送,南北阳台半赠送,得房率非常高;

(图片数据来源于项目样板房测量)
(3)主卧室近 21 个平米并带有飘窗,不仅保障了足够的活劢空间,而且视野相当开阔;
(4)南向卧室,面积约8平米,朝南设计并带有飘窗,采光通风较好,冬暖夏凉,非常适合家中的小孩或老人居住。
130平户型:
(1)130平阔绰4房,边户南北通透,而且还有“聚财”的风水寓意;

(2)3米宽大厨房,亲朋好友来访做客,2~3个人下厨也可以转得开身;

(图片来源于项目实地拍摄)
(3)半赠送3个阳台,3个飘窗全赠送,公摊仅为20%,加上高达10平的赠送面积,得房率非常高;
(4)约9.6平米的大阳台,家人在阳台上喝茶、种花,孩子在阳台画画,老人家可以晒太阳、欣赏小区花园美景,非常惬意!
三、物业和承建商资质
建筑公司品牌:湖南源亿建设工程有限公司
建筑公司资质:拥有建筑工程施工总承包、地基基础工程专业承包、建筑装修装饰工程专业承包、市政公用工程施工总承包、消防设施工程专业承包、钢结构工程专业承包、建筑幕墙工程专业承包等项目一级资质,2017年被评为“长沙市建筑业信用企业等级AAA单位”。

(图片来源于网络)
物业品牌:时代物业(金牌物业)
物业公司资质:时代物业, 2019年,中国物业服务百强企业服务质量TOP7,中国物业服务领先品牌企业10强。
居住体验维度测评小结
从实测数据来看,无论是出行还是上学,交通都非常便利,未来步行约5分钟可到地铁4号线连江路站,小区园林示范区内空气清新,绿化率高,本次探盘,

(数据来源于真气网)
实测园林示范区噪声值为60-70分贝,空气质量pm2.5为18μg/m3,(低于同时间段长沙市区平均值20 μg/m3),整个小区拥有非常宜人的居住环境。

(图片数据来源于园林示范区测量)
片区周围紧邻19公里的湘江风光带、南邻东湖湿地公园、雷锋公园和南湖公园,社区内规划有夜光跑道、亲子乐园和社区文化中心,可以满足不同年龄段的休闲娱乐活动。

(图片来源于项目实地拍摄)
户型可以说是湾田望江府的一个加分项,首先105平、118平、130平三个户型的都带有一个宽阔大阳台,南向房间多,通风透气,采光好。然后,三个户型公摊仅为20%左右,加上10平米左右的赠送面积(相当于一个书房),得房率可以说是非常高,另外,项目取消了原8栋的规划,拓展了楼间距的宽度,保证了每栋楼之间的采光与私密性,不过,即将开售的9栋是看不到江的,5栋只有高层可以看江。
五、生活配置维度
1.交通出行
地铁:
项目东侧距离4号线北延线连江路站,步行大约200米左右,预计2024年开通。

(图片来源于项目实地拍摄)
公交出行:
项目与望城汽车站仅一路之隔,是21条公交线路的途经站,想去哪里就去哪里,出行不能再方便了。途经公交:903路、918路、w101路、w102路、w103路、w104路、w116路、w117路、w123路、w127路、w128路、w131路、w139路、w177路、w205路、w207路、w211路、w212路、w216路、w220路、w225路。

(图片来源于网络)
自驾出行:
三横三纵的交通环线,出门便是雷锋北大道,南面是潇湘北路、北面是望城内环线郭亮北路,潇湘北路往南可贯穿大河西,包括滨水新城、滨江新城核心、溁湾镇商圈等。雷锋大道往南北贯穿整个望城区和岳麓区,往南直达长沙汽车西站、梅溪湖商圈。横贯线分别为黄桥大道、连江路、工农东路, 5分钟车程内可到望城区政府,享受大河西半小时生活圈。
2.休闲配套
项目位于全区旅游核心区,一路往北有乔口渔都、千年靖港、千龙湖、铜官窑古镇、新康戏乡等,多个古镇群环绕,周末自驾来一段微旅行都是极好的。周边的生态环境确实可圈可点,从雷锋北大道一路开车来就可以感受到,迎面而来的江风,1江2湖3公园,这样的生态宜居环境,在市区估计难找。

(图片来源于网络)
东南面与19公里的湘江风光带仅一路之隔,目测距离为200米左右。南侧距离东湖湿地公园约2.5公里,2个红绿灯,车行时间约8分钟左右,雷锋大道双向6车道的规划,车行状况良好,实际会比导航时间更短。

(图片数据信息来源于高德地图)
距离斑马湖(西湖)车行距离约4公里,6个红绿灯,高德导航时间10分钟,雷锋北大道道路车行状况良好,实际车行时间为8分钟左右。

(图片数据信息来源于高德地图)
距离雷锋公园约2.5公里,2个红绿灯,高德导航时间8分钟,实际车行时间为6分钟左右。

(图片数据信息来源于高德地图)
3.教育资源
项目周边小学、中学均为学区,根据目前政府学区划分,享受配套入学。

(图片数据信息来源于高德地图)
湾田望江府距离湖南第一师范斑马湖小学约2.7公里,共4个红绿灯,导航显示7分钟,实际大约6分钟左右。

(图片来源于项目实地拍摄)
学校是由长沙望城区政府和湖南第一师范学院合作创办的一所六年制公办小学,规划办学规模48个班,可容纳学生约2160人。学校由湖南第一师范学院纳入其附属小学管理体系进行统一管理。

(图片来源于项目实地拍摄)
长郡斑马湖中学是望城区与长郡教育集团继长郡月亮岛学校之后,联合办学的又一所名校。已于2018年9月10日正式开学,办学规模为初中39个班、高中39个班,可提供学位4500个。实行长郡精细化管理模式,师资力量方面,主要面向全省选调骨干教师,以及从北师大、华东师大等六所部属院校招聘的师范生。项目到长郡斑马湖中学开车约10-12分钟,途径7个红绿灯。

(图片数据信息来源于高德地图)
4.医疗配套
望城区人民医院新院(规划中):
位于长沙市望城区高塘岭街道,由望城区人民政府和中南大学湘雅三医院合作共建的一所大型综合三级甲等医院。项目建设总用地面积为223.18亩,规划有1200张床位,预计在近几年内即可投入使用。

(图片来源于网络)
望城区人民医院:
长沙市望城区人民医院(原望城县人民医院)始建于1951年,是一所集医疗保健、科研教学于一体的综合性二级甲等医院。距离项目1.2公里,开车5~6分钟左右。

(图片数据信息来源于高德地图)
长沙市第四医院新院滨水新城院区(建设中):
长沙市第四医院滨水新城院区为一所以基本医疗为主,集特色专科和康复医疗于一体的公立三级甲等综合医院。

(图片来源于网络)
望城预计于2019年投入使用,建成后将成为长沙市望城区和大河西先导区内的医疗服务中心。项目距离第四医院16公里,车行距离约20分钟左右,看病还是较为便利的。

(图片数据信息来源于高德地图)
5.商业配套
望城步行街:
望城步行街总长700米,长度仅次于黄兴南路步行商业街,是大河西最长的商业步行街,步行街的西街将以运动休闲服装、时尚潮流等服饰为主,步行街中心广场有大型的超市卖场,东街则依托酒店等休闲特色打造娱乐中心。

(图片来源于网络)
万达广场(规划中):
斑马湖万达商业广场是万达在长沙继开福万达广场后的第二个万达商业广场。占地62.87亩,总建筑面积近15万方,总投资约10亿元,预计2020年8月正式开业。已经确定入驻的品牌有万达影院、万达大玩家、万达宝贝王等主力店,具体业态及品牌已开业前实际招商情况为准。

(图片来源于网络)
生活配置维度测评小结
地铁4号线预计2024年通车,连江路地铁站规划在项目地块东侧,开通之后,生活确实非常方便。小区北侧距红线约50米有望城汽车站与公交首末站,21条公交线路乘坐方便,但是靠近北侧的楼栋可能会存在一定的噪音等影响,但是关系不大。自驾出行,三横三纵的交通路网,连通大河西。
1江2湖3公园,生态环境可以说是一级棒,步行200多米便可到达湘江风光带。周边的小学中学都为学区配套入学,小区北侧约1公里为规划中的大洲小学,大洲小学大概率是合作办学(挂什么品牌待政府确定),建成后也有可能就近划分学区。
医疗配套方面,目前距离较近的为望城区人民医院,距离1.2公里,车行时间约6分钟;区域内2所大型综合3甲医院望城区人民医院新院区、长沙市第四医院滨水新城院区,正在建设中,预计近2年内可以投入运营。
周边的商业配套较为欠缺,成熟运营的望城步行街、建设中的万达广场、项目自带4000多平米社区底商,可以满足住户的日常生活所需。
6.价值回报
1.地段价值:
项目位于雷锋大道与连江路的交汇处,地处湘江新区-滨水新城 斑马湖核心板块,是中部城市第一个国家级新区。项目地处滨水新城板块,项目所处的滨水新城位于湘江新区的北部,是长沙湘江新区重点建设的五大核心板块之一。

(滨水生态新城 规划图,图片来源于网络)
从片区住宅供应面积、套数、成交量都是在六大板块中排前的。各大品牌开发商,如恒大、龙湖、中粮等已经进驻,万科、绿地、金茂也将陆陆续续进入。从这一点看,未来滨水新城板块已经具备了热门板块的潜质。
2.已经兑现的政策利好:
(1)湘江新区的国家级规划
2015年5月24日湘江新区成为继上海浦东新区、天津滨海新区等之后,由国务院2018年批复的第十二个国家级新区,也是中部地区第一个国家级新区。长沙市政府高度重视,斥资3000亿重点打造该片区。

(滨水生态新城 规划图,图片来源于网络)
(2)滨水新城的板块定位
滨水新城南起三汊矶大桥、北至沩水河、东抵湘江、西临雷锋大道和金星大道。

(图片来源于网络)
该板块是长沙湘江西岸现代服务业走廊核心组成部分,更是国家级湘江新区定位的总部经济区、新兴服务业基地和三个副中心之一。
(3) 长沙港产业规划
《长沙港总体规划(2015—2030年)》2015年获批。按照规划,长沙港由霞凝港区、新康港区、铜官港区及客运港区等四大客货港区和旅游停靠点码头、管理专用码头组成,规划岸线24.45公里。截至2017年底,长沙港共有建成泊位129个,在建泊位24个,其中千吨级及以上泊位54个,实现货物吞吐量5231.8万吨。
3.已经规划未兑现政策利好:
1.规划中的地铁4号线北延线
2.建设中的万达广场
3.建设中的长沙市第四医院新院滨水新城院区
4.建设中的望城区人民医院新院
六、温馨提示(不利因素)
1、小区西临雷锋大道城市主干道,北临连江路城市次干道;南临迎仓路城市次干道,可能有粉尘,噪音等影响。
2、小区东南角现有10kv次高压线,预计2020年完成迁改。
3、小区北侧距红线约50米有望城汽车站与公交首末站,可能有噪音等影响。
4、小区南侧地块暂未出让,后期建设可能存在噪音粉尘光污染影响。
七、常见问题
1、项目旁的地铁4号线何时开通,步行距离多长?
地铁4号线大概在2024年开通,项目步行到地铁约150米内,大概5分钟左右。
2、到长郡斑马湖中学和第一师范斑马湖小学开车多久?
(1)到第一师范斑马湖小学开车约5分钟,途径2个红绿灯。
(2)到长郡斑马湖中学开车约10-12分钟,途径8个红绿灯。
3、项目配套的小学和中学是哪个?能保证入读吗?
小学大概率入读的是第一师范斑马湖小学,中学为长郡斑马湖中学,初中为微机派位。
4、与华润桃源里、联城雅郡、正荣财富中心相比,项目最大的优势在哪?
地铁4号线在门口(已经确定规划了),开发商口碑好,在湘打造的第一个项目,更用心。
最后,安利一下,11月20日,湾田地产战略暨湾田望江府产品发布会,将在长沙紫鑫戴斯酒店即将盛大举行,对项目感兴趣的购房者可以参加本次活动,进一步了解项目。如果你有买房问题,可以直接私信长沙侃房或查看微头条!房哥拉你免费进购房交流群!
(图片部分来源于网络,仅供参考,如有侵权请联系删除)