
整体风格现代时尚,融入了大量六边形结构装饰,就像蜂巢六边形可以用最少的建筑材料获得最大的使用空间,客厅电视墙用装饰替代

飘窗改造成了独立的休闲空间,垭口设计成六边形,与众不同,客厅还挂了透明的秋千

沙发背后是开放式的厨房空间

纯白色的柜体本身就是一种装饰,估计也就是装饰作用了

角落的餐厅空间,小圆桌加白色埃姆斯椅,北欧宜家范

楼梯采用玻璃扶手,楼梯空间的背景是用文化砖制作,上楼梯后的小空间设计成开放式小书房

主卧采用绿色墙面,靠窗位置设计成阅读区

儿童房用蓝色调,加入彩绘,白色的儿童家具

卫生间都是用六角形马赛克铺贴
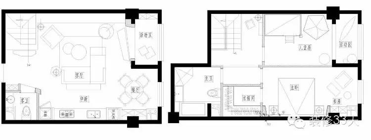
平面布置图(其实是个样板间)
设计 |爱窝窝设计 孟冬(北京)
欢迎业主、设计师、装修公司投稿照片
商务合作微信:king194316
