江苏省建设工程消防设计审查验收常见技术难点问题解答2.0(二〇二二年十月)

1.2 住宅建筑
1.2.1 总平面布局
1.2.1.1 《住宅设计标准》DB32/3920-2020 第8.6.2 条文说明:“消防车道转弯半径可以以道路中心线计算”,只有两种尺寸(高层15m 和低多层9m)控制,对于建筑高度介于27-33m 的高层住宅是否过于苛刻?
答:高层和低多层住宅消防车道中心线半径分别不应小于 15m 和 9m 。对于建筑
高度介于 27-33m 的高层住宅,确有困难时,可根据《建规》第 7.1.8 条文说明 “ 消防车的转弯半径一般均较大,通常为 9m~12m” ,按 12m 控制道路中心线半径。
1.2.1.2 《住宅设计标准》DB32/3920-2020 第8.6.1 条:“消防车道应符合下列规定:3.当住宅建筑沿街部分的长度大于150m 或总长度大于220m 时,应设置穿过该建筑物的消防车道。确有困难时,应设置环形消防车道。”问:当住宅建筑不直接沿街,小区周边建筑物外设有围墙时,是否可以不按此条执行?
答:应按此条执行。
1.2.2 防火分区和平面布置
1.2.2.1 两个住宅单元呈夹角(大于等于90°且小于180°)布置,此时这两个单元外窗的间距是按防火间距计算,还是按防火墙或防火隔墙两侧的洞口间距计算?

答:两个住宅单元拼接时,两个单元外窗间的墙体宽度(水平距离)应满足《住宅设计标准》DB32/3920-2020 第8.8.2 条1.0m 的要求。
1.2.2.2 《住宅设计标准》DB32/3920-2020 第8.4.6 条提出地下机动车库、非机动车库及库房的自然排烟窗、采光窗与高层住宅、其他住宅外墙开口的防火间距要求。对于升出地下室顶板的机械排烟井、进风井是否需要执行此要求?
答:《住宅设计标准》 DB32/3920-2020 第 8.4.6 条是对自然排烟窗、采光窗的要求,机械排烟井、进风井不受此条限制。
1.2.2.3 商业服务网点作为一种特殊的商业活动场所,允许哪些使用用途?如小型儿童培训机构、托育中心、修脚店等可否设置在商业服务网点内?
答:按照《住宅设计标准》 DB32/3920-2020 第 2.0.43 条,商业服务网点是 “ 每个分隔单元建筑面积不大于 300 ㎡的商店、邮政所、储蓄所、理发店等小型营业性用房 ” 。小型儿童培训机构、托育中心属于儿童活动场所,和老年人救援难度相当,可参照《住宅设计标准》 DB32/3920-2020 第 8.5.2-6 款, “ 总面积不大于 300 ㎡ ” 且 “ 设置在住宅首层时,可按照商业服务网点进行设计,但其安全疏散、防火分隔、消防设施等应按《建规》等标准的要求设计 ” 。修脚店(足疗店)的业态特点与桑拿浴室休息室或具有桑拿服务功能的客房基本相同,其消防设计应按歌舞娱乐放映游艺场所处理,不得设置于商业服务网点内。其他新型功能可根据具体情况分析判定。
1.2.2.4 原底部设置商业服务网点的住宅建筑,现将其中两个及以上网点分隔单元改造合并为一家其他功能的营业性用房(建筑面积大于300 ㎡,如线下培训机构、银行、月子中心、美容中心、专科门诊、健身会所、宠物医院等)。合并后的商业是否仍是商业服务网点?
答:根据《建规》第 5.4.11 条 “ 商业服务网点中每个分隔单元之间应采用耐火极限不低于 2.00h 且无门、窗、洞口的防火隔墙相互分隔 ” ,两个及以上网点分隔单元合并后(建筑面积大于 300 ㎡)不再是商业服务网点。
1.2.3 安全疏散和避难
1.2.3.1 《住宅设计标准》DB32/3920-2020 第8.7.3 条:住宅的“户门和安全出口的净宽度不应小于0.9m,疏散走道、疏散楼梯和首层疏散外门的净宽度不应小于1.1m。”此处的首层疏散外门是否包括门厅内楼梯间的首层疏散门?住宅地下室的楼梯在一层直接对外的门是否也需要控制1.1m 的净宽?
答:首层疏散外门指的是直接对外的门,不包括门厅内的楼梯间首层疏散门和地下室楼梯开向门厅的疏散门。为住宅服务的地下室(机动车库、非机动车库、设备用房等)疏散楼梯间首层直通室外的疏散门的净宽度不应小于 0.9m 。
1.2.3.2 国家标准管理组《超高层住宅建筑避难层设置问题的复函》建规字(2018)6号:“当住宅建筑中所需避难面积较小,不需要整个楼层作为避难区时,可采用该避难层的局部区域作为避难区,但避难区应采用不开门窗洞口的防火隔墙与其他区域分隔,且应至少有两个面靠外墙,至少有一面位于建筑的一条长边上。”问:至少两个面靠外墙的区域是否可以包括进入避难区的前室等区域?
答:两个面靠外墙的区域是指避难区,不含进入避难区的前室及走道。
1.2.3.3 对于图示建筑高度为33m~54m 的高层住宅,连廊是否可以看成防烟楼梯间的前室?标准层穿过消防电梯前室再到楼梯间前室的做法,是否可行?该门是否可以为普通门?此时,户门至安全出口的距离,应计算到楼梯间门还是通向连廊的门?若消防电梯前室与敞开连廊合为一个合用前室,住宅户门至楼梯间的门是否有距离控制要求?
答:连廊可作为防烟楼梯间前室。标准层穿过消防电梯前室再到楼梯间前室时,两个前室实际合为一个合用前室,开向敞开外廊的门可为普通门。户门至安全出口的距离,可按照《住宅设计标准》 DB32/3920-2020 第 8.7.5 条文说明控制。控制前室(走廊或外廊)面积时,可按净面积(不含两侧栏板)计算。当消防电梯前室与敞开连廊合为一个合用前室时,仍应按 8.7.5 条规定控制敞开连廊面积。

1.2.3.4 建筑高度大于54m 的多单元高层住宅,每个单元的两部楼梯均已在出屋面处各自连通,单元之间是否还需要连通?
答:可以不连通。屋面连通的目的是让只有一个安全出口的单元多一条疏散路径。
建筑高度大于 54m 的高层住宅单元,本身已满足两个安全出口的要求。
1.2.3.5 住宅建筑的普通电梯和消防电梯是否可以同时设在防烟楼梯间前室?
答: 住宅建筑的普通电梯和消防电梯可以同时设在防烟楼梯间前室,普通电梯应满足《住宅设计标准》 DB32/3920-2020 第 8.7.20 条的设置要求,电梯厅及电梯井的门口应设挡水设施。
1.2.3.6 住宅的楼梯和电梯常成组布置,当地下汽车库不需借用楼梯疏散时,可否仅将电梯通至地下汽车库?
答:仅为住宅服务的地下汽车库可行。
1.2.3.7 住宅户门开在合用前室中,户门至安全出口的距离是否有要求。
答:住宅户门直接开向合用前室时,户门至安全出口的距离没有要求。但如属于本解答 1.2.3.3 条的情况,从其规定。
1.2.3.8 《建规》第5.5.25-3 款规定:住宅建筑高度大于54m 的建筑,每个单元每层的安全出口不应少于2 个。如果一层住户不满足两个安全出口的要求,是否可以?将一层户型的阳台门作为第二个安全出口,是否可以?
答:安全出口不应少于两个的要求是针对每一层的每个单元,并非每一户。疏散的原则是通过户门疏散到公共区域再到安全出口。阳台门可作为本户的安全出口,但不可作为所在单元的安全出口。
1.2.3.9 地上设敞开楼梯间和电梯、地下室设封闭楼梯间的11 层住宅建筑,地下室电梯门和电气管井(为本栋住宅服务)检修门可否开设在地下室的封闭楼梯间内?
答:根据《住宅设计标准》 DB32/3920-2020 第 8.7.23 条: 11 层及以下住宅,与电梯厅共用平台的敞开楼梯间通至地下室时,楼电梯间应采用甲级防火门与其他部位分隔。电梯门和电气管井检修门可以开向该封闭楼梯间,电气管井检修门应采用乙级防火门。
1.2.3.10 住宅中通往“三合一前室”的两扇防火门之间的水平距离已大于5m,问“三合一前室”内通往两个疏散楼梯间的防火门的水平距离是否仍需大于5m?
答:需要。
1.2.3.11 商业服务网点可以做开敞楼梯吗?
答:可以做开敞楼梯。
1.2.3.12 住宅套内房间(走道)最远点经过楼梯(楼梯按其水平投影长度的1.50 倍计算距离)到一层安全出口的距离符合《建规》第5.5.17 条对房间、走道疏散距离的要求,设置开敞楼梯是否可以?
答:可以。
1.2.3.13 《住宅设计标准》DB32/3920-2020 第8.7.6 条:“建筑高度不大于54m 且仅有一个单元的高层住宅,应在靠近消防登高场地一侧设置屋面疏散场地,场地面积按照5 人/㎡计算,且不小于18 ㎡。”问:独立单元的18 层住宅(高度不超54m),消防登高场地和消防车道都设在南侧,该侧有尺度较大的立面造型,对这些造型有什么具体要求?
答:此处的立面造型应考虑设置供消防救援人员进入的窗或洞口,其净高度和净宽度均不应小于 1.0m ,下沿距屋面完成面不大于 1.2m 。供消防救援人员进入的窗口玻璃应易于破碎,并应设置可在室外易于识别的明显标志。
1.2.3.14 商业服务网点中的居家养老服务用房是否有使用人数(床位)的限定?
答:与 “ 居家养老服务用房 ” 最接近的概念是《老年人照料设施建筑设计标准》 JGJ450-2018 中的 “ 社区养老服务中心 ” 。如下图:

此功能性质为活动设施,没有床位概念。但考虑到居家养老服务用房实际使用时,为方便居民生活常设置日托中心,需要提供膳食供应、个人照顾、保健康复、娱乐休闲和交通接送等服务,这些老人常有一些生活不能完全自理、日常生活需要一定照料的半失能老年人,需设置一些床位。参考《老年人照料设施建筑设计标准》 JGJ450-2018 ,床位数应少于 20 。
1.2.3.15 建筑面积大于50 ㎡的住宅套内地下室疏散可按套内最远点至户门的疏散距离控制。如不满足疏散距离要求,可否借用开向地下其他防火分区的甲级防火门或户内天井设置的通向室外地面的垂直爬梯作为第二个疏散出口?
答:不可以。住宅户内地下室通过疏散走道直通其他非住宅防火分区的前室或楼梯间,开向疏散走道的甲级防火门可以作为第二疏散口。在户内天井设置的通向室外地面的垂直爬梯,无法控制住户改造(增加玻璃顶等),难以保证天井完全露天,不可作为第二个安全出口。
1.2.3.16 19 层及以上住宅单元如采用外廊疏散,通往外廊的门开启方向有何限制,是否一定要双向开启?该门的净宽有何要求?
答:该门宜采用可双向开启的非防火门,该门的净宽度不应小于 0.9m 。
1.2.4 建筑构造
1.2.4.1 《住宅设计标准》DB32/3920-2020 第8.8.3 条文说明:“楼梯间窗口与其自身的前室窗口之间、前室(合用前室)与敞开外廊之间的距离可不作要求。”问:楼梯间窗口与敞开外廊之间的距离如何控制?
答:楼梯间窗口与连廊开口的水平距离应满足《建规》第 6.4.1-1 款 1.0m 的要求。如敞开外廊同时作为该楼梯间的前室,则距离不限。
1.2.4.2 住宅设计封闭阳台时,当阳台内房间的外墙和外门均按外墙设计(节能计算作为外墙和外门窗),且阳台内侧的房间门窗满足1h 耐火极限的情况下,该阳台是否要满足窗槛墙1.20m 的高度要求?
答:住宅设计开敞阳台时,不需考虑 1.2m 的窗槛墙。设计封闭阳台时,在消防
设计上按室内空间考虑,其外墙上下层开口之间的实体墙高度及相邻户开口之间墙体宽度应满足《住宅设计标准》 DB32/3920-2020 第 8.8.2 条的规定。当上、下层开口之间设置实体墙确有困难时,可设置防火玻璃墙,高层建筑的防火玻璃墙的耐火完整性不应低于 1.0h ,多层建筑的防火玻璃墙的耐火完整性不应低于 0.5h 。外窗的耐火完整性不应低于防火玻璃墙耐火完整性的要求。
1.2.4.3 《住宅设计标准》DB32/3920-2020 第8.8.1-1 款:“局部遮挡物的总宽度不应大于连廊直接对外开口宽度的20%”,是否意味着此种情形时敞开连廊直接对外最小开口宽度不应小于4.8m?
答:《住宅设计标准》 DB32/3920-2020 第 8.8.1-1 款开口最小宽度 6.0m 是烟气扩散顺畅的保证,对外开口宽度应为连续长度,连续长度可包含总宽度不大于连廊直接对外开口宽度 20% 的柱子、管井等局部遮挡物。需要注意,这里的局部遮挡物不可以是电梯、电梯厅、楼梯等建筑主体。另外,如柱子、管井等局部遮挡物进深过大,同样会影响烟气扩散,所以当开口宽度不足 6.0m 时,柱子、管井等局部遮挡物进深不应超过 1.0m 。如下图:

1.2.4.4 当住宅内天井外侧遮挡物超过20%,不能满足《住宅设计标准》DB32/3920-2020第8.8.1.1-2 款规定时,天井内的窗都设置为乙级防火窗,是否可以?
答:不可以。
1.2.4.5 非机动车坡道在地下出入口处未设防火门,坡道地面出入口与地上相邻建筑的防火距离是否按《住宅设计标准》DB32/3920-2020 第8.4.6 条要求?
答:非机动车坡道在地下出入口未设置防火门时,坡道的地面出入口与地上相邻
建筑的防火间距应满足《建规》第 6.4.5 条室外楼梯的相关规定。当相邻建筑面向坡道地面出入口侧的外墙为防火墙,或非机动车坡道在地下出入口设置甲级防火门时,其防火间距可不限。
1.2.4.6 1)住宅地下室仅一层且地上、地下共用楼梯间仅在首层进行防火分隔,地下楼梯间首层直通室外并设置不小于1.2 ㎡可开启外窗或外门,是否满足楼梯间自然通风要求?
答:当地下楼梯间在首层用实体墙(不得设任何门窗洞口)与地上楼梯间分隔,
并直通室外时,地上、地下楼梯间不认为是共用楼梯间,可以根据《建筑防烟排烟系统技术标准》 GB 51251-2017 第 3.1.6 条进行判定。
2)如地下部分楼梯间在首层通过住宅单元门厅直通室外,地下部分楼梯间是否
应在首层最高部位设置不小于1 ㎡可开启外窗?最高部位如何界定?(在首层楼梯平台下设置是否可行?)如可开启外窗无法设置于首层最高部位,是否需要设置机械加压送风系统?
答:地下部分楼梯间在首层通过住宅单元门厅直通室外,地下部分楼梯间应在首
层最高部位设置不小于 1 ㎡可开启外窗。最高部位应在二层楼面的板下或梁下,在首层楼梯平台下的可开启外窗不可行。如可开启外窗无法设置于首层最高部位,须设置机械加压送风系统。
3)如地下部分楼梯间设置机械加压送风系统是否须要执行《建筑防烟排烟系统
技术标准》GB 51251-2017 第3.3.11 条在其顶部设置不小于1 ㎡的固定窗?
答:需要执行。 1 ㎡的固定窗可以设置在首层楼梯平台下。
1.2.4.7 住宅建筑封闭楼梯间南侧设置主入口门厅,北侧设置室外楼梯作为次要入口(高差1.2m),北侧楼梯是否按照《建规》第6.4.5 条室外疏散楼梯的消防要求?还是可按室外台阶?
答:如次入口作为首层安全出口,楼梯应按室外疏散楼梯设计。
1.2.4.8 住宅地下汽车库进入地下大堂(电梯厅)时,需要设置门禁,建筑专业设置甲级防火门(常为常开门),电气专业要设置防火门监控系统。一个门上既设置门禁又设置防火门监控系统,是否合理?防火分区防火门和设置门禁的门在建筑设计中能否分开设置?现实中为了方便业主进出需要,物业会换成透明玻璃门,是否满足消防要求?
答:通过防火分区划分,可以将门禁门与防火门分开设置。地下大堂门可为玻璃
门,设置门禁和安全出口标识;通往前室的门为常开防火门(甲级、乙级根据具体情况确定),设置防火门监控系统和安全出口标识。所有设置门禁的门需要具备在紧急疏散时自动解锁的功能,以便安全疏散,可参考图示。

1.2.4.9 消防电梯井、机房与相邻消防电梯井、机房之间是否可以不做分隔?
答:同一防火分区内的可以不做分隔,但是井道之间需要满足电梯相关技术标准
要求。
1.2.4.10 住宅与二层的人员密集场所(非商业服务网点)组合建造的高层建筑,住宅部分的外墙保温材料燃烧性能是什么?
答:需要满足燃烧性能 A 级要求。
1.2.4.11 建筑底层扩大封闭楼梯间的门(底层门厅大门)与相邻门、窗、洞口水平距离是否需要满足不小于1m 的要求?
答:需要。
1.2.5 灭火救援设施
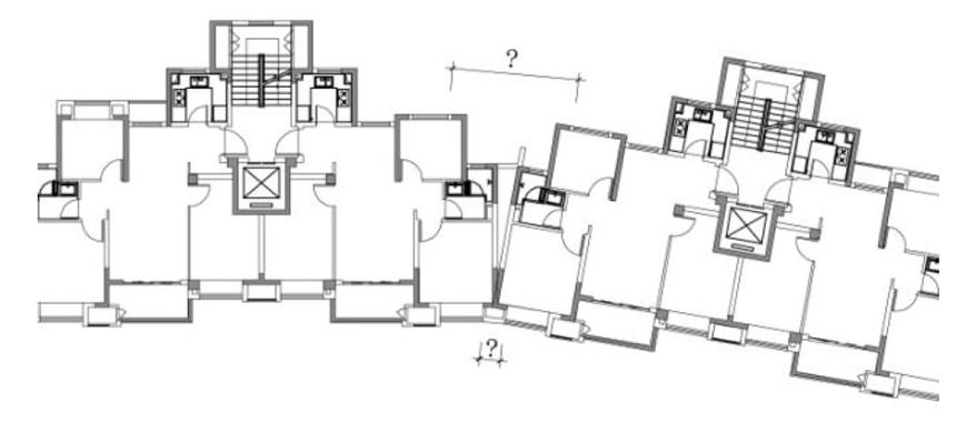
1.2.5.1 《住宅设计标准》DB32/3920-2020 第8.6.3 条:消防车登高场地范围内的裙房或底层门厅进深不应大于4.00m。若住宅外轮廓有凹槽,4.00m 是从突出的楼梯间外墙计算还是从疏散连廊计算?凹槽中底层有突出高层的建筑是否影响消防扑救或救援?
答:对于设有内天井和敞开外廊的住宅,应优先以朝向消防车登高操作场地的前
室或楼梯间外窗作为供消防救援人员进入的窗口(应符合《建规》要求),并以此窗所在外墙作为裙房或底层门厅的 4m 进深控制线,见下图左侧凹槽。当受条件限制,无法满足上述条件时,应以敞开外廊作为裙房或底层门厅的 4m 进深控制线,凹进的敞开外廊宽度不应小于 10m (参考救援场地短边 10m 的要求),便于消防车进入和救援,见下图右侧凹槽。两种情况下,雨棚均不应凸出 4m 进深控制线。


1.3 公共建筑
1.3.1 总平面布局
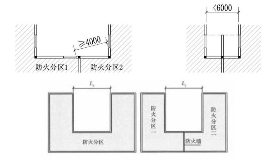
1.3.1.1 相邻建筑通过封闭连廊连接时,如两幢建筑间防火间距满足规范要求,是看作一幢建筑还是两幢建筑?
满足防火间距要求的相邻建筑通过封闭或非封闭连廊连接时,开向连廊的门是否
可作为第二安全出口?此门是否可采用普通门?连廊的最小宽度是否有要求?
民用建筑之间采用设有卫生间的连廊联系,该出口是否可作为安全出口?还是需
要以防火分区形式进行分隔?
答:《民用建筑设计术语标准》 GB/T 50504-2009 第 2.5.38 条,连廊:连接建筑之间的走廊。
连廊应仅供通行不得有其他任何使用功能,且其构件和装修材料均应为不燃材料;采用封闭连廊连接的两幢建筑之间的防火间距应满足《建规》表 5.2.2 的规定,封闭连廊部位应明确其防火分区的归属。
当作为一幢建筑时,在连廊部位划分防火分区,需满足各自防火分区的疏散和防火墙两侧的防火构造要求;当作为两幢建筑时,连廊应仅供通行不得有其他任何使用功能,且其构件和装修材料均应为不燃材料,以连廊作为两栋建筑的界面,满足建筑贴邻布置的防火间距不限的相关要求;连接两座不同建筑物的天桥、连廊一般应在建筑通向天桥或连廊等的开口处采取设置防火门、防火卷帘等防止火灾在两座建筑间蔓延的措施;对于采用不燃材料构筑且开敞的室外天桥或连廊,当建筑之间的间距符合防火间距要求时,可以不采用防火措施;满足规范防火间距要求的相邻建筑通过封闭或非封闭连廊连接时,开向连廊的门可以作为第二安全出口,连廊的最小宽度不应小于所需疏散宽度的要求。
如果连廊中设置卫生间,具有使用功能,需将该 “ 连廊 ” 划入相连接建筑的某一防火分区。
1.3.1.2 民用建筑开向设有疏散楼梯的室外疏散平台的门是否要乙级防火门?
通过通向天桥、连廊的出口向另一座建筑疏散时,该出口可作为安全出口计入疏
散宽度,且另一座建筑无需增加此部分人员的疏散宽度吗?
答:民用建筑通向满足疏散要求的室外平台的疏散门,可以采用普通门;通向连
廊、天桥的门应为相应等级的防火门;当通过通向天桥、连廊的出口向另一座建筑疏散时,因不考虑两栋建筑同时失火,故不需要增加此部分人员的疏散宽度。
1.3.1.3 同一公共建筑“回”字形或“U”字形等凹口平面形状的,其两翼墙上的门窗洞口之间间距有何要求?
答:同一座 U 型公共建筑两翼属于不同防火分区时,其内转角两侧墙上的门、
窗、洞口之间最近边缘的水平距离不应小于 4m , U 型公共建筑相对两翼的防火间距不应小于 6m ,不满足时,可在相对两翼的门窗洞口之间设置垂直防火隔墙(耐火极限不应低于 1.00h ),该隔墙的外端应与相对的两个门窗洞口的最外边平齐;
同一座 U 型公共建筑两翼属于同一防火分区时,如凹口的宽度大于深度,则凹
口较浅,可以认为火灾蔓延的危险性小,一般可以不考虑凹口相邻两翼的间距;如凹口的宽度小于深度,则凹口较深,有较大的火灾蔓延危险性,考虑到凹口处可能产生的特殊火效应,相邻两翼的间距按不小于 6m 控制(如图);

回字形公共建筑相对两翼最近的门、窗、洞口间距应不小于按照内天井的空间高
度确定的防火间距要求(如图)。

1.3.1.4 相邻两座民用建筑,当符合《建规》第5.2.2 条表5.2.2 注的条件并需减小防火间距时,规定条件中的防火墙及其上开窗应如何设置?
答:此处的防火墙应按照《建规》第 5.2.2 条的注、以及注的条文说明设置。
相邻民用建筑的防火间距,当按照《建规》第 5.2.2 条的注、以及注的条文说明
的基本要求而减少时,防火墙的设置应按照以下图示控制。


1.3.1.5 附建在民用建筑下部的地下室,其位于主体建筑范围之外的出地面楼梯间与建筑之间的防火间距如何控制?如果该楼梯在地面完全敞开或有顶盖无围护结构,防火间距如何控制?
答:地下室出地面的独立疏散楼梯(包含完全敞开或有顶盖无围护结构),应按
民用建筑之间或汽车库与民用建筑之间的防火间距确定;若楼梯间采用防火隔墙和甲级防火门窗时,防火间距可以不限。
1.3.1.6 消防水池、消防水罐、消防水箱等消防储水设施是否需按公共建筑要求来控制其与周边设施的防火间距?
答:当此类设施均为不燃物且无人员驻留时,与相邻建筑、设施仅需满足检修、
安装等距离要求。
1.3.1.7 在确定建筑的防火间距时,是否需要考虑外挂楼梯、室外疏散楼梯、开敞式外廊、阳台、窗台、雨棚等的影响?
答:关于建筑之间的防火间距计算或测量方法,《建规》附录 B 有明确规定;
凸出建筑外墙不作为疏散使用的外挂楼梯、开敞式外廊及阳台、窗台、雨棚、装
饰构件、勒脚、挑檐、非围护用幕墙等,均不得影响消防车通行或消防救援作业,当上述部件或构造均采用不燃材料时,建筑之间的防火间距可从建筑外墙测量或计算;有室外疏散楼梯的建筑,防火间距应从室外疏散楼梯的外沿测量或计算。
1.3.2 防火分区和平面布置
1.3.2.1 公共娱乐场所怎么界定?小型百货商店、教育培训机构、无治疗功能的休养性质的月子护理中心、教学实训楼、保龄球馆、台球、棒球、飞镖、真人CS、密室逃生、蹦床、美容院、体检中心、SPA(无公共浴池)、电竞酒店、室内卡丁车场等按照什么功能进行技术审查?
答:公共娱乐场所:具有文化娱乐、健身休闲功能并向公众开放的室内场所,包
括影剧院、录像厅、礼堂等演出放映场所,舞厅、卡拉 OK 厅等歌舞娱乐场所,具有娱乐功能的夜总会、音乐茶座、酒吧和餐饮场所,游艺、娱乐场所和保龄球馆、旱冰场、桑拿等娱乐、健身、休闲场所和互联网上网服务营业场所,以及其他与所列场所功能相同或相似的营业性场所;
小型百货商店、教育培训机构都属于公共建筑的不同类型,原则上执行《建规》,教育培训机构要针对不同年龄的人群执行相应的专项规范;
无治疗功能的休养性质的月子护理中心人员行为能力、疏散和救援难度与老年人照料设施相近,安全疏散、避难和消防设施设计可参照老年人照料设施的要求;用于教学的实训楼,如技工学校中的汽车检修教室、卫生职业技术学院中的老年人护理、医学院中的模拟病房、商贸学院中的模拟酒店客房等用房,可按照教学实验建筑的要求进行消防设计;
保龄球、台球、棒球、飞镖、真人 CS 、密室逃生、剧本杀、蹦床、室内卡丁车
场等场所属于非歌舞娱乐放映游艺的公共娱乐场所,可不按歌舞娱乐放映游艺场所设计;电竞酒店兼具网吧和酒店两者特性,是电竞和酒店功能的组合,目前主要功能是满足社会年轻人娱乐、社交而非住宿要求,鉴于上述属性,电竞酒店按照歌舞娱乐放映游艺场所进行消防设计;上述场所与其他功能用房之间应采取防火分隔措施;
SPA( 无公共浴池,但包厢有独立淋浴间)应按照歌舞娱乐放映游艺场所的要求执行;不带治疗功能的体检中心、美容(无 SPA 、足疗功能)按一般性经营场所进行设计;有治疗功能的体检中心、医疗美容执行《建规》中医疗建筑的相关规定。
1.3.2.2 老年人照料设施所指范围是否包含老年人活动场所、附带的老年人医疗保养场所、不完全封闭的老年人活动和健身场地?
答:老年人照料设施内可以包含此类功能,但是专供老年人使用的、非集中照料的设施或场所,如老年大学、老年活动中心等不属于老年人照料设施。
1.3.2.3 影院、礼堂、剧场候场大厅处的防火分隔墙能否采用防火卷帘替代?
答:《电影院建筑设计规范》 JGJ58-2008 第 6.1.2 条,当电影院建在综合建筑内时,应形成独立的防火分区;《建规》第 5.4.7 条,电影院、礼堂、剧场应采用耐火极限不低于 2h 防火隔墙和甲级防火门与其他区域分隔,当该部位为防火分区的界限时,应采用防火墙和甲级防火门;该分隔部位的防火墙不可采用防火卷帘替代。采用中庭和其他区域分隔时,允许在中庭周围设置防火卷帘。
1.3.2.4 《建规》第5.3.4 条文说明“当营业厅内设置餐饮场所时,防火分区的建筑面积需要按照民用建筑的其他功能的防火分区要求划分,并应与其他商业营业厅进行防火分隔。”应理解为设置了餐饮场所的商业营业厅整体执行本规定,还是仅指设置餐饮场所的部分执行本规定?
答:商业营业厅内设置餐饮场所(不包括无就餐区且不产生油烟的饮品店、轻食
店)的防火分区建筑面积应按照民用建筑的其他功能的防火分区要求划分,无餐饮场所的其他商业营业厅防火分区仍可按《建规》第 5.3.4 条规定的商业营业厅的防火分区要求划分。
1.3.2.5 建筑的室外平台、敞开外廊、敞开连廊、敞开阳台、露台等是否计入防火分区面积?建议明确哪些情况可不计入防火分区面积。疏散距离是否需要考虑?
答:防火分区的建筑面积一般按照建筑的自然楼层外墙结构外围的水平面积之和
计算。室外平台、敞开外廊、敞开连廊、敞开阳台、露台,室内的游泳池、真冰溜冰场的冰面面积、射击馆的靶道区、保龄球的球道区、室内滑雪场的雪区等面积可以不计入相应楼层防火分区的建筑面积;
但是对于商业营业厅等人员密集的场所,公众可达的室外平台、敞开外廊、敞开
阳台、露台,室内游泳池、真冰溜冰场的冰面、室内滑雪场的雪区,为保证火灾时相应疏散楼梯和疏散出口的宽度满足安全疏散的要求,仍应将这部分建筑面积按照人员密度计算疏散人数;其任意一点到达最近的安全出口的疏散行走距离不应大于 60m 。
1.3.2.6 不同防火分区合用疏散楼梯间是否可行?具体实施要求?
答:不同防火分区原则上不应合用同一座疏散楼梯间,确有困难需要合用时,应符合以下要求:
1 )合用的防火分区不应超过 2 个;
2 )合用的两个防火分区分别有 2 个及以上安全出口;合用的楼梯间应采用防烟
楼梯间,且两个防火分区应分别设置前室,前室之间应采用无门、窗、洞口的防火墙分隔;

1.3.2.7 目前,托育机构的消防设计参照的标准是“托儿所”要求还是参照“儿童活动场所”的要求?另“中、大型”托育机构是否需要参照“中、大型”托儿所要求进行独立设置?
答: “ 中、大型 ” 托育机构需参照 “ 中、大型 ” 托儿所、幼儿园要求进行独立设置,同时要满足《托育机构消防安全指南(试行)》(国卫办人口函〔 2022 〕 21 号文)的要求。
1.3.2.8 科研建筑的底部楼层有时会配置一些生活便利设施,如小型咖啡店、简餐、小型超市、文印、银行小型网点等,是否属于《科研建筑设计标准》JGJ91-2019 第3.2.5条规定的“居住生活配套用房”?实验所用材料种类繁多,如何判定是否属于危险化学品?
答:( 1 )《科研建筑设计标准》 JGJ91-2019 第 3.2.5 条规定的 “ 居住生活配套用房 ” 是指住宅、公寓、宿舍、食堂等,咖啡店、简餐、超市、文印、银行网点等小型营业性用房可设置在使用或储存有危险化学品的科研建筑的底部楼层;
( 2 )科研建筑中的实验室日常使用少量甲、乙类气体的储藏间,应满足以下要求:
A 、易燃可燃液体不超过 4L 、易燃气体不超过 2.2m3 ;
B 、存放可燃气体储罐的储藏间,宜设置在建筑的首层靠外墙部位且应采用耐火
极限不低于 3.00h 的不开设门窗洞口的防火隔墙、耐火极限不低于 2.50h 的楼板与建筑的其他部分分隔;开门应直通室外;
( 3 )危险化学品的判定可以参见由国务院安全生产监督管理部门会同国务院工
业和信息化、公安、环境保护、卫生、质量监督检验检疫、交通运输、铁路、民用航空、农业主管部门,根据化学品危险特性的鉴别和分类标准确定、公布的《危险化学品目录》。
1.3.2.9 《建规》图示第5.3.2 条图示3,采用在房间前端设置防火卷帘或防火玻璃墙的方式对中庭进行防火分隔,房间及中庭回廊通过后端走道进行疏散。实际工程中是否可按此执行,特别是商业建筑,可避免中庭设置大量卷帘构造柱?
商业综合体内中庭可否设置经营柜台或者举办活动场所?
公共建筑的中庭底层是否需要设置防火卷帘?如需要,中庭部位是否需要考虑人
员疏散问题?如设置防火卷帘,中庭部位的面积是否需要加入周围防火分区面积?

答:根据《建规》图示,可行。但是中庭应与周围连通空间采用符合《建规》第 5.3.2-1 款要求的防火分隔措施进行分隔,中庭内不应布置可燃物,中庭空间应以人员交通为主,不应设置其他实际使用功能;当中庭内有未采取上述防火分隔措施的商业、服务使用功能,或回廊的宽度大于 6m 时(确有需要设置的自动扶梯、敞开楼梯平台的宽度可不计入),中庭区域按首层和上、下各层相连通的建筑面积叠加计算后不得大于一个防火分区面积,包含中庭的防火分区应设置安全出口并满足安全疏散要求,当利用相邻防火分区的疏散门进行疏散时,应采用防火墙与相邻防火分区分隔;
当中庭划归底层防火分区并小于一个防火分区面积时,底层可不设置防火卷帘;
如中庭单独设置防火分区(单元)或将底层中庭划归上部某层防火分区时,底层应设置防火卷帘,并应考虑人员的安全疏散。
1.3.2.10 设置在一、二级高层民用建筑内的商店营业厅,当设置自动灭火系统和火灾自动报警系统并采用不燃材料或难燃材料装修时,每个防火分区的最大允许建筑面积不应大于4000m²。实际工程中,其内部装修材料的燃烧性能是否还可以根据《建筑内部装修设计防火规范》(GB50222-2017)的要求降低?
答:《建规》第 5.3.4 条规定了允许营业厅、展览厅防火分区可以扩大的条件,
即设置自动灭火系统、火灾自动报警系统,采用不燃或难燃装修材料。该条件与《建规》第 8 章的规定和《建筑内部装修设计防火规范》 GB 50222 有关降低装修材料燃烧性能的要求无关,即当按本条要求进行设计时,这些场所不仅要设置自动灭火系统和火灾自动报警系统,装修材料要求采用不燃或难燃材料,且不能低于《建筑内部装修设计防火规范》 GB 50222 的要求,而且不能再按照该规范的规定降低材料的燃烧性能。
1.3.2.11 两个相邻防火分区建筑面积均小于1000m2,每个防火分区仅设置一部疏散楼梯,总的疏散宽度满足规范要求,是否可以通过防火墙上的防火门互相借用?
答:相邻防火分区疏散,不考虑两防火分区同时失火,在满足《建规》第 5.5.9
条要求时可以相互借用。
1.3.2.12 中小学校地下汽车库内的接送等待区,消防设计是按汽车库设计还是民用建筑的地下室设计?
答:学生接送等待区,出租车落客区、等候区的消防设计应按民用建筑的地下或
半地下室设计,与其他汽车库停车区采用防火墙和耐火极限不低于 3.0h 的防火卷帘进行分隔,学生地下接送等待区、落客区的疏散人数应按 1.0 人 / ㎡计算;
学生接送等待区,出租车落客区、等候区,其室内任一点至最近安全疏散口的直
线距离不应大于 30.0 m ,当该场所设置自动喷水灭火系统时,室内任一点至最近安全疏散口的直线距离可增加 25 % 。
1.3.2.13 《建规》第8.1.7 条规定,消防控制室宜设在建筑内首层或地下一层,是否可以设置在二层及以上?
答:当消防控制室设置在除首层以外的其他楼层时,宜设置专用安全出口,并距
室外安全出入口不应大于 20m ,且应设有明显标志。
1.3.2.14 根据《饮食建筑设计标准》JGJ64-2017 第4.1.4 条,餐馆建筑的餐厨比与建筑规模有关。商业综合体中设置的餐饮场所,其规模如何确定?是否可以按每间独立经营的店铺(尤其是独立分割销售的店铺)面积分别确定规模计算?
答:商业综合体中设置的餐饮场所根据其建筑面积按《饮食建筑设计标准》确定
餐饮规模。当餐饮区域划分为独立销售、租赁的店铺时,餐厨比可以根据实际单个店铺分别计算。
1.3.2.15 影厅布置在地上商业高层建筑内,为中型电影院,座位数960 个,防火分区面积是否可按《建规》第5.3.4 条规定的商业营业厅的防火分区要求划分?
答:《电影院建筑设计规范》 JGJ58-2008 第 6.1.2 条,当电影院建在综合建筑内时,应形成独立的防火分区,防火分区面积按《建规》第 5.3.1 条表 5.3.1 执行。
1.3.2.16 设置在建筑内非首层(地下或一层以上)的大型汽车4S 店,如其销售大厅停车数量较多,是按汽车库还是商业?是否可仅设机动车升降梯不设汽车疏散坡道?修车部分工位数量大于15 辆的4S 店修车区域能否与4S 店其他功能区域紧密贴邻建造或开设联通的门窗洞口?
答: 4S 店的销售大厅属于商业性质,当展示的汽车数量较少,可参照《汽车库、
修车库、停车场设计防火规范》 GB50067-2014 第 6.0.12 条,采用汽车专用升降机作为汽车疏散出口;修车部分工位数量大于 15 辆时,为 Ⅰ 类修车库,应单独建造。
1.3.2.17 中小学校建筑中设置在地下室或半地下室(地上、地下各一部分)的无观众席的体育馆、风雨操场、报告厅,这样的建筑既非地上建筑,也不完全是地下建筑。其防火分区最大允许面积是否可以放宽为1000m2?当其设置自动灭火系统时可增加1.0 倍,即2000 m2?
答:设置在中小学校建筑内无观众席的体育馆、风雨操场,报告厅应根据《建规》
第 2.1.6 、 2.1.7 条判断是否属于地下室或半地下室;属于地下室或半地下室的,在设置火灾自动报警系统和自动灭火系统时,无观众席的体育馆、风雨操场的防火分区最大允许建筑面积可放宽为2000m2,报告厅的防火分区最大允许建筑面积为1000m2。
1.3.3 安全疏散和避难
1.3.3.1 多层纯餐饮场所、培训机构等建筑是否需要设置封闭楼梯间?
答:纯餐饮场所与商店功能类似,应采用封闭楼梯间;培训机构应根据具体性质、
使用人群分别确定。
1.3.3.2 学校生活楼中,一层为厨房、二层为餐厅、三层以上为宿舍。宿舍部分的楼梯是否需要与底部的餐厅分开?
答:学校生活楼中,三层以上宿舍的疏散楼梯间应独立设置。二层餐厅的疏散楼
梯不应与宿舍楼梯间兼用。
1.3.3.3 高层病房楼及老年人照料场所避难间可否利用消防电梯前室或普通电梯前室?
答:普通电梯的电梯厅没有防火分隔,不具备良好的防烟性能,难以保证避难人
员的安全,不能用于病房楼层的避难间;当普通电梯前室采用了耐火极限不低于 2h 防火隔墙和甲级防火门与其他部位进行了分隔,且符合最小净面积要求时,可以作为避难间;消防电梯的合用前室是人员的疏散通道和消防救援人员的集结地,不能用作病房楼的避难间,疏散楼梯间前室、消防电梯前室可用作老年人照料设施的避难间。
1.3.3.4 小型多层商业建筑,内部两侧联排店铺之间的公共走廊最小宽度根据疏散人数计算疏散宽度小于3.0m,公共走廊宽度是否可以采用计算疏散宽度进行设计?
答:小型多层商业建筑,内部两侧联排店铺之间的公共走廊最小宽度根据《建规》
第 5.5.21 条计算确定,并不得小于 2.2m 。
1.3.3.5 电影院人数如何计算?
答:电影院为有固定座位的场所,其疏散人数可按实际座位数计算,另需考虑影院工作人员和候场人数,每层候场人数应按最大观众厅的固定座位数计算。
1.3.3.6 对于足浴、卡丁车、真人CS、游泳馆、溜冰场、健身房、门诊楼、体育健身场馆(非正式开展比赛的场馆,没有看台观众席,例如瑜伽、羽毛球、射击、乒乓球等)、书吧等规范未明确人员密度的场所,具体疏散人员数量该如何计算?
答:《建规》等规范未明确规定人员密度值的场所,其疏散人数可以根据相应的
专项建筑设计标准规定的人员密度或疏散人数进行取值,也可以根据设计手册、研究报告等合理的资料确定。当专项建筑设计标准未规定相应的人员密度或疏散人数计算方法时,应根据建筑所处位置和地区采用调查和统计的方法确定。
1.3.3.7《建规》第5.5.19 条规定,人员密集的公共场所的疏散门净宽度不应小于1.40m;是不是人员密集的公共场所,例如商业建筑、公共餐厅的所有疏散楼梯间的疏散门与楼梯梯段的净宽均不小于1.40m。
答:本条中 “ 人员密集的公共场所 ” 主要指营业厅、观众厅,礼堂、电影院、剧院和体育场馆的观众厅,公共娱乐场所中出入大厅、舞厅,候机 ( 车、船 ) 厅及医院的门诊大厅等面积较大、同一时间聚集人数较多的场所。本条规定的疏散门为进出上述这些场所的门,包括直接对外的安全出口或通向楼梯间的门。
1.3.3.8 《建规》第5.3.1 表5.3.1 注2:裙房与高层建筑主体之间设置防火墙时,裙房的防火分区可按单、多层建筑的要求确定。此处的防火墙上是否可以开设甲级防火门、窗洞口?是否可以设置防火卷帘?裙房与主体间采用防火墙和甲级防火门进行防火分隔,甲级防火门只作为交通使用且裙房的疏散独立时,裙房疏散楼梯是否可以不设置防烟楼梯间?第5.5.12 条注中注明“当裙房与高层建筑主体之间设置防火墙时,裙房的疏散楼梯可按本规范有关单、多层建筑的要求确定”,此时裙房的防火分区面积、人员疏散距离和每百人宽度指标等可否按单、多层建筑的要求计算?高层公共建筑上下各自独立,功能互不连通,各自独立设置的疏散楼梯形式等是否可根据其各自高度执行相应标准?
一座二级耐火等级的6 层公共建筑,建筑高度为22.8m,一~三层为商店,四至六层为办公,商店部分的疏散楼梯和安全出口与办公部分的疏散楼梯和安全出口各自完全独立设置。一~三层商店的百人最小疏散净宽度可否按不小于0.75m 确定,四层及以上各层办公部分的百人最小疏散净宽度仍按不小于1.0m 确定?
答:裙房与高层建筑主体之间采用防火墙进行防火分隔时,裙房的防火分区和疏
散楼梯形式、疏散宽度及疏散距离可按单、多层建筑的要求确定,但裙房与高层建筑主体之间设置的防火墙上不可设置防火卷帘,可开设少量甲级防火门、窗,以满足必要的功能联系。
在高层公共建筑中,上部高楼层区域的疏散楼梯间与下部楼层区域所用楼梯间完全独立、互不相通,该建筑下部楼层区域的疏散楼梯可以按照其实际服务的楼层数和高度及其功能确定,上部高楼层区域的疏散楼梯仍按照其实际服务的楼层数总高度确定。
6 层公共建筑一 ~ 三层商店部分的疏散楼梯和安全出口与办公部分的疏散楼梯和安全出口各自完全独立设置时,其各自的百人最小疏散净宽度可按照其实际服务的楼层确定。
1.3.3.9 商业建筑前室面积或前室的长度是否有限制?
答:前室面积一般没有限制,前室的疏散门距离楼梯间疏散门长度不应大于 30m 。
1.3.3.10 分别设置前室的剪刀楼梯间作为两个安全出口,首层共用一个扩大前室通至室外,是否可以?
答:公共建筑的剪刀楼梯间作为两个防火分区各自的安全出口时,可不执行《建
规》第 5.5.10 条的有关要求。分别设置的两个前室在首层可以共用一个扩大前室直通室外,但扩大前室直通室外的出口不应少于两个(宜不同朝向),楼梯间疏散门至首层外门不应超过 30m ,扩大前室内不应设置其他功能和布置可燃物,与其他区域应采取防火隔墙和乙级防火门分隔。
1.3.3.11 商业服务网点内如设置喷淋,最远疏散距离能否增加25%?
答:商业服务网点内全部设置自动喷水灭火系统时,其安全疏散距离可按《建规》
表 5.5.17 的规定增加 25% 。
1.3.3.12 歌舞娱乐放映游艺场所中的大空间部位的疏散距离如何界定?
答:歌舞娱乐放映游艺场所中的大空间应具有至少 2 个不同方向的疏散门,当疏散门均为安全出口时,该房间内任一点至安全出口的直线距离不应大于 18m ,且在设置自动喷水灭火系统后该距离不得增加。
1.3.3.13 建筑首层外门直接与室外连通的开口空间的深度和宽度有没有限定的标准?
答:此开口空间一般称作内走廊,直接通向室外(无外门),两侧采用耐火极限
不低于 2.0h 防火隔墙,且该隔墙除楼梯间及前室出口外不应设置其他门窗洞口(包含排烟口和未设置防火阀且距地小于 2.5m 的排风口) , 确有困难时,可以设置少量的房间疏散门,但应采用乙级防火门;
此处建筑首层外门距室外地面的疏散距离不应超过 30m ,内走廊的宽度应大于楼
梯梯段的净宽且不得小于 1.4m ,当有多个楼梯通过同一内走廊直通室外时,走廊的宽度应按每个楼梯梯段净宽叠加计算。
1.3.3.14 房间嵌套房间是否可行?房间内嵌套房间内隔墙防火性能如何考虑?安全疏散如何考虑?
答:房间的疏散门是房间直通疏散走道或安全出口的门,不同房间可以设置连通
门,但疏散门必须直通疏散走道或安全出口。国家现行相关标准未限制采用套房和多级房间嵌套的布置方式,但这种方式一旦外面的房间发生火情,里面房间内的人员将不得不穿过着火区进行疏散,因而会降低里面房间内人员疏散的安全性,在实际设计中要尽量避免(特别是多级嵌套)。当设计不可避免时,要将这几个房间视为一个房间,并根据该房间的建筑面积确定其疏散门的位置和数量,使室内任一点至最近疏散门的疏散距离均符合《建规》第 5.5.17 条第 3 款的规定。在计算疏散距离时不应将里面房间通往外间的门作为疏散门,嵌套房间内隔墙的防火性能应不低于房间隔墙的要求。
1.3.3.15 根据《建规》第5.5.24A 图示A 老年人照料设施的避难间可开启外窗为同一朝向,与《建筑防烟排烟系统技术标准》GB51251-2017 第3.2.3 条冲突。是否能参照《上海建筑防排烟系统设计标准》DG/J08-88-2021 第3.2.4 条文说明“由于高层病房楼及养老建筑每层的避难间面积比较小,不同朝向的可开启外窗不易实现;这时可仅按开启窗有效面积不应小于房间面积的3%且不应小于2 ㎡的要求执行。”
答:采用自然通风方式和采用机械加压送风系统的避难层(间)应分别按《建筑
防烟排烟系统技术标准》 GB51251-2017 第 3.2.3 、 3.3.12 条执行,高层病房楼及养老建筑每层使用避难间相对人数较少、避难间面积较小,不同朝向的可开启外窗不易实现,可按开启窗有效面积不应小于房间面积的 3% 且不应小于 2 ㎡的要求执行。
1.3.3.16 高层旅馆直通疏散走道的房间疏散门至最近安全出口的直线距离执行《建规》第5.5.17 条,位于两个安全出口之间和袋形走道两侧或尽端,分别为30m、15m。高层旅馆建筑通常由客房部分的塔楼和餐饮、休闲等功能的裙房组成,在裙房未与塔高层完全分隔的情况下,除第5.5.17-4 款的功能外,裙房其他功能或区域是否按照高层旅馆建筑30m、15m 控制?
答:其他功能区域如单独划分防火分区,该分区的疏散距离可按各自功能的规范要求设计,否则应执行《建规》第 5.5.17 条关于高层旅馆疏散距离要求。
1.3.3.17 多层地上公共建筑,每层两个防火分区,各自有一个独立疏散楼梯,第二安全出口均利用设置在两防火分区交界处的剪刀楼梯(疏散门分别在各自防火分区),是否可行?
答:地下建筑及多层地上公共建筑,设置在两防火分区交界处的剪刀楼梯间(疏
散门分别在各自防火分区内)在满足以下条件时,可以作为各自防火分区的安全出口:
1 、楼梯间应为防烟楼梯间; 2 、梯段之间应设置耐火极限不低于 l.00h 的防火隔墙; 3 、楼梯间的前室应分别设置。
1.3.3.18 《建规》第5.5.3 条,建筑的楼梯间宜通至屋面,现多数的设计单位设计时,多层及裙房楼梯间均未出屋面(特别是有坡屋面设计时),高层有时也不出屋面或者只出一个楼梯间,如何控制高层、多层出屋面楼梯间的数量?
答:民用建筑的疏散楼梯原则上要通至可上人屋面,使每座疏散楼梯在竖向具备
双向疏散条件。除规范有明确规定的,其他建筑的疏散楼梯间可以不通至屋面。
1.3.3.19 餐饮建筑,平面划分为餐饮包间,是否可按包间座位计算疏散人数,其它服务人员如何计算人数?
答:包间可以按座位计算疏散人数,也可以按 2.0 ~ 2.5m2 /人计算疏散人数。服
务人员可按核定用餐人数的 10% 计算。
1.3.3.20 中小学校的风雨操场,室内最远点至最近疏散门或安全出口的直线距离按什么标准控制?
答:中小学校的风雨操场属于开敞大空间,可以按照《建规》第 5.5.17-4 款执行。
1.3.3.21 地下室仅有消防泵房时,消防泵房与楼梯间可以不设防火门吗?
答:除住宅套内的自用楼梯外,地下室的楼梯应采用封闭楼梯间或防烟楼梯间。
仅有消防泵的地下室,根据《消防给水及消火栓系统技术规范》 GB50974-2014 第
5.5.12-3 款消防泵房通向楼梯间的门应为甲级防火门。
1.3.3.22 中小学校、托儿所、幼儿园的普通教室(幼儿园的活动室)、专用教室、教师办公室等有固定座位,是否需按《建规》第5.5.21-5 款以1.1 倍来计算疏散人数?
答:中小学校、托儿所、幼儿园的普通教室(幼儿园的活动室)、专用教室按实
际人数计算,无需 1.1 倍计算;教师办公室应按《办公建筑设计标准》 JGJ/T67-2019 相关要求执行。
1.3.3.23 建筑内的房间、厅、室的疏散门是否可以直接开向疏散楼梯间或前室?如房间、厅、室内有一个疏散楼梯间,该房间的疏散门是否可以直接开向疏散楼梯间或前室?
一个防火分区,同时存在大空间+短走道、小房间+长走道的平面布局和疏散形式,是否可行?
答:从建筑楼层上进入疏散楼梯间的门(封闭楼梯间或防烟楼梯间的前窒)或楼梯间开口部(开敞楼梯间)为该楼层的安全出口。根据《建规》第 6.4.2 、 6.4.3 条的规定,对于公共建筑,除加压送风口、楼梯间的出入口和外窗外,其他开口(包括房间疏散门)不应直接开向封闭疏散楼梯间或防烟楼梯间,应通过疏散走道与疏散楼梯间连接。对于内部无防火分隔的开敞区域(如观众厅、展览厅、营业厅、开放式办公室)当其疏散门用作安全出口时,该疏散门可以直接开向疏散楼梯间;
参考《建规》第 5.5.17 条的图示 7 ,一个防火分区宜按同一种疏散方式疏散,当
大空间 + 短走道区域与小房间 + 长走道区域各自独立分隔时,可以分别采用两种形式(见图)。


1.3.3.36 根据《建规》第5.4.4-5 款,设置在单、多层建筑内的托儿所、幼儿园的儿童用房和儿童游乐厅等儿童活动场所宜设置独立的安全出口和疏散楼梯。该类场所需要设置一个独立安全出口即可还是所有安全出口均需独立?
答:儿童活动场所设置在多层建筑内时,至少设置 1 个独立的安全出口和疏散楼梯。
1.3.3.37 《建规》第5.5.21 条:对于表5.5.21-1 每层的房间疏散门、安全出口、疏散走道和疏散楼梯的每100 人最小疏散净宽度与楼层的如何理解?
答:在《建规》的条文及其条文说明中,凡是采用阿拉伯数字表述的楼层,均为建筑的楼层数量,即建筑的总层数,如 “2 层 ” 代表 2 层的建筑或该建筑有 2 层 ; 凡是采用中文大写数字表述的楼层,均为建筑中的楼层位置,如 “ 二层 ” 代表建筑中的第二层,因此,《建规》第 5.5.21 条表 5.5.21-1 中 “ 建筑层数 ” 一栏规定的是,不同总层数的建筑的百人疏散宽度指标值,即 100 人疏散所需的最小净宽度。
1.3.3.38 《建规》第5.5.17 条第2 款中“可将直通室外的门设置在离楼梯间不大于15m处”。这15m 必须是两边设墙的走道吗?疏散走道就必须两侧设墙吗(特别是大空间的情况下)?
答:《建规》第 5.5.17 条第 2 款中是针对未采用扩大的封闭楼梯间或防烟楼梯间前室的情形,将疏散楼梯设置在距离直通室外安全门不大于 15 米处时,可以采用疏散走道或门厅的方式。门厅可以设置不影响疏散的如咨询、收费、休息等功能。
1.3.3.39 人员密集场所的防火分区可以借用通向相邻防火分区的甲级防火门进行疏散吗?
答:当该人员密集场所规范有明确规定需要与其他功能区域分隔的空间不能借用
外,其它可借用。
1.3.3.40 仅供地下汽车库疏散的楼梯,楼梯间在首层直接对外的外门最小净宽应该是0.9m 还是1.1m?
答:仅供地下汽车库疏散的楼梯,楼梯间在首层直接对外的外门最小净宽 ≥0.9 m 。
1.3.4 建筑构造
1.3.4.1 部分建筑如商业综合体会设计大量的玻璃中庭顶,中庭顶的材料应满足什么要求?中庭顶与上部建筑物之间的距离有没有要求?
答:中庭的顶部耐火极限视设计的具体情况,按规范对上人屋面或不上人屋面的
要求执行。中庭屋面采用不燃材料的非采光屋面,在没有开设洞口时,中庭屋面与同一建筑的高跨墙身之间没有间距要求。如中庭采用采光屋面,则应该满足以下要求:
1 )中庭采光屋面的耐火极限不低于 1.0h 时,与同一建筑的其他部位或构件的间
距没有要求;
2 )若中庭顶部采光屋面的耐火极限小于 1.0h 时,中庭采光屋面与同一建筑高跨
墙身外墙上的门窗洞口的直线距离不应小于 6.0m 。如中庭采光屋面相邻的高跨外墙采用乙级防火门窗时,采光屋面与高跨外墙的间距没有要求。
3 )建筑屋面、地下室顶板上开设的进排气口、露天采光口、通风口等洞口与同
一建筑高跨墙身的门窗洞口之间的距离不应小于 6.0m ,如其洞口相邻高跨外墙采用乙级防火门窗时,或者通风、排气口已设置防火阀时,采光屋面与建筑外墙的间距没有要求。
1.3.4.2 民用建筑走道两侧设置的玻璃隔断、为了通风在疏散走道隔墙上设置的窗户等耐火极限是否有要求?
答:《建规》中对疏散走道两侧门窗的耐火极限没有明确规定。当疏散走道两侧
采用玻璃隔断或窗户时(包括全部和局部),玻璃隔断或窗户(包括同一墙面上的普通门的面积)的面积对应走道房间墙面投影面积大于 50% 时,应满足耐火极限 1.0h 的要求。《建规》第 2.1.10 条关于耐火极限的名词解释中已经明确,此时间为从受到火的作用起,至失去承载能力、完整性或隔热性时止,三种情况均应包括。
1.3.4.3 有专业功能性的建筑(如:银行、金融类)因其自身安全需要,在现金区与非现金区之间均存在多扇门禁,且出于安保要求平时均处于锁闭状态,在发生火灾时从内部并不易于开启。另银行网点利用自助取款区域作为疏散门,出于安保要求,在与大堂连接部位设置卷帘门。对于此类问题如何解决?
答:上述特殊建筑设置门禁部位主要疏散人员为内部员工,比较熟悉周围环境,
且易于从内部打开,门禁系统应在火灾时能够全部自动释放;
设于首层且直接通向室外地面的银行网点大堂与自助取款区域设置卷帘时,大堂
疏散应独立,不应利用自助取款区域作为疏散门。
1.3.4.4 下沉式广场是否可以认为是安全区域?
答:下沉式广场满足《建规》第 6.4.12 条的要求时,可视为室外安全区域。
1.3.4.5 直接开向室外的设备机房门(如屋顶消防电梯机房及风机房的门)是否可采用普通门?
答:直接开向室外或室外平台的疏散门(除相关规范有特殊要求外),可以采用
普通门。
1.3.4.6 单樘防火卷帘的宽度和高度是否有限制?中庭可否采用异形防火卷帘或折叠提升防火卷帘?当防火卷帘的耐火极限满足要求的情况下,是否可以使用单联单轨防火卷帘?
答:《建规》对于单樘防火卷帘的宽度和高度,没有明确的限制,除中庭部分外,
宽度一般不应超过 9m ,规格及耐火性能等应有出厂合格证和符合市场准入制度要求的法定检测机构出具的有效证明文件,如质量认证证书及型式检验报告等。
《建规》第 6.5.3 条规定,防火分隔部位设置的防火卷帘,应具有火灾时靠自重
自动关闭的功能。侧向封闭式、水平封闭式防火卷帘不具备自重自动关闭功能,异形或折叠提升式防火卷帘也未有效解决自重自动关闭的功能,不符合《建规》的规定。因此,在建筑内的防火分隔部位不应采用侧向式、水平封闭式和折叠提升式防火卷帘,以确保防火分隔的可靠性和有效性。
防火卷帘的耐火性能包括耐火完整性和耐火隔热性,当采用单联单轨防火卷帘仅
满足耐火性能的耐火完整性时,应设置自动喷水灭火系统保护。
1.3.4.7 两栋建筑各自疏散宽度都不足,中间用连廊相连(连廊无可燃物,也无疏散楼梯),通向连廊的门作为安全出口互相借用,符合要求吗?建筑之间的连廊是否可以封闭?
答:符合《建规》第 6.6.4 条规定满足安全出口条件的天桥、连廊,该出口可作为安全出口。
当通过通向天桥、连廊的出口向同一座建筑的不同防火分区疏散,且需计入安全
出口个数或疏散宽度时,火灾时有不同防火分区需同时疏散的情况,应满足《建规》第 5.5.9 条各项要求。
仅供人员通行、无可燃物的连廊可封闭,但应设置防止火灾在建筑建蔓延的措施。
1.3.4.8 敞开楼梯间与外廊相连,楼梯间中间平台处无外窗,利用走廊外窗作为自然通风窗,是否可以?
答:如走廊为开敞走廊,可利用走廊自然通风;如走廊为封闭走廊,走廊在楼梯
间宽度范围的可开启外窗可作为楼梯间的自然通风窗。
1.3.4.9 地下室的封闭楼梯间在首层的疏散门可以开向首层楼梯间扩大前室吗?(如下图)

答:可以(除规范明确要求地上地下楼梯间需独立设置情况外)。
1.3.4.10 学校建筑敞开走廊上、下层之间要考虑1.2m 的窗槛墙高度吗?
答:不需要。
1.3.4.11 2 层公共建筑,敞开楼梯间,总建筑面积不超过一个防火分区,中庭处也相连通,建筑外墙上、下层开口之间需要设置1.2m 窗槛墙,那么其余部位是否需要设置1.2m 窗槛墙?
答:公共建筑除建筑外窗、洞口所连通的室内空间为上下层直接连通的部位外
(如:靠外墙的楼梯间、靠外墙的中庭、回廊等),其余应按相关规范要求采取防火分隔措施。
1.3.4.12 建筑一层外窗的顶部梁高900mm,建筑二层向外悬挑1500mm 宽,挑出部分的外墙上设低窗(窗台高100mm),此种构造能否满足上下层窗槛墙高度1.2m 以上的要求?上下层未封闭式阳台的窗槛墙高度不足1.2m,是否可以把阳台看作是外悬挑檐?
答:设置水平向外悬挑宽度不小于 1.0m ,长度不小于开口宽度的防火挑檐、阳
台可视作满足《建规》第 6.2.5 条的要求。
1.3.4.13 凸出于建筑室外的消防电梯井道和顶部能用防火玻璃吗?
答:消防电梯井道和顶部应采用防火隔墙和楼板,不得采用防火玻璃。
1.3.4.14 对于非住宅类的建筑,是否允许有普通电梯的门、管道井门开向一层的防烟楼梯间扩大前室或扩大封闭楼梯间?
答:可以。电梯层门应满足《建规》第 6.2.9-5 款相关规定,管道井门应不低于乙级防火门。
1.3.4.15 楼层上的配电小间的防火门采用(甲、乙、丙)哪级?如建筑内每层或分层设置的强电间、弱电间,是否需按《建规》第6.2.7 条设置防火隔墙和甲级防火门?变配电室如何界定?
答:建筑内每层或分层设置的强电间、弱电间、配电小间(一般设有配电柜等设
备)开向建筑内的门,应按《建规》第 6.2.7 条其它设备房的要求设置乙级防火门(除规范另有规定外,如高度超过 250m 建筑的电缆井和管道井门等应采用甲级防火门)。
变配电室一般是指有变压器的变电所或建筑内的总配电房。配电小间是指楼层的配电室,通常会与电缆竖井合用。
1.3.4.16 穿过建筑物或进入建筑物内院的消防车道两侧是否应采用防火墙?防火墙上是否不宜开设门洞,当开门洞时是否应为甲级防火门或特级防火卷帘?
答:穿过建筑物或进入建筑物内院的消防车道两侧的墙体未要求设置防火墙;但
消防车道两侧外墙不应开设影响消防车通行的人员疏散门,上部应设置防止高空坠物影响消防救援安全的措施。
1.3.4.17 为商场服务的附属库房,防火分区面积、防火分隔、疏散计算应如何确定?
答:为商场服务的附属库房,首先应与商业规模匹配,应采用耐火极限不低于 2.0h 的防火隔墙分隔,如隔墙上需要开设相互连通的门时,应采用乙级防火门。附属库房不得储存甲、乙类物品。
超大城市综合体商业营业厅每层的附属库房应采用耐火极限不低于 3.0h 的防火隔墙和甲级防火门与其他部位进行分隔。
同一防火分区面积超过 500 ㎡的地上附属库房和超过 200 ㎡的地下附属库房应至少设置一个独立的安全出口;同一防火分区面积不超过 500 ㎡的地上附属库房和不超过 200 ㎡的地下附属库房可不设置独立的安全出口,可利用商业营业厅疏散。计算商业营业厅的防火分区面积时,应包括附属库房的建筑面积。
同一防火分区内对于采用了严格防火分隔开的仓储、设备房、工具间、卫生间、
办公等,可不计入营业厅的建筑面积,但应根据实际情况核定人数和宽度。
电商网店内附设临时仓储功能的区域,仓储区域与电子商务区域应采用耐火极限
不低于 2.0h 的不燃烧体隔墙和乙级防火门分隔。
1.3.4.18 屋面网架的耐火极限,是按照防火规范中的“梁”还是“屋顶承重构件”确定?
答:屋面网架按“屋顶承重构件”的耐火极限要求确定。
1.3.4.19 单层钢结构厂房的屋面檩条的耐火极限,按防火规范中的“梁”还是“屋顶承重构件”来确定?
答:根据《建筑钢结构防火技术规范》 GB51249-2017 第 3.1.1 条,柱间支撑的设计耐火极限应与柱相同,楼盖支撑的设计耐火极限应与梁相同,屋盖支撑和系杆的设计耐火极限应与屋顶承重构件相同。
1.3.4.20 用于分隔地下总建筑面积大于20000 ㎡商业的下沉式广场,当采用耐火完整性不小于1h 的防火玻璃窗或防火卷帘等防止火灾水平蔓延的措施时,分隔后不同区域通向下沉式广场的开口最近边缘之间的水平距离是否不限?
答:为有效阻止火灾蔓延,分隔后不大于 20000 ㎡的不同区域通向下沉式广场的
开口最近边缘的水平间距不应小于 13m ,该 13m 必须采用满足耐火极限大于 1h 的实体外墙进行分隔;不大于 20000 ㎡的同一区域中不同防火分区外墙上开口之间的最小水平间距,按照《建规》第 6.1.3 、 6.1.4 条的有关规定确定。
1.3.4.21 《汽车库、修车库、停车场设计防火规范》第4.1.4-2款,汽车库与托儿所、幼儿园,老年人建筑,中小学校的教学楼,病房楼等的安全出口和疏散楼梯应分别独立设置。该处的独立设置,是否为地下室的楼梯完全分开?与地上部分共用楼梯间,在首层采用耐火极限不低于2.0h的防火隔墙和乙级防火门将地下或半地下部分与地上部分的连通部位完全分隔的做法是否可行?
答:当地下汽车库的楼梯与地上共用楼梯间时,除满足《建规》第 6.4.4-3 款要求外,地下楼梯与地上楼梯在首层不应连通并应分别直通室外。
1.3.4.22 疏散楼梯间首层直通室外的门是否需满足《建规》第6.4.1-1款的规定?地下建筑的疏散楼梯间与地上建筑不共用,其首层部分的防火分区是否归属于地下建筑?此部分门窗洞口与其他门窗洞口的水平距离是否按《建规》第6.1.3、6.1.4条?
答:疏散楼梯间首层直通室外的门属于楼梯间窗口,应满足《建规》第 6.4.1-1 款的规定,与其他门窗洞口的水平距离不应小于 1.0m ,独立设置的地下楼梯间其首层部分归属于地下建筑,外墙上的门、窗、洞口与地上建筑外墙上的门、窗、洞口的水平距离应满足《建规》第 6.1.3 、 6.1.4 条的规定。
1.3.4.23 地上、地下部分共用楼梯间,首层地上与地下的梯段交界部位,外墙上、下层开口之间实体墙高度是否按1.2m控制?
答:地上与地下楼梯为两个不同防火分区的楼梯,外墙上、下层开口之间实体
墙高度按 1.2m 控制。
1.3.4.24 公共建筑中的厨房,在不使用燃气、没有明火的情况下是否也要使用耐火极限2.0h的防火隔墙和乙级防火门与其他部位隔开?
答:厨房有明火的加工区、产生较多油烟的热(电)加工区均应采用耐火极限不低于 2.0h 的防火隔墙与其他部位分隔,隔墙上的门、窗应采用乙级防火门、窗。对于使用电气加工食品且无油烟排放需求的快餐、咖啡等小型餐饮设施的烹饪或热加工部位,可以不与相邻其他部位进行防火分隔。
1.3.4.25 自动扶梯四周采用防火卷帘分隔时,考虑发生火灾时自动扶梯上人员的疏散,是否应在自动扶梯到达楼层处设置甲级防火门?
答:建筑内自动扶梯等上下楼层的连通开口,其火灾危险性与中庭类似,一般
只在自动扶梯的出入口部位设置防火卷帘,而在其他部位设置防火隔墙,在每层设置防火卷帘的附近应设置逃生门(甲级防火门),门的净宽度不应小于 0.8m ,保证扶梯上未及时疏散的人员及时逃生。
1.3.4.26 《建筑高度大于250m民用建筑防火设计加强性技术要求(试行)》第八条3.在避难区对应位置的外墙处不应设置幕墙。对于立面采用幕墙的建筑,为了保持建筑的整体效果,避难区对应位置的幕墙内侧增加一道实体墙是否可以?
答:可以。
1.3.4.27 《建规》第6.4.5 条:室外疏散楼梯梯段和平台均应采用不燃材料制作。平台的耐火极限不应低于1.0h,梯段的耐火极限不应低于0.25h。此条中未提及梁柱耐火极限,该如何确定?与室外疏散楼梯相邻的外墙耐火极限又该如何确定?
答:室外疏散楼梯的梁、柱和相邻的外墙的耐火极限均不应低于 1.0h 。
1.3.4.28 面临下沉式广场的地下建筑房间,疏散出口均开向下沉广场,且下沉式广场满足疏散要求,此类房间的内部装修材料燃烧等级是否可按地上建筑执行?
答:当下沉式广场周边的地下建筑房间可按地上建筑满足自然排烟要求时,内
部装修材料燃烧等级可按地上建筑执行。
1.3.4.29 不超过4层的商业楼梯间首层通过门厅直通室外,门厅两侧均设置防火卷帘是否可以?根据《银行营业场所安全防范要求》GA38-2021 第4.3.2.14条要求,供客户进出的出入口门体采用其他材质达不到门体强度要求的,应加装卷帘门,门体上加装防盗锁。除此以外,博物馆、文化馆等有安防要求的场所也对出入口有加装卷帘门要求。与《建规》第6.4.11条“民用建筑和厂房的疏散门,应采用向疏散方向开启的平开门,不应采用推拉门、卷帘门、吊门、转门和折叠门”有冲突,该情况如何解决?
答:商业楼梯间首层通过门厅直通室外,此门厅应为扩大楼梯间或扩大前室,
按《建规》第 6.4.2-4 款,应采用乙级防火门与其它走道和房间分隔,不能采用防火卷帘。
上述因安防管理使用的卷帘门,正常营业时为开启状态,下班无人时关闭,所以此类卷帘门的设置与规范不矛盾。
1.3.4.30 防火分区内的病房、产房、手术部、精密贵重医疗设备用房等,均应采用耐火极限不低于2.00h的不燃烧体与其他部位分隔开,对隔墙上的门窗耐火极限有无要求?
答:《建规》第 6.2.2 条已经明确,隔墙上的门应采用乙级防火门,窗应采用乙级防火窗。
1.3.4.31 医疗建筑中有些房间因洁净要求而设置的推拉门是否可以作为疏散门?
答:手术部、 ICU 、 NICU 、 CCU 等有洁净需求而设置的弹簧门、自动启闭门可以作为疏散门,失火时门禁需自动失效,且可手动开启;手术室自动感应门停电时
手动开启,仍为推拉门,故推拉门可以作为疏散门。
1.3.4.32 《建规》第6.5.1条:防火门的设置应符合下列规定:3.除管井检修门和住宅的户门外,防火门应具有自行关闭功能。双扇防火门应具有按顺序自行关闭的功能。问:大小扇双扇防火门,小扇门闭门器不好实施该做如何要求?
答:小扇门最小尺寸建议大于 450mm ,一般闭门器均可以安装。
1.3.4.33 电梯层门满足《建规》第6.2.9-5款的要求时,是否可认为该门满足乙级防火门的要求?
答:不可以,在仓库内设置垂直运输物品的提升设施会破坏建筑竖向防火分隔
的完整性,可能导致火灾蔓延至其他楼层。在设计时,要尽量将这类提升设施设置在仓库外,并在楼层与提升设施连通处采取设置甲级或乙级防火门、防火卷帘等防火分隔措施。
1.3.4.34 如果楼梯间疏散门处于完全开启状态时不伸入楼梯平台转弯半径,但开启到90°时会伸入楼梯平台转弯半径,影响到楼梯平台的有效宽度,可否采用这种开启角度超过90 度的门?
答:从规范条文的表述和理解:当完全开启时,不减少楼梯平台的有效宽度的
开启角度超过 90° 的门,可以使用,当疏散门为防火门时,应符合《建规》第 6.5.1 条的规定。
1.3.4.35 当消防立管或消火栓、灭火器位于楼梯间,但是在楼梯疏散路径的半圆范围之外时,是否算满足要求,不影响疏散?
答:不减少楼梯平台的有效宽度(半圆范围)的消防立管或消火栓、灭火器、
设备管井可以设置在楼梯间内。
1.3.4.36 仅考虑疏散,民用建筑(如办公楼)内走道的隔墙耐火极限不足1.0h,如按大空间疏散满足要求,是否可以?
答:满足规范要求的大空间内的墙体可以不考虑耐火完整性。
1.3.4.37 消防电梯前室尺寸2.4mx2.4m,在这个范围内可不可以有消火栓立管?满足进深尺寸的位置是否一定要正对消防电梯前室,在前室较大的情况下,是否可以稍微错开一点区域,如图红线区域不满足,绿线区域满足,是否可以认定为满足规范?

答:消防电梯前室的最小尺寸( 2.4mx2.4m )要求一般是指电梯门正对位置,图
示绿线区域不符合要求。消防电梯前室 2.4X2.4m 范围内不可有消火栓及立管。
1.3.4.38 是否可以在室外疏散楼梯首层梯段下方设置疏散门?
答:室外疏散楼梯首层梯段下方可以设置用于疏散的乙级防火门。

1.3.4.39 有时为了建筑造型的需要,要在建筑的室外走道的临空面做一些表皮化的立面装饰。那么,这个只起到装饰性作用的围护部分,需要控制在多少比例才能不影响“室外走道”,这个如何界定?
答:走道外墙敞开面积大于该层走道外墙面积的 25% ,敞开区域均匀布置且其长
度不小于室外走道长度的 50% ,即可视为室外走道。围护的装饰物不得采用可燃材料。
1.3.4.40 按中国建筑科学研究院有限公司“关于《建筑内部装修设计防火规范》
(GB50222-2017)有关条款的复函”(2018 年11 月9 日),安装了外部人员可以观察内部情况且能够击破的窗户,可不认定为无窗房间。如房间设置了大面积的玻璃门(如办公场所、商业店铺等),是否可以定性为有窗房间?
答:可按复函执行。房间内如果设置了大面积的玻璃门(窗),外部人员可以通
过该门(窗)观察到房间内部情况时,该房间可不被认定为无窗房间。
1.3.4.41 当地下室楼梯通过地上楼梯进行疏散,仅在首层采用防火隔墙和防火门进行分隔时,地上楼梯间和地下楼梯间属于共用楼梯间的形式,是否可以仅在地上楼梯间的最高处设置1 ㎡固定窗?
答:位于建筑中部的核心筒楼梯的地下部分如与地上楼梯属于共用楼梯间形式
时,可仅在地上楼梯间的最高处设置 1 ㎡固定窗。靠外墙的楼梯地下部分应在其最高处设 1 ㎡固定窗。
1.3.4.42 《建筑防烟排烟系统技术标准》GB51251-2017 第3.2.1 条的规定“采用自然通风方式的封闭楼梯间、防烟楼梯间,应在楼梯间的外墙上每5 层内设置总面积不小于2.0m2 的可开启外窗或开口,且布置间隔不大于3 层。”是不是指楼梯间每五层需要有两层设置可开启外窗或开口即可以,还是指每四层?同时该层数指的是否是该建筑的自然层数?如某些建筑层高很高,四层建筑高度已经接近24.0m,是否在其顶层最高部位设置面积不小于2.0m2 的可开启外窗或开口,即可符合规范要求?
答:每四层设可开启外窗为间隔三层。四层建筑可在其顶层最高部位设置面积不小于 2.0m2 的可开启外窗或开口。楼梯多跑时层数宜按平台层数考虑。
1.3.5 灭火救援设施
1.3.5.1 可不设消防车登高操作场地的多层建筑的雨棚进深是否不限?
答:多层建筑雨棚进深可以不限。
1.3.5.2 消防车登高操作场地是否必须设置在楼梯的立面侧?消防车登高操作场地在楼梯对应立面,如下图所示在底层设置通道是否符合要求?

答:消防车登高操作场地未要求一定设置在靠近楼梯间一侧,但直通疏散楼梯的
通道入口应该直观、明显;图示消防车登高操作场地设置方式可行。
1.3.5.3 受场地限制,消防车道距离建筑外墙能否小于5m?不作为消防车登高操作场地的消防车道,距离建筑外墙不应大于多少?
答:受场地限制时,消防车道距离建筑外墙距离可适当减小,但不应影响消防救
援作业;
消防车道距离建筑外墙的最大距离,不应大于 30m ,且消防车道与建筑外墙之间
不应设置妨碍消防车登高操作的树木、架空管线等障碍物。
1.3.5.4 布置消防车登高操作场地时,L、U 字形高层建筑(两端伸出段比较长)如何确定其长边长度?
答:一般 L 型高层建筑取较长边长度, U 型高层建筑取两个较长边之和。
1.3.5.5 实际工程中普通消防车、大型消防车和重型消防车应如何选用?消防车的场地承载力应如何取值?
答:多层建筑及建筑高度不超过 50m 的建筑可以考虑普通消防车;建筑高度超
过 50m 的建筑,应考虑大型消防车辆灭火救援作业,一般要求地面能承受 40T 的消防车荷载;建筑高度超过 100m 的建筑,应考虑重型消防车,一般要求地面能承受 60T 的消防车荷载;建筑高度大于 250m 的建筑,应满足《建筑高度大于 250 米民用建筑防火设计加强性技术要求(试行)》第十条,消防车道的路面、救援操作场地,消防车道和救援操作场地下面的结构、管道和暗沟等,应能承受不小于 70T 的重型消防车驻停和支腿工作时的压力。考虑救援出车的随机性,尤其是未来可能配置更大吨位和救援能力的消防车,消防车道和救援操作场的承载力要求,宜以消防车可能作用在地面的最大轮压为准。设计应充分参考当地消防救援机构车辆配备情况。
1.3.5.6 建筑已设置满足一个长边长度设置消防车登高操作场地,但由于建筑体量较大,部分防火分区设置的消防救援窗附近无消防车登高操作场地,是否仍然需要设置消防车登高操作场地或消防救援窗?对于多层建筑及某些建筑周边不存在消防车道时该如何设置消防救援窗?对于设置救援窗的房间有何具体要求?
答:消防车登高救援仅是灭火救援的方式之一,还有其他的消防灭火救援方式,
未来也可能发展新的灭火技术。因此,即使不与消防车登高操作场地相对应的防火分区,以及不需要设置消防车登高操作场地的建筑,均应按要求设置消防救援窗;
消防救援窗设置按《建规》第 7.2.5 条要求,每个防火分区不少于 2 个,间距不
宜大于 20m 设置;
设有消防车登高操作场地或消防车道时,消防救援窗应与消防车登高操作场地或
消防车道对应。消防救援窗宜设置在楼层公共走道等公共区域或其他大空间区域的外墙部位。
1.3.5.7 1)在两栋高层建筑之间设置封闭连廊,连廊距地面超过24m,设有独立疏散楼梯,是否需要针对连廊设置消防车登高操作场地?
2)现有2 栋不超过250m 的超高层公共建筑,在顶部3 层,2 栋建筑连在一起,
功能为办公和公寓。消防车登高操作场地的长度是按照标准层的一个长边或周长的1/4 计算,还是按照顶部3 层的一个长边或者周长的1/4 计算?消防登高操作场地的长度是按照L1+L2 还是按照L3 计算?

答: 1 )连廊高度大于 24m 时,应兼顾连廊并结合建筑造型合理布置救援场地;
连廊仅作通行无其它使用功能时,可不设置消防车登高操作场地。
2 )顶部连接部位功能为办公和公寓时,如连接部位的板底距地面高度 ≤100m ,应按照顶部三层的一个长边或周长的 1/4 设置消防登高操作场地,其长度应按 L3 计算;
如连接部位的板底距地面高度> 100m ,则消防登高操作场地可按 2 栋超高层建筑分别设置。
1.3.5.8 消防车登高操作场地对应范围内仅设一处直通楼梯间的入口是否满足要求,还是必须设两个入口?消防车登高操作场地对应范围内是否要求设置通往消防电梯的入口?
答:消防车登高操作场地对应范围内应至少设一个直通室外的楼梯或直通楼梯间
的入口;为方便消防救援,在消防车登高操作场地对应的范围内应设置直通消防电梯的入口。
1.3.5.9 商业综合体建筑,往往立面设计时采用大量的石材或装饰板等非透明幕墙,并将灭火救援窗设置在实体幕墙后,此种做法是否允许?
答:允许,灭火救援窗应在外侧设置明显标识并易于破拆或便于从外侧开启。
1.3.5.10 金库等有特殊要求的建筑是否可不设消防救援窗?平面体量较大的建筑,部分防火分区未能与消防车登高操作场地相对应时,消防救援窗如何设置?
答: 1 )有特殊要求的金库可不设消防救援窗;
2 )平面体量较大的建筑,每个防火分区应设置不少于 2 个灭火救援窗;如条件限制,不靠外墙的防火分区,至少应设置两个通向设有消防救援口的相邻防火分区的走道、公共区域或大空间区域的连通口(此连通口不得采用防火卷帘)。
1.3.5.11 当地下室自身不需要设置消防电梯时,上部建筑有多部消防电梯,是否均需停靠至地下每层?当建筑内的电梯分区设置时,低区的消防电梯是否可以不上至高区?(高区已单独设置消防电梯)
答:地上部分设有消防电梯的建筑,该消防电梯应直接延伸至地下楼层且每层停靠。设有多部消防电梯的上部建筑,对应的地下建筑每层面积较小且只有一个防火分区时,应至少保证一部消防电梯在地下每层停靠。
对于超高层建筑,确因施工难度及结构整体安全等原因导致基坑难以下挖,而无法保证同一部消防电梯在建筑的地下各层均可停靠时,应满足下列要求:
(一)尽量使该消防电梯在可到达的地下楼层层层停靠;
(二)应针对建筑地下部分单独增设消防电梯,并使该消防电梯能在地下各层层层停靠,针对建筑地下部分单独增设的消防电梯可仅到达地上一层;
(三)每部消防电梯首层及能到达的地下各层应设置明显的指示标识;
(四)消防电梯的其他要求应符合《建规》的相关要求;
当建筑内的电梯分区设置,高区单独设有消防电梯时,如低区消防电梯在低区最高层能方便转换至高区消防电梯,并有明显标识,则低区消防电梯可不上至高区,高区消防电梯在低区楼层应层层停靠。
1.3.5.12 基地内(包括民用建筑和工业建筑)是否必须设置至少两个消防出入口?
答:环形消防车道应至少有 2 处与城镇或工厂其他供机动车通行的道路连通,其他情况基地内消防出入口的设置尚无相关规范要求,但通常应考虑建筑群数量、体量、灭火救援难度等因素,消防车道出入口一般不应少于 2 个。
1.3.5.13 汽车坡道设置在消防车登高救援场地范围内,但汽车疏散车道单独设置,如图所示,是否可行?

答:当汽车库(坡道)出入口设在建筑投影范围内时,建筑外墙与消防登高操作
场地的距离不应小于 6m ,汽车疏散不应影响消防车的通行;汽车库(坡道)出入口两侧应设置长度不小于 6m 的不开设门窗洞口的防火墙,汽车库坡道应设置自动喷水灭火系统,出入口应设置高度不小于 1.0m 的挡烟垂壁。
1.3.5.14 如图1 号、2 号建筑共用部分消防救援场地,其中1 号楼短边加上部分长边满足《建规》第7.2.1 条周长长度1/4 要求,是否可行?

答:消防车登高操作场地长度不小于 1 号楼的一个长边且不小于 1/4 周长时,可
行。
1.3.5.15 《建规》第7.1.8 条文说明中消防车的转弯半径通常为9m~12m,未做详细规定;第7.1.9 条对消防车回车场的尺寸做了详细规定。消防车转弯半径是否需要满足相应的回车场的长度要求?
答:考虑到消防救援的特殊性,消防车的转弯半径一般是指消防车道的转弯内半
径。多层建筑消防车道转弯半径不应小于 9m ;不超过 100m 的高层建筑,消防车道转弯半径不应小于 12m ;超过 100 米的高层建筑,消防车道转弯半径不应小于 18m ,消防车回车场的尺寸应根据建筑规模、高度与消防车道转弯半径匹配。
1.4 车库建筑
1.4.1 汽车库通过住宅主楼对应楼梯间直通室外,该楼梯仅供汽车库使用(主楼下无自行车库等),且属于汽车库的防火分区,楼梯间的门是否需要按《汽车库、修车库、停车场设计防火规范》GB 50067-2014 第6.0.7 条,采用甲级防火门而不是普通楼梯间的乙级防火门?
答:仅供地下汽车库使用、位于住宅地下室内的楼梯间的门,可采用乙级防火门。
1.4.2 小区内住宅的汽车库与配套商业的汽车库是否应完全分开,不得共用坡道、疏散口?
答:为住宅配套的地下汽车库人员疏散可借用住宅部分的疏散楼梯,此时汽车库
内均应为住宅专用的停车位;为商业配套设置的地下汽车库,人员疏散不应借用住宅部分的疏散楼梯进行疏散。为住宅配套和为商业配套设置地下汽车库的汽车疏散出口可以共用。
1.4.3 车辆检测车间是按《建规》进行审查?还是按照《汽车库、修车库、停车场设计防火规范》进行审查?
答:车辆检测车间可按《建规》中厂房的要求执行,当车辆检测车间具有检修功
能时,尚应满足修车库的相关防火要求。
1.4.4 《汽车库、修车库、停车场设计防火规范》GB 50067-2014 中第6.0.6 条“汽车库室内任一点至最近人员安全出口的疏散距离不应大于45m,当设置自动灭火系统时,其距离不应大60m” ,当汽车库内有设备用房等其他功能房间时,是指功能房间门至最近安全出口疏散距离呢,还是指功能房间内的任一点也要满足上述疏散距离要求?
答:指功能房间内的任一点也要满足上述疏散距离要求。
1.4.5 地下建筑中的设备用房(如空调机房、生活泵房、消防泵房等),要求作为独立防火分区划分,并配有独立疏散楼梯。因设备用房在使用期间内部停留人员较少甚至没有人员停留,是否可以与车库共用楼梯作为安全出口?
答:当设备用房防火分区设有独立的疏散楼梯间时,可以与车库共用疏散楼梯间
或借用开向车库防火分区的甲级防火门作为第二安全出口。
1.4.6 《汽车库、修车库、停车场设计防火规范》GB 50067-2014 第6.0.7 条规定汽车库可以借住宅地下楼梯疏散,汽车库防火分区是否可以全部借用住宅楼梯疏散?几个汽车库防火分区能否借用住宅地下室同一部疏散楼梯做安全出口?
答:住宅地下楼梯仅供地下车库使用时,地下汽车库可以全部借用住宅地下楼梯作为安全出口。地下汽车库的每个防火分区应不少于 2 个独立的安全出口, 2 个以上汽车库防火分区借用同一部疏散楼梯做安全出口,只能计作一个防火分区的安全出口。
1.4.7 地下汽车库内的排烟机房、新风机房、强弱电等机房开门方向完全被车位阻挡,但有足够开启的距离,如图是否可行?

答:可以。排烟机房、新风机房、强弱电等机房平时人很少,可利用车之间的空
间进行疏散。
1.4.8 《建规》第5.4.10 条第2 款中“为住宅服务的地上车库应设置独立的疏散楼梯或安全出口” 中的车库是否包括自行车库和电动自行车库?
答:车库包括机动车库和非机动车库(电动自行车库)。
1.4.9 根据《汽车库、修车库、停车场设计防火规范》GB 50067-2014 第4.2.1 条强制性条文规定,停车场与民用建筑之间的防火间距必须满足表4.2.1 中之距离要求。该规范中的停车场是否包括住宅小区内部、厂区、企事业单位内部的停车位。住宅小区内部停车位及厂区单位办公区等的内部停车位是否也要遵循该规范中相应的防火距离要求?
答:厂区、企事业单位内部仅供内部人员使用而非对外开放的少量路边停车位(不超过 6 辆),可不按《汽车库、修车库、停车场设计防火规范》 GB 50067-2014 中关于停车场的防火间距要求执行;住宅小区内部路边停车位应按《汽车库、修车库、停车场设计防火规范》 GB 50067-2014 中关于停车场的防火间距要求执行。
1.4.10 地下汽车库设置消防电梯是否仅按照《汽车库、修车库、停车场设计防火规范》GB 50067-2014 第6.0.4 条执行即可,还需要按照《建规》第7.3.1 条执行吗?
答:地下汽车库设置消防电梯按《汽车库、修车库、停车场设计防火规范》 GB
50067-2014 第 6.0.4 条执行。
1.4.11 汽车库的汽车坡道,如果有防火卷帘将坡道与地下车库隔开,坡道部分有顶盖的部分是否还需要计算防火分区面积?
答:如汽车坡道与地下车库采用防火卷帘隔开,坡道有顶盖部分可以不计入防火
分区。
1.4.12 地下非机动车库,计算人员疏散距离时,是否可以参照机动车库要求,不需要考虑非机动车位对疏散通道的影响?
答:地下非机动车库,车辆之间一般无通行空间,计算人员疏散距离时应根据车
位布置,按疏散路径考虑。
1.4.13 地下设备用房是否可以与电动自行车库合建,划分为一个防火分区?
答:地下设备用房可以与电动自行车库合建,应符合江苏省《电动自行车停放充
电场所消防技术规范》 DB 32/T 3904-2020 第 7.1.1 条规定: “ 电动自行车库应当单独划分防火分区和防烟分区 ” 。
1.4.14 地下室防火分区(如自行车库、机房等)通向地面的坡道可以作为安全出口吗?
答:满足疏散要求的非机动车坡道可作为安全疏散口。
1.4.15 公共建筑的地下非机动车库是否按照电动车非机动库考虑?
答:公共建筑内的地下非机动车库需考虑电动非机动车停车,宜集中布置且不少
于一个防火分区。
1.4.16 附设在汽车库内的且不为汽车库服务的设备用房应单独划分防火分区,但有时确有困难,设备用房面积较小,火灾危险等级较低,是否在满足一定条件下可以与汽车库划为同一防火分区?
答:原则上不能与汽车库设置在同一防火分区内(除仅为本分区服务的设备用房外)。当确有困难,设备用房需与汽车库设于同一防火分区时,设备用房单个房间的面积不大于 50m2 ,总建筑面积不大于 200 ㎡,且采用防火墙和耐火极限不低于 1.50h 的不燃烧性楼板相互隔开或与相邻部位分隔,防火分区面积及疏散距离等可按照汽车库规范相关要求执行。
1.4.17 《建规》第6.5.1 条,经常有人通行的防火门宜采用常开防火门,第一种情况,住宅投影以下地下室一般设计为非机动车库,该非机动车库至楼梯间或前室防火门一般有设置门禁安全管理需求;第二种情况,地下机动车库借用住宅楼梯疏散,该处疏散防火门也有门禁安全管理的需求,以上两种情况是否可以按常闭防火门设计?
答:可以。
江苏省建设工程消防设计审查验收常见技术难点问题解答2.0(二〇二二年十月)
