分类:别墅建筑
内容:实景照片
图片:7张

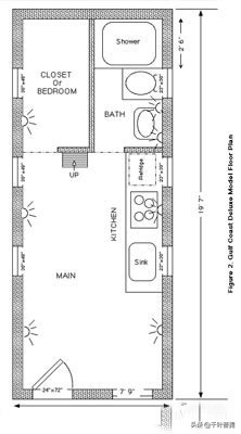
移动的房屋设计,使用起来非常方便。多功能的房子修到了最高标准,经受住严峻的旅行,恶劣气候条件影响,不断使用及很少进行维修。

移动房屋-2

移动房屋-3

移动房屋-4

移动房屋-5

移动房屋-6

移动房屋-7






分类:别墅建筑
内容:实景照片
图片:7张

移动的房屋设计,使用起来非常方便。多功能的房子修到了最高标准,经受住严峻的旅行,恶劣气候条件影响,不断使用及很少进行维修。

移动房屋-2

移动房屋-3

移动房屋-4

移动房屋-5

移动房屋-6

移动房屋-7





