郑州三室两厅132平方现代简约、业主是一对中年夫妇,希望能充分利用区域功能,使得空间鲜明大方,不繁琐。设计师采用现代简约风格,打造简单明快,相得益彰,功能尽显,大方得体。

入户鞋柜
装修小区: 锦艺国际华都
装修户型: 三两室
设计风格: 简约
装修面积: 132平方
工程造价: 10万、

客厅样板间

电视背景墙

沙发背景墙

餐厅装修

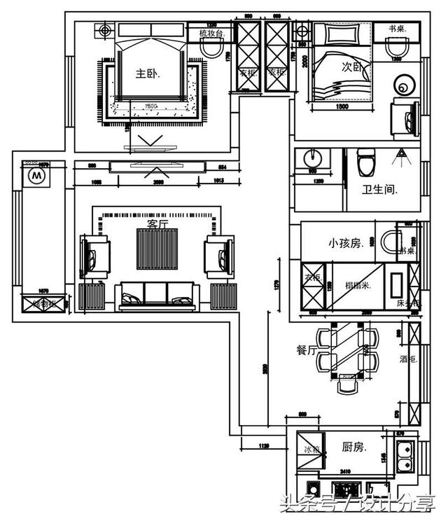
户型布局方案
电脑用户复制网址打开(预约设计师、算报价)
http://www.jsform.com/web/formview/58d4b2aee7aea91513f8a0f5
如果您准备装修,可点开作者头像进入主页,点击右下方“我要装修”,即可直接预约设计师!
装修服务城市:河南(郑州 新乡 安阳 洛阳 南阳 濮阳 鹤壁 焦作 漯河 许昌 驻马店)合肥 济南 江门 福州