有公共走廊的中间套能买吗?
由于高层消防安全需求,楼盘层高超过11层,每层就要有至少两部电梯。
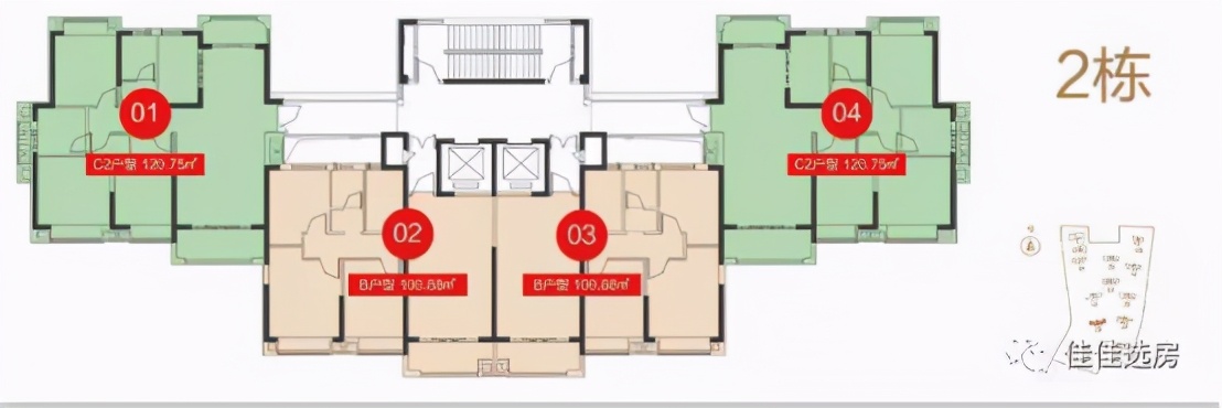
于是一梯两户变成了两梯四户。而从边套走到楼层中间两部电梯之间的公共走廊或连廊就会把中间套的北面给堵上。如图就算是采用了更大的采光通风面积的楼层设计,中间套还是隔着连廊,无法直接通过窗户和阳光及北风接触。

一梯两户是电梯放在边套和中间套中间,而两梯四户是电梯放在楼层/中间套的中间
以前高层楼盘较少,没有很多问题。现在高层楼盘多了,就出现一个大问题,那就是消防连廊或公共走廊把中间套的北面给堵死了!所有的两梯四户或四户以上的中间套都面临这一问题。

怎么办?设计师们想办法,来个通风井/天井吧。于是所有的中间套都靠这个从顶楼通气到底层的井来通风。

就算有了通风井/天井或其他更大通风设计,但是北面被连廊或走廊隔断的中间套还是面临以下问题:
1.通风卫生问题。虽然通风问题可以靠通风井,但是连廊通风井/天井潮湿,万一掉下点垃圾在里面,那么就是个大问题。
风是通过通风井带来了,而且中间套一般所有房间都能开窗,没有了暗间特别是暗卫。但是这风的质量嘛,就一个长长的井,潮湿,年久失修,垃圾积累腐烂,各层厕所味道的外溢。
2.阳光遮挡问题。除了通风,还有阳光照射问题。阳光不照中间套啊,因为中间套的北面公众走廊或消防连廊把北面阳光给抢走了。阴暗成了中间套北面的主旋律。
3.安全性不好。
北面中间套还有一个私密性太差问题。有些中间户窗外就是走廊,不挂窗帘,站在外面就能对室内情况一览无余,让人没有安全感,所以为了保护隐私,一般人都会拉着纱帘,如果是这样,那就会对房间里面采光、通风有影响。

一梯两户北面房间就能直接开窗面对阳光通风,哪怕同样是一层两电梯,两个电梯间没有连廊。

东边套好?西边套好?中间套?
东边套:每层东边的那一户,
西边套:每层西边的那一户,
中间户或中间套:每层中间的那几户
选东边套还是西边套好?
购房者在挑选户型时,大多数人都钟爱东边户,而且一般东边户的价格也会比西边户贵一些。有人说肯定买东边好啊,紫气东来啊,夏天不西晒啊;也有人说肯定西边啊,夕阳无限好,冬天很暖和。
在现在的市场上,边套房大多数100㎡~130㎡左右的大户型,购买人群多是改善性购房;而中间套多是70㎡~90㎡的小户型,属于刚需型产品。如果边套和中间套的户型面积相等,那它们之间的差价就比较小。现在的边套房越大,中间套越小,也越便宜。
当然,反向思考,在一群100㎡~130㎡左右的大户型的边套中,如果有90㎡的主流户型设计的边套,那就是独特的优质房了。
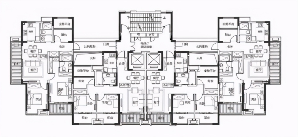
中间套最大的问题是北面有消防连廊或公共走廊的阻挡。这公共走廊只安装栏杆通风性好但是不安全,万一有人不小心摔下去怎么办。但是全部玻璃封闭式那中间套就无法北面通风了,更加有问题。
故大多数中间套朝向和采光不太好,所以大家购买中间套后,一定要在装修上面多费点心思。尤其是主卧、客厅和卫生间,基础采光和通风一定要有保证。如果采光不足,装修时尽量选择明亮的浅色,不要做太复杂的装修。如果是暗卫,那你在通风透气上要多下功夫了,尽量开个小百叶窗用来透光透气。
好在现在的设计一般所有房间含卫生间都能开窗(没有暗卫),因为北面中间套用上了通风井或天井。
那么边套和中间套哪个更好?
一般情况下,西边套>东边套>中间套
买过房子的都知道,中间套一般比边套便宜一点,但既然都选择买这一层了,就不会再为省钱而选择中间套。
边套的采光比中间套好很多。通风效果比中间套也好。
西边套其实比东边套有好多优势。虽然西边套夏天有西晒会很热,但是现在房间都有空调,所以完全不影响。相反,秋冬天西边套的日照时间长,适合晒被子,家里也很暖和,房间也一直保持干燥,整体居住体验都非常好。

东边套早上阳光好一些,俗话说,紫气东来 ,东边套从风水的角度讲是最好的房子,当清晨第一缕阳光照射进屋的时候,一天都是明媚的心情。但是,东边套怕渗水,尤其是台风天比较多的地方,东边套有台风季节漏水的风险。现在的建造工艺相较以前的砖混结构有了很大的改进,所以也不一定就会出现渗水的情况,关键还是看开发商对建造质量和防水工艺的管控,但是,管控不严,偷工减料,下大雨就容易渗水。这个就要看开发商的良心了。
要是东边套西边套两边都不喜欢的话就可以选择中间套,中间套还有个好处是保温好能耗低,但是亮度肯定打折扣的。尤其是那些中间套配暗卫的,家里的气味大,细菌繁殖较快。所以说,中间套可以考虑,但是一定要选择那些带明卫的,暗卫有你好受的。