© Aurelien Chen

© 张广源
新的昆山大戏院位于昆山市中心城区的市民文化广场地块,北侧为城市干道前进中路,东侧为珠江北路。项目是在原昆山大戏院位置进行重建,并与西侧图书馆、南侧游泳健身中心及西南侧体育公园共同组成一个集文化、商业、休闲、展览、展示等功能于一体的城市文化综合体。

© 曾江河

© Aurelien Chen

© Aurelien Chen
空间设计中延续周边街区的规划特点,建筑边界以硬化的方式,形成街区概念。内部则以宛转流动的曲线为设计主题,结合不同部位的楼梯设计,使层层错落的室外平台形成连续贯通空间,与城市道路相接,与周边建筑相连,与整体环境景观相融,呈现一个开放的姿态。

© 曾江河

© 曾江河

© 曾江河
建筑入口的斜轴线保留了原来的场地肌理,将建筑自然地分为了东西两片区,建筑之间以具有流动形态的大屋盖相连,形成面对城市街角的入口广场空间。广场顶棚采用的不锈钢穿孔板、镜面不锈钢蜂窝板、水波纹不锈钢蜂窝板是结合屋顶采光天窗组合排列的。特有的三角形镜面不锈钢顶棚与广场地面铺装相映生辉,白天可以反射静态的地面和动态的行人,夜晚则通过灯光形成绚烂的光影变化。

© 曾江河

© 曾江河

© 张广源
广场9根混凝土柱子饰面也采用镜面和磨砂不锈钢组合,形成错落丰富渐变的空间效果。这样将城市广场和内部广场有机的咬接起来成为游客驻足流连与*会集**活动的场所。
© Aurelien Chen
沿轴线向南,结合建筑形态,设计下沉庭院、中心广场,并结合河边景观,设计滨水平台与大台阶。形成有秩序的多样化的轴线序列空间处理,进而引导人流进入南侧的市民广场。
一层平面图
© 曾江河

© 曾江河
建筑装饰设计与灯光效果结合,充分表达建筑的艺术效果。建筑立面整体为象牙白铝单板幕墙,表达建筑纯净气质和立体层次。
© Aurelien Chen

© Aurelien Chen
剧场休息厅墙体外侧挂不同色度和尺寸的红色铝管,在光线作用下宛若柔婉的水袖,仿佛在曼妙的昆腔下飘动起来。电影院墙体为7种马来漆色块通过参数化从室外红色渐变到室内蓝色调,马来漆外侧用不锈钢丝网装饰,通过灯光手段形成虚幻如织物般效果。
© 曾江河
© 曾江河
© 曾江河

© 曾江河
© 曾江河
© 曾江河
总平面图
一层平面图
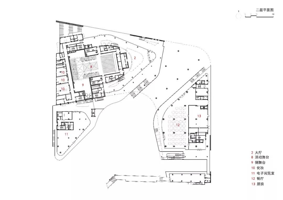
二层平面图
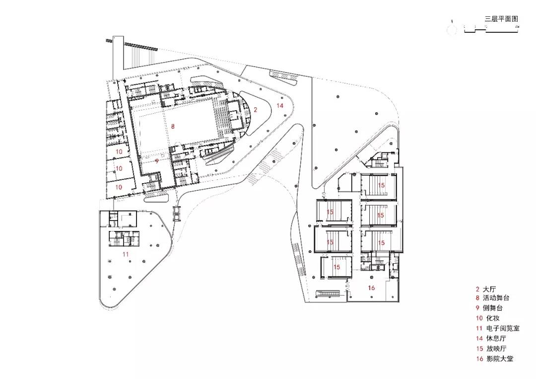
三层平面图
四层平面图
五层平面图
剖面图
立面图
-
建筑师:中国建筑设计研究院本土设计研究中心
-
地址:中国,江苏省,苏州市,昆山市,前进中路321号
-
主创建筑师:崔愷
-
设计团队:刘恒、叶水清、韩文文、王义华、高峰、金跃、崔振辉、白红卫
-
建筑面积:50553.23 平方米
-
项目年份:2017
-
摄影师:张广源、曾江河、Aurelien Chen
-
施工图合作设计单位:中旭建筑设计有限责任公司
-
艺术设计:法国乐华建筑与艺术设计有限公司
-
照明设计:北京优雅士照明设计有限公司
-
景观设计:艺普得(上海)城市设计咨询有限公司
-
舞台工艺:昆克剧院工程咨询(北京)有限公司
-
建筑声学:中国建筑科学研究院
-
幕墙设计:苏州国贸嘉禾建筑工程有限公司