不知道大家还记不记得湘江边的豪宅“印湘江”,它曾以极简、奢华的“酒店式住宅”在购房者心中留下了比较深刻地印象。
而今天要跟大家分享的一个楼盘,同样是出自嘉圣达集团名下,“印”系2号作品——印湘山。
从项目的推广名便可看出,印湘江是以江景为特色,印湘山则主打山居。
那么印湘山这个楼盘到底怎么样呢?赶紧跟着小编来了解一下。
一、深度分析
1、配套★★★☆☆
印湘山,嘉圣达控股旗下“印”系新品,将延续印系酒店式大宅风格。项目总建面约9.5万方,分为东、西两个地块开发,东区规划为8栋洋房,西区规划为5栋小高层。

(项目效果图)
1)交通: 项目距离已开通的地铁5号线板塘冲站约600米,可直接换成2、3、4、6(在建中)号线,日常出行便利。
自驾的话,项目周边分布着南北向主干道万家丽路及东西主干道向湘府东路,前往高桥、星沙以及河西等各大板块都很方便。
2)商业: 就目前而言,距离项目最近的商业有G58智趣Mall,再加上周边小区的底商,可满足业主日常生活所需。
另外,片区已落地10万方的爱琴海购物中心,未来逛街购物也可就近解决。再远一点的话,三公里范围内还有红星商圈、喜盈门范城商圈两大商圈。
3)医院: 周边有长沙永济医院、雨花区长龙医院、雨花康和医院等医疗配套。
4)教育: 项目附近有两块教育用地规划,规划一所小学和一所中学,具体规划落地时间未定,另周边分布着泰禹一小、枫树山南屏锦源小学、雅礼雨花中学等学校,具体学校划分以教育局公示为准。
2、宜居★★★★☆
容积率1.83,绿化率40%,低密度高绿化,居住舒适度较高。从周边环境来看,项目不远处就是湖南省植物园,是平时休闲娱乐的一个好去处。值得一提的是,项目西面和南面均为自然山景,拥有丰富的山景资源。

(图源网络)
从产品来看,项目主打两梯两户纯板楼小高层和一梯两户洋房产品,定位改善,圈层比较纯粹。
3、户型★★★☆☆
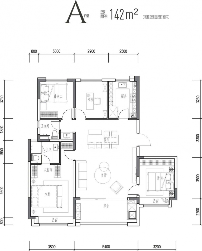
项目主推建面约142㎡小高层和178㎡洋房产品,比较适合改善置业群体。
1)142㎡A户型:四房两厅两卫
房型周正,功能分区明显;客厅开间做到了5.4米,尺度阔绰,给日常休闲娱乐增加了不少空间;主卧带衣帽间和卫生间,且带大飘窗,只不过衣帽间正对卫生间,衣物可能容易受潮;另外就是靠近客厅的次卧距离客卫稍微有点远。

2)178㎡B户型:四房两厅两卫
尺度更加阔绰的四房户型,客厅开间达到7.2米,舒适度较高;客餐厅一体,动线流畅;主卧套间设计,带独立衣帽间和卫生间。

4、性价比★★★☆☆
印湘山为全新盘,目前1#住宅已获证,暂未推出,项目住宅毛坯限价10600元/平,预计为非毛坯出售。项目周边分布着佳兆业湘府熙园、润和翰文府、红星天铂等楼盘。
佳兆业湘府熙园在售建面约142平毛坯住宅,均价9800元/㎡。红星天铂在售建面约125-135平毛坯洋房,均价10800元/㎡,在售建面约125平毛坯住宅,价格区间10500-11800元/平。润和翰文府在售建面约105-129平毛坯住宅,均价11200元/平。
就价格而言,佳兆业湘府熙园价格优势最为明显,并且周边楼盘多以毛坯出售,仅印湘山为非毛坯出售,再加上项目以改善需求为主,估计价格不会低,首付压力自然也要大一些。
总的来说,佳兆业湘府熙园距离地铁更近,价格优势明显,适合刚需上车;而红星天铂自带约10万方购物中心,规划有洋房和高层产品,可选择性较多,性价比尚可;润和翰文府则距离学校比较近;印湘山会更靠近湖南省植物园,定位改善,圈层纯粹,居住舒适度较高。
整体来看,每个项目各具特色,购房者可根据自己的首付预算以及需求选择。
二、区域点评
印湘山紧邻湘府路与万家丽两大交通主干道,湘府路串联起省府、高铁新城及洋湖等片区,万家丽路则是长沙南北向的重要干道,依次连接星沙万家丽北、万家丽、高桥、喜盈门等商圈,从项目出发可快速前往各大片区,区域位置优越。除此之外,项目周边分布着红星商圈、喜盈门范城商圈等多个商圈,配套成熟。
三、编辑点评
1、印湘山是嘉圣达控股旗下“印”系新品,此前印湘江项目已在长沙楼市积累了一定的口碑效应;
2、项目临近地铁5号线板塘冲站,且周边分布着湘府路和万家丽路两大主干道,交通出行较为便利;
3、项目主推小高层和洋房产品,且两种产品分区开发,圈层纯粹,适合改善置业群体。