作者介绍了烧结厂主抽高压电动机频发滑环打火等故障的分析与处理,通过强化高压电动机的日常维保步骤、标准及方法,以及对高压电机进行技术改造,使得该类型高压电机故障率得到明显下降。
烧结厂主抽高压电机因启动困难而造成的电机绕组故障一直困扰着很多钢铁企业,许多钢厂采用变频、软起动器、液阻柜等方式来拖动主抽高压电机,平稳完成启动过程。
大型同步电机配合高压变频器的拖动方案是新建烧结厂的主流设备选型方案,其具有输出力矩曲线平滑,启动电流小、启动过程平稳等优点。但对很多老钢厂来说液阻柜配合绕线式转子高压异步电动机依然是主要的生产设备。
由于烧结主抽风机功率大、风机转子重量重、转动惯量大等特点,即使高压电机采取液阻柜降压启动的方式启动,也会带来不小的启动电流及冲击,在启动过程中往往发生滑环打火、线圈绝缘击穿对地、相间短路等故障。
事故简介
1月3日18:20烧结厂集控室接到3号车间停产的通知,待3号主抽、冷却风机全部停下来后电气作业人员照例对3号主抽、冷却高压电机进行绝缘检测及维护保养工作。经测试3号车间A线主抽高压电机转子对地绝缘为0.1 MΩ,遂对3号车间A线主抽高压电机转子引出线接线柱、滑环及刷握进行吹灰除尘,酒精擦拭处理。
维保工作结束后对电机转子对地绝缘进行再次测量,测量结果为500 MΩ。21:30接生产调度通知开机生产,3号车间A线主抽高压电机在启动过程中突发“嘭”的一声巨响,并冒出浓烟,高压电机“放炮”。
电气人员打开后端盖后发现电机滑环严重烧蚀已不能继续使用(如图2-1、2-2示)。分厂主管立即组织人员更换高压电机,至1月4日8:30抢修工作结束,本次故障造成误时共计660分钟。

图2-1 故障电机

图2-2 滑环表面烧蚀
原因分析
上述案例,只是我公司众多YRKK560-4型电机故障中的一例,据统计烧结厂自03年以来主抽高压电机每年发生故障2-3起,直接、间接经济损失数十万元。此设备居高不下的故障率给我公司生产管理部门及设备管理部门带来较大压力。通过我们深入的调研与分析,对比其他型号高压电机,总结过去的经验,分析此类型高压电机高发故障的原因如下:
1 滑环绝缘套管破裂
通过对该故障电机进行解体,我们发现该电机滑环多个绝缘套管存在破裂现象,且裂口中夹杂大量导电性粉尘。因套管直接接触三相滑环,破裂且夹杂碳粉的套管绝缘性能大大下 降,电机启动瞬间转子相间产生的高电压击穿滑环相间的绝缘,直接导致短路放炮故障。

图3-1 滑环绝缘套管破裂
2 碳刷磨损快,碳粉多
该电机所选用牌号为J204的金属石墨电刷,查阅电刷手册可知该型号电刷额定电流密度较大,但允许圆周速度仅为20m/s,用在此电机上后碳刷磨损较快,产生的大量碳粉积聚在滑环室内部、附着在滑环相间绝缘体上,这是造成电机绝缘下降的主要原因。
3 滑环相间间距较小
与其他电机厂同型号电机相比该电机滑环相与相之间的距离过小,安装刷握后仅有一公分左右的间距,一旦电刷与滑环间产生火花,极易通过电弧诱发相间短路。
4 滑环烧蚀
该型号电机使用的滑环材质为普碳钢,自03年使用至今未进行过滑环保养及更换,在漫长的使用过程中碳刷对滑环的机械磨损及电气磨损均会造成滑环表面凹凸不平、磨损不均引起电刷弹跳较大,接触不匀,从而在电机启动瞬间受大电流的影响产生火花,严重时打火致使滑环表面烧蚀。
5 带电体空间距离过近
滑环室底板可导电部分距滑环空间距离过近,当电机产生电弧火花时飞弧容易在此位置形成对地短路放炮现象,严重时引起转子绕组损坏。
6 维护工具及方法不正确
通过深入跟踪,对分厂高压电机的维保工作进行现场调研,发现除尘清理工作存在以下几个问题:①除尘所使用的主要工具为吹风机,风量大,但风压较低,除尘效果不好;②吹风机风管较粗大,诸多细节及角落、狭窄之处根本无法清理;③使用纱头废料进行重点绝缘部位的擦拭工作,不但擦不干净还会掉落线头,既无法彻底除尘,又不符合精细化维护的要求。
总之,目前原有的维护工作工具不恰当,方法不正确,标准不达标。
整改方案
1 对电机进行技术改造
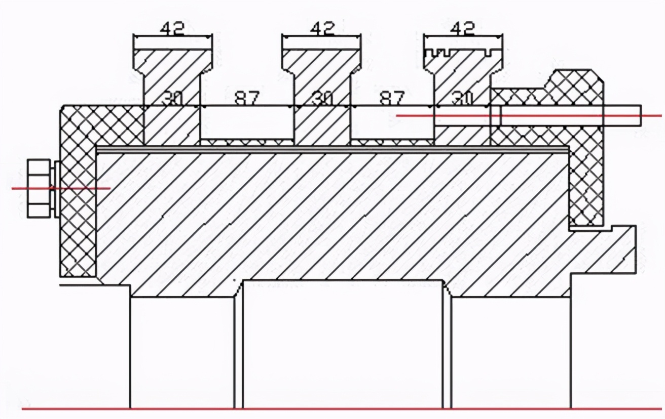
1.1 加大滑环相与相之间的空间距离,由改造前的35mm加大至改造后的87mm,使得空间距离及爬电距离都得到明显加大,电机在运行过程中难以在滑环部位形成相间短路。

图4-1 滑环改造前

图4-2 滑环改造后
1.2 将滑环及刷握材质更换为铜质滑环、铜质刷握,提高电流的通过性,以减少碳刷与滑环之间的发热;
1.3 在转子轴上重新制作滑环室排风风叶,以此增加滑环室空气流动性能将磨损的碳粉及时吹出
1.4 割除滑环室底部的铁板,并制作除尘风道。一方面加大了电机滑环带电体与底板之间的空间距离,另一方面通过风道将积聚的碳粉排出。
1.5 将原J204电刷更换为美尔森LFC554软石墨电刷,如表4-1示,LFC554碳刷允许电流密度为13A/cm2与原型号相差不大,允许速度提升至90m/s以减少碳刷的磨损形成的碳粉,并增长碳刷使用周期。

表4-1 碳刷性能参数
2 制定合理的高压电机维护技术要求
- 2.1 改用0.4MPa的压缩空气配套自制风嘴进行滑环清灰,且时长不低于10分钟;
- 2.2 用耐压25Kv的电器专用清洗剂清洗剂对滑环各部位喷吹清洗,以风干后用手摸无黑色沾染物为合格标准;
- 2.3 改用无尘布蘸无水乙醇对关键绝缘部位进行擦拭。
3 落实高压电机管理规定
- 3.1 缩短点检周期为二小时巡检一次,要求电工认真执行;
- 3.2点检项目除了原有振动、温度等项目外,增加滑环温度检测项目,确保滑环温度不超80℃;
- 3.3 一旦电机滑环出现火花现象,则建议提前进行非计划检修,将设备故障控制在最小范围之内;
- 3.4烧结厂实行区域责任制,明确每台高压电机的责任人,按考核细则奖励、考核到个人。
结论
通过对我公司烧结厂一台主抽高压电动机滑环打火故障的介绍,引发了我们对于该类型电机故障的探索及其对策的研究。在现场调研后发现原有高压电动机滑环的检查、维护及管理工作存在一定的疏漏和缺陷。通过本次技术上的改造及管理上的改进,使得该型号电机故障得到有效控制,自改造结束至今未再发生过高压电机滑环打火故障,本次攻关工作取得圆满成功。
本文编自《电气技术》,标题为“烧结主抽高压电机故障的探索及对策”,作者为罗伟、管丽娜。