
一提到美式轻奢,我们的脑海中就会联想到“简而不凡”、“优雅从容”,“自在随意”这些词。 没错, 精致、淡雅、充足而实用的生活态度,正是美式轻奢的灵魂所在。

项目介绍
项目类型:平层
项目风格:美式轻奢
项目面积:118㎡
项目地址:武汉 · 正堂山外山
本案是一家三口居住。业主平时工作比较忙碌,回到家后想要拥有轻松,放松的环境。布艺的沙发、简约的抱枕、精致的挂画以及温暖的灯光,给人轻奢典雅的感觉。午后的阳光,透过窗户肆意的洒在身上,暖暖的好舒服。

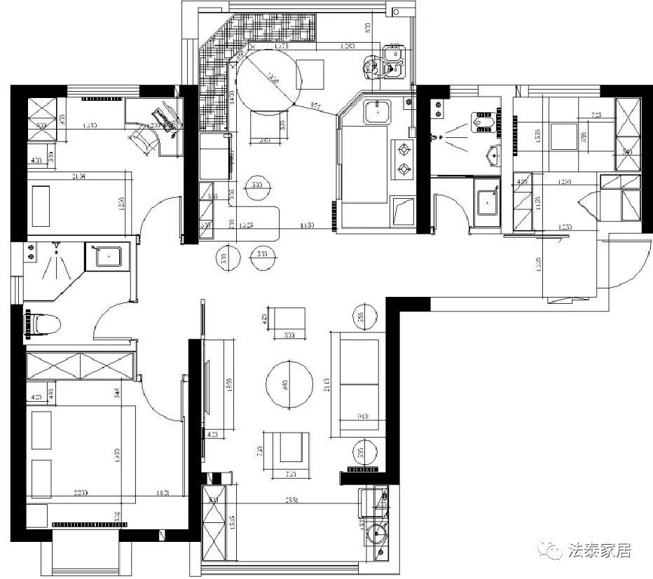
户型图
客 厅
从一进门的瞬间,就可以感受到满满的大气品味。纯白天花板和大理石地面,将香槟金墙纸置于中间,空间色彩搭配遥相呼应,让客厅显得稳重而贵气。金属屏风的设计,充满雅致的仪式感。
采光良好的阳台,以轻盈的白色纱帘覆盖落地窗,在增强装饰感的同时,将整个客厅的采光变得更为柔和。蓝色单椅的点缀,成为了客厅中的一个亮点,突出了视觉上的趣味性。而小面积金属的装饰部件,更起到画龙点睛的贵气之感。









餐 厅
鉴于此户型空间不是很大,我们设想的餐厅,并不需要占用太多地方。餐厅卡座的设计,保证了容纳更多人同时就餐的可能。再搭配两把简单舒适的单椅,就餐环境简约考究,轻松惬意。
而贴着餐厅角落设计的拐角吧台,旨为业主带来充满仪式感的生活,也成为了家里最为享受的地方:精致的玻璃吊灯与高脚椅的互相映衬,一下烘托出了品酒的高雅情调与生活趣味。





主 卧
在简练、精致的金属吊灯下,一个良好的休憩,将在一个优雅的空间中完成。一张美式现代床,以精致的布艺展示了舒适休憩的真谛。深棕色的床头,深灰色的靠垫,并辅以松软的枕头,无论是刚刚起床或是就寝前的阅读时光,皆是惬意非常。精致的大理石金属边几,还有着放置床边物品的作用。




女儿房
次卧空间虽然有限,也可以通过格局布置显得空间丰富。将床、书柜与衣柜倚靠于墙边,能够最大化利用次卧的空间。淡紫色墙纸辅以波浪式帘头的公主风窗帘,让整个空间充满了温婉的少女气息。当夜晚来临,点亮头顶那盏极富艺术感的分子吊灯,整个房间顿时少女力MAX!

