这是一个为自己工作室设计改造的小项目,也是当下城市更新课题研究中的一个小案例。在有限的成本控制下解决问题,是这个项目自始至终的关键,而对朴素、自然的“贫士美学主义”地追求,也是我们一直以来的理想。
▼办公室入口景观

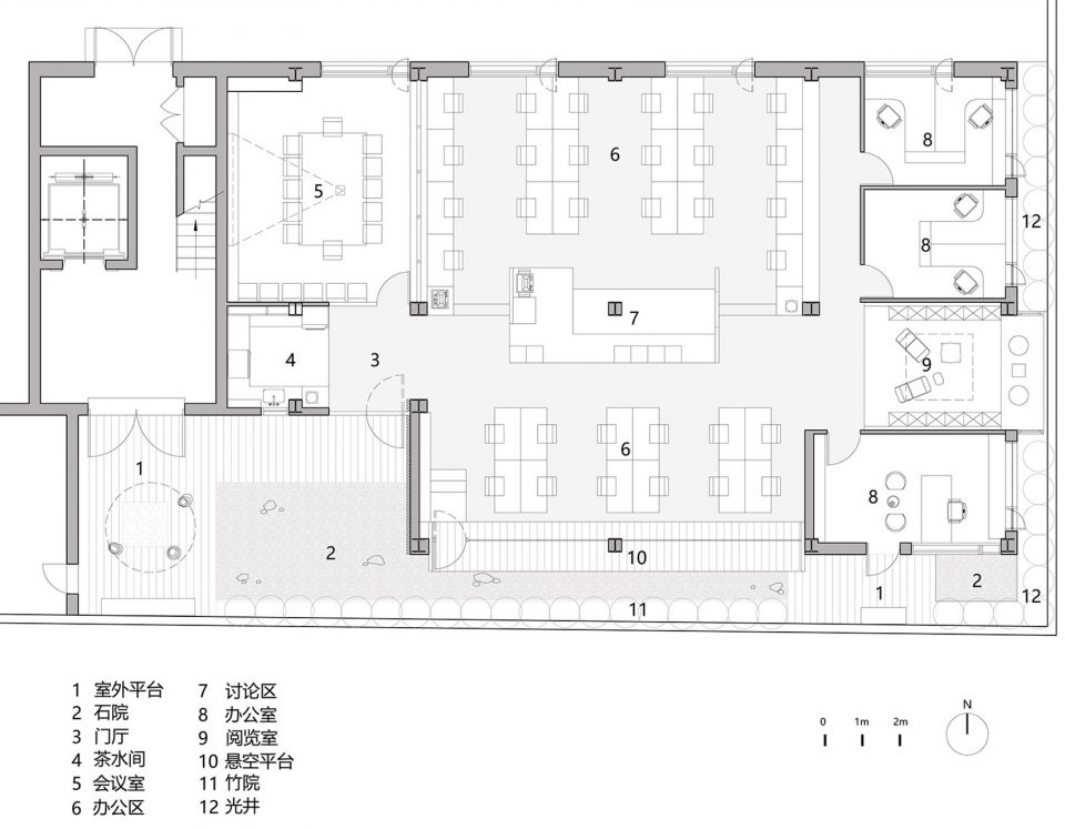
2016年7月,古宜路 188 园区由水石国际从运营商手里整体租下,并进行整体改造。整个园区由四栋多层办公楼组成,米川工作室位于园区南向的 2 号楼 1 层电梯厅以东的办公单元区域,包括 260㎡的室内面积及 95㎡的室外空间,呈两个“L”型的咬合状态,由工作室完成设计改造。
▼庭院一角

庭院景观
Gardenscape
原有的单元大门出入口位于北向的主通道上,通过反复研究,决定将北侧的大门改成窗户,而在楼梯间的位置开了一扇通往南庭院的门,再通过南庭院到达新开的南向大门。把北入口换成南入口的考虑,无疑在入口的空间上增添了不少趣味性和层次感,通过狭窄的楼梯间下部空间达到的南庭院,有种豁然开朗的感觉,也增添了室内到室外再到室内的空间上的变化,和与阳光、雨雪、风霜接触的机会。
▼改造过程

▼新的入口大门



▼改造前后的对比

将南向外部不佳的景观影响降到最低是本次设计的重点。其中在入口庭院的处理上,将公共电梯厅对出来的位置,增设了一道与西边毗邻工作室分户的院墙和一个从建筑外墙到围墙的雨棚,均为锈蚀钢板饰面。这样的五个界面围合的空间之中,一株樱花,以及雨篷上方透空的圆形洞口,成为了这个空间的中心焦点。从清晨到傍晚,阳光随着时间的变化,透过圆洞和树叶,斑驳地洒落在木平台上,原木凳上和边角落里,营造了一隅宁静。此刻雨棚、洞口、樱树的虚实结合,已从视线上和心理上将外部建筑的北立面完全挡住,却又留下了庭院需要的阳光和生机。开放办公空间对应的南庭院只有 1.8m 宽,原本的南向开窗是从梁下到底的落地窗,院墙外的机械停车楼显得十分醒目碍眼。通过视线分析,我们将窗洞的上檐下降了900mm,同时向柱子外出挑了450mm 的雨棚,窗台的下沿设置在 450mm 的高度,同样出挑,这样在户外形成了一个 2.2m 高,10m 宽,1m 深的窗框,用无框玻璃填充,形成一个完整的景窗。降低窗的高度,设置出挑的檐口,都是为了让室内的视线范围控制在庭院以内。悬空离地的景框上,可立,可坐,亦可卧,近在咫尺的一面紫竹,像是可以陪伴多年的老朋友,相互对望,静心守候。
▼南侧空间的改造


▼改造前后的对比

室外庭院部分被建筑形体与围墙划分成三个部分:南向矩形的入口庭院,南向公共办公区域对应的1.8m宽的带状庭院,以及东侧独立办公室对应的0.6m宽的天井一般的窄院。三进庭院,却在无意中,让人体验了自然界的三种属性。第一个入口庭院,大面积的黑色卵石是庭院的主角,自由散水的雨棚设计,在雨天里形成独特的雨帘,雨水滴落到石子上的声音,是想要的生活体验,一种传统江南的童年记忆,檐下空间有了熟悉的声音,有了温暖的记忆,石院也就有了水的属性;第二个庭院主角自然是竹子,风吹过狭长的庭院,使得轻盈高挑的竹子随风摇摆,发出沙沙的声音,此时的竹院也就有了风的属性;第三个庭院为东侧的井院,给独立的小办公室和阅览区采光成为它唯一重要的作用,清晨东面的阳光,通过东侧半透明的磨砂玻璃高窗,照进室内,温暖而均匀,井院便有了光的属性。
▼由入口进入内部办公区

室内空间
Interior
室内空间根据功能分为会议接待、开放办公和独立办公三个区域,所有的地面均为水磨石地坪,内墙和吊顶均为白色,三个区域用一条公共走道串联,同时分别在三个区域增加了木饰面表皮的茶水间、讨论区和阅览区,并且都抬高地坪250mm,三个空间就像悬浮在建筑内部的三个木头盒子,形成公共轴上的三处共享空间,也成为这个室内区域最重要最亮眼的节点空间,把原本简洁干净的黑白空间点缀了一缕暖色,冷暖对比使得室内空间简洁明快而又温暖。
▼入口内部空间

▼温暖的木制内饰,the warm tone of wooden interior

室内空间的划分使得原本的外墙开窗不能满足采光和通风的需求,所以做了相应的调整。并且所有的开窗尽可能做到固定窗口的景观最大化,而用于通风的只在固定扇边上设计了一个小小的可开启扇,以保证建筑的保温节能。
▼木制结构分割了内部空间



▼内部结构,inside the wooden structure

最终于 2017 年 5 月,水石国际完成了整个园区的二次改造设计,新的 188DESIGN 园区,简洁明快,空间丰富,大大改善了公共空间环境,提升了园区的品质。米川工作室也完成了自己的建筑室内和环境改造,在有风,有雨,有光的新办公室里,安静而忙碌地开始了新的工作。一个简单的设计,或许改变的不只是我们的环境,也在影响着我们的生活、工作、心情以及梦想诗与远方的动力。
▼平面
