性价比高的室内设计。你觉得怎么样呢?

项目名称:河南商丘李家新中式别墅
项目经理:王建东
图纸编号:1252
建筑面积:292㎡
基地面积:390.8㎡
占地面积:178㎡
建筑尺寸:11.3m×13m
建筑结构:砖混结构
参考造价:43.8万元(不含庭院,室内装修费用)
项目概况

易盖房重磅推出性价比高的室内设计。你觉得怎么样呢?
△总平面示意图
基地情况:
东:邻家住宅
西:村内巷道
南:村内道路
北:邻家住宅
项目简介:
业主在项目前期表示喜欢易盖房图库中新中式风格的建筑造型。设计师了解到业主庭院设计和景观体验有特别的需求,因此根据现场情况及业主的需求和喜好,将项目形式确定为南北朝向的欧式二层别墅。
户型概况:
2层 / 4室 1厅 2卫 1厨 1储物 1书房 1露台 1车库

易盖房重磅推出性价比高的室内设计。你觉得怎么样呢?
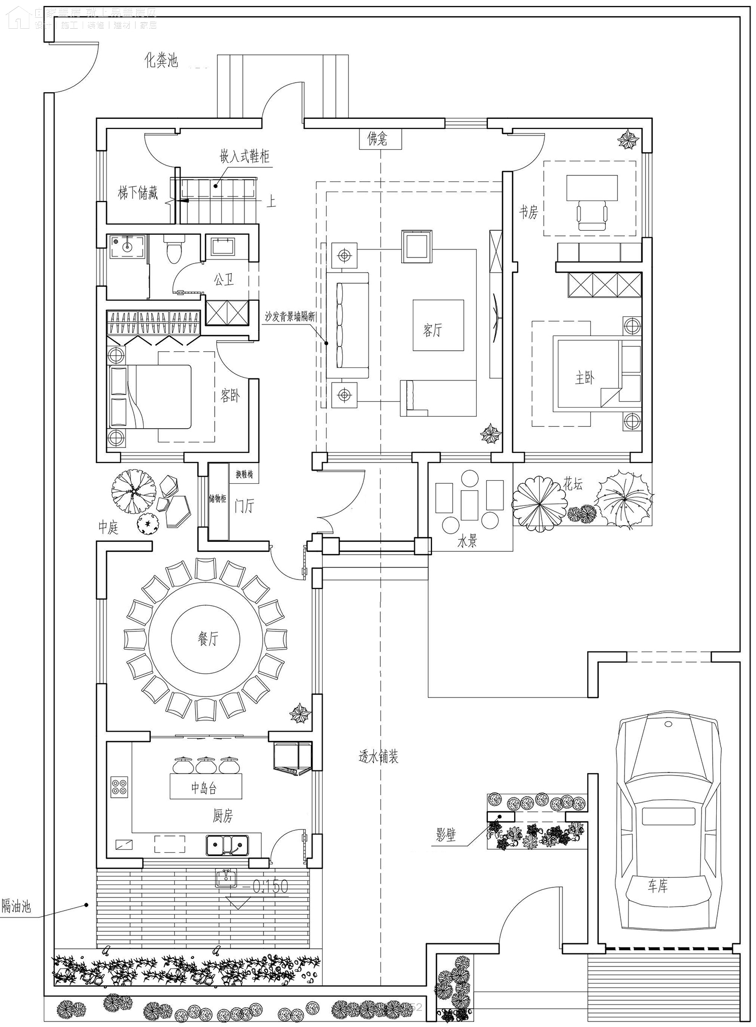
△一层平面图
一层以居住待客为主,按照业主需求在南侧设小庭院及车库。主入口、门厅使用对景装饰隔断墙与餐厨空间相邻。西南侧客厅旁边设置长辈房,为家人提供舒适便捷的居住体验。

易盖房重磅推出性价比高的室内设计。你觉得怎么样呢?
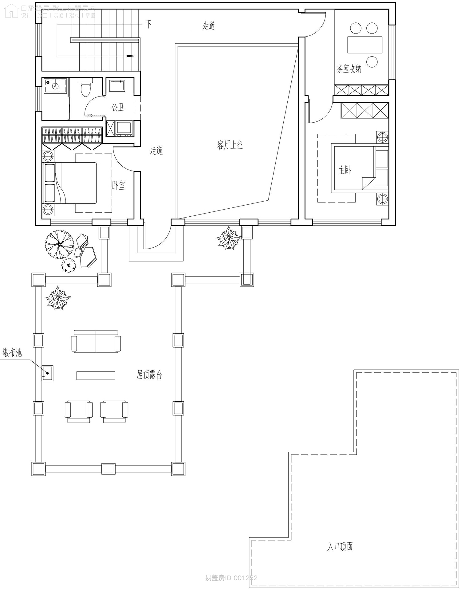
△二层平面图
二层空间整体以居住休闲空间作为主要诉求,布局上充分利用南侧向阳面,设置大露台及卧室等空间。北侧为小茶室,楼梯间,以最大限度的利用南侧采光面。

易盖房重磅推出性价比高的室内设计。你觉得怎么样呢?
△主入口效果图

易盖房重磅推出性价比高的室内设计。你觉得怎么样呢?
△鸟瞰图
建筑整体采用新中式式风格,设计师以南立面作为主造型面,屋檐配合柱体划分立面空间,使得建筑无论在水平方向还是垂直方向均具有丰富的层次感。

易盖房重磅推出性价比高的室内设计。你觉得怎么样呢?
△鸟瞰图

易盖房重磅推出性价比高的室内设计。你觉得怎么样呢?
△庭院效果图
立面主要以暖色系的真石漆和文化石的使用,大面积落地窗搭配多种外装饰构件营造丰富视觉体验。色彩上通过浅色与深木色形成碰撞,搭配琉璃瓦屋顶,使得整体氛围既庄重又不失灵动感。

易盖房重磅推出性价比高的室内设计。你觉得怎么样呢?
△南侧效果图
建筑立面采用较多体块化的设计增强空间划分,使得整体效果更显规整。外墙部分通过高低起伏的变化增强整体灵动感,并充分保障室内房间的隐私性。院门设计简洁而大气,立柱搭配门檐装饰彰显业主一家的高雅格调和品味。

易盖房重磅推出性价比高的室内设计。你觉得怎么样呢?
△庭院效果图

易盖房重磅推出性价比高的室内设计。你觉得怎么样呢?
△鸟瞰图
建筑庭院设置多种景观装饰,二层室外休闲区域与南侧的植物景观、水景相映成趣,与新中式式构建形成呼应,使得院落空间更具自然气息。

易盖房重磅推出性价比高的室内设计。你觉得怎么样呢?
△鸟瞰图

易盖房重磅推出性价比高的室内设计。你觉得怎么样呢?
△鸟瞰图
设计师考虑南侧为村内道路,因此将南立面作为主立面设计,造型分隔和谐统一,为过往行人带来热情洋溢的中国风的感官体验。

易盖房重磅推出性价比高的室内设计。你觉得怎么样呢?
△庭院效果图

易盖房重磅推出性价比高的室内设计。你觉得怎么样呢?
△庭院效果图
项目注重于细节装饰的展现,无论是大门设计,或是南侧露台空间的木栏杆及新中式构件,均拥有极佳的感官体验。

易盖房重磅推出性价比高的室内设计。你觉得怎么样呢?
△庭院效果图

易盖房重磅推出性价比高的室内设计。你觉得怎么样呢?
△庭院效果图
建筑功能丰富且有条不紊,除日常生活必备的功能房间外,满足业主需求及爱好,在庭院内设置休闲区域,供住户在闲暇时间享受阳光。

易盖房重磅推出性价比高的室内设计。你觉得怎么样呢?
△鸟瞰图

易盖房重磅推出性价比高的室内设计。你觉得怎么样呢?
△鸟瞰图
整栋建筑主要以高低错落以及颜色对比表达层次,暖色系的材质——真石漆与文化石的搭配,配合大面积落地窗与一些传统元素装饰构建,使得整栋建筑热情洋溢。

易盖房重磅推出性价比高的室内设计。你觉得怎么样呢?
△鸟瞰图
入院后,立面效果更加丰富多样,客厅起居室部分采用突出的窗框和半格栅隔断增强立面层次感,同时弱化屋顶露台在人视角度的存在感;主体建筑部分则采用较多的线条装饰划分立面空间,增强建筑的整体感。

易盖房重磅推出性价比高的室内设计。你觉得怎么样呢?
△客厅
两层通高的客厅,使得原本开阔的客厅空间更显雍容华贵。东西两侧经典的美式石材壁造型与欧式沙发墙交相辉映,华丽的吊灯与吊顶则让整体的感官体验更显庄重。

易盖房重磅推出性价比高的室内设计。你觉得怎么样呢?
△门厅玄关
精致的地面拼接与导线划分、经典的欧式灯具、浪漫优雅的壁柱造型与柜体,给人以深刻的视觉冲击,入户即可感受到高雅的生活品味。

易盖房重磅推出性价比高的室内设计。你觉得怎么样呢?
△餐厅
餐厅线条简洁,格调淳朴淡雅,沉稳的桌面凸显萃绿餐椅,与浅色装饰相得益彰,美观实用。整体的格调与品质得到了升华,在灯光与通透隔断门的衬托下更加凸显轻奢的生活品质。

易盖房重磅推出性价比高的室内设计。你觉得怎么样呢?
△厨房
厨房在顺应现代功能需求以及色彩审美的同时,追寻传统风格的细节设计。在内部设置小吧台,极大地丰富了厨房的功能性和趣味性。

易盖房重磅推出性价比高的室内设计。你觉得怎么样呢?
△主卧及茶室
高挑的层高设计使得整个环境视野开阔,再搭配简单的的线条把整个空间区分开来。设计师根据业主的喜好,利用卧室外区域,给业主打造出轻松休闲的茶室空间,晨光清朗,香茗陪伴,心情惬意如风。

易盖房重磅推出性价比高的室内设计。你觉得怎么样呢?
△次卧
东南侧卧室风格恬静淡雅,墙面设计化繁为简,通过乳胶漆和壁纸强化墙面装饰的层次感。软装方面在注入现代美式精髓的同时,将软装搭配进行得恰到好处,既不会太过繁杂又确保功能丰富,日常居住必然轻松写意。

易盖房重磅推出性价比高的室内设计。你觉得怎么样呢?
△公卫
由于划分出洗衣区域,因此一层公卫空间十分有限。设计师在相对狭小的空间内充分利用了各个角落,将洗手台、马桶和淋浴房合理排布,提高了日常使用的便捷度。
1.作为设计师,在这个项目中遇到了哪些困难?
答:整个项目沟通过程十分顺利,业主的诉求也很明确,设计过程中,我们和业主配合默契,项目基本没有遇到困难。室内部分在时间紧凑的情况下,设计并优化细节有一些挑战。
2.这个项目的设计周期是多久?
答:25天左右。
3.是否有自己非常满意的设计建议未被业主接受?
答:业主对建筑设计比较了解,对细节要求比较精细。有自己明确的想法,也给我们设计中提供了不少想法。