前言
- 本文客观理性评测,文中所呈现规划图均源自宁波市规划局及江北区规划局网站公开资料;
- 本文所述之项目价格为老钟根据备案价,并结合自身专业经验进行判断,不做实际购房价格依据;
- 关于户型尺寸,开发商层面为公开,老钟通过特殊渠道获得尺寸图,有需要的朋友可私信告知我。
土地信息
2019年6月19日,金辉以单价8230元/平, 溢价率19.8%,总价16.38亿拿下江北区JB12-01-16b、JB12-01-18a地块(原汇头陈、货运市场地块)。

因为南边的地块要求配建商业,于是金辉与宝龙合作打造这块贴着北环西路但同时又在限购圈外的小综合体项目:金辉宝龙城市广场
项目概要
整个项目建筑面积是28万方,我目测住宅大概是18万左右。北部地块16栋楼,南部有3栋住宅,据销售说会以公寓形式管理。

8月28日,金辉宝龙城市广场的首批次预售证已经取得,均价是27505元/平,一共10栋楼。后面我会说大概每栋楼的均价,以便参考选择。
规划与潜力
这是开发商挂在网上的区位图。

这类图在老钟看来,欣赏一下即可。真正要了解项目周边的情况,除了实地考察,更需要通过控制性详细规划了解。
这点,老钟在之前的文章和视频里反复提及。
这是项目所处地段的控制性详细规划图,红框内两块黄色的地是这个项目。R2代表二类居住用地。

这个地段的控制性规划经过了几轮调整,上图是调整前的,如果是这样的规划,金辉宝龙这个项目就是处在了工业区中间,不值得购买。
但是控制性规划是可以做局部调整的,我花了几个小时,通过两个地段的局部调整文件,进行合成,获得下图。

比较明显的三个地方:
- 项目西侧出现了绿化退让带;
- 萧甬铁路左侧由原先的工业用地调整了居住用地为主,商住混合用地为辅;
- 江北大道和洪大路东北地块规划一座九年制学校。洪大路长兴东路西南地块规划九年制学校。
总结一下,经过多轮规划调整后,北环西路以北,康桥南路以西,机场路以东,庄兴路以南,这个区域可能会出现一个以居住为主,同时有一定商业金融服务功能的居住中心,同时板块内还规划两所九年制学校。
你看,看懂规划图,你就能看到别人看不到的未来。
周边二手房价格
该项目周边二手房主要集中在北环西路以南地区,包括世贸天慧,九龙仓铂悦府,天沁家园,二手房价格在2.8-3.4万左右。

以该项目首批次均价27505来对比,有一定的一二手倒挂现象。但如果老钟上述根据控规图的预判兑现,具备一定升值空间。
如果把二手房的选择范围继续往南延伸,价格持续上升到3-4.5万左右,包括惠贞书院的学区房天水家园,长岛花园,万象华府等。

北环西路以北区域,其中正北和西北区域以工业厂房为主,东北区域有10个左右小区,价格2-2.4万左右。

所以北环西路南北两侧的二手房价差非常明显。
南边来的客户,嫌弃这个项目周边环境差。北边来的客户,会觉得这个项目价格贵。有时候选择总是那么纠结。
交通方面,重点解读地铁。
4号线庄桥站在该项目西侧,步行时间预估十分钟左右。5号线二期和7号线有个换乘站点康桥南路站在项目东南侧,目测需要过三个红绿灯,步行时间在15分钟左右。
三条地铁线,加上北环高架,出行比较方便。

该项目在宁波核心区的最北侧,我预想了两条线路,测算了时间和距离。
第一条是周一早上从该项目出发去天一广场,百度大数据预判结果是需要用时40分钟,距离8.3公里。其中大闸北路有一段极其拥堵。
第二条是周一早高峰去东部新城,用时51分钟,距离15公里。

所以如果选择这个项目,如果你上班在三江口或者东部新城,早上要给自己留一个小时的通行时间。
教育
教育方面,周边学校主要是庄桥中心小学和庄桥中学。个人判断这个项目读惠贞书院的概率约等于零,读江北外国语学校的概率也不大。
如果规划中项目西侧的两所九年制学校能够在明年底之前动工,读西边学校的概率比较大。

项目整体评价。
该项目由两个地块组成,南地块80%商业,剩余3栋高层住宅。

北地块16栋高层及小高层。所谓的11层洋房,实质上是小高层。建筑风格目测是现代风格,北地块整体楼栋排布中规中矩。小区内部景观绿化没有特别大的亮点。
在限地价又限房价的今天,如何降低成本是每一个开发商的难题,如何突出居住价值反而成了被忽视的方面,可悲可叹!
南地块只有3栋住宅,开发商号称公寓式管理。具体细节不了解,等二批次开盘前,老钟再帮各位打听。

红色部分建筑面积6.6万平,5层,局部6层,大板式小综合体。这也是这个项目最大的卖点。这部分商业开发商自持,不对外销售。这是好事。
黄色部分是销售型商业,开放式步行街,通过连廊互相连接,至于是否和小盒子无缝对接,目前细节不清楚。老钟对这个商铺持保留意见。
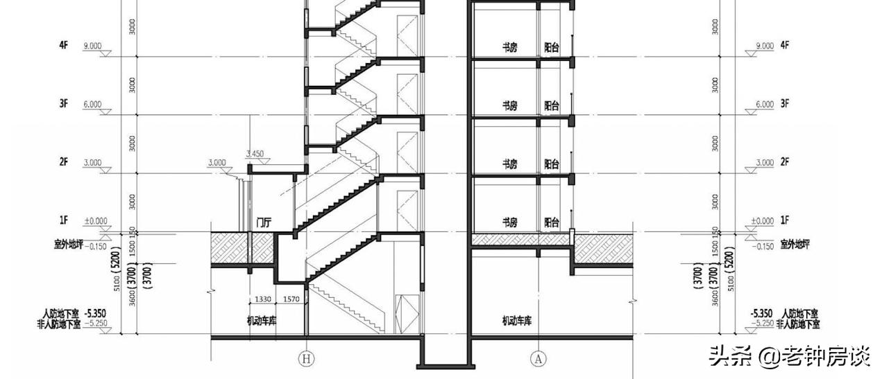
地下车库层高3.7米,这个尺度中规中矩,如果算上管道占用空间,预估在2.8-3米左右的净高。
住宅层高3米,正常高度,不多说。

首批次价格
半透明色块覆盖楼栋是首批次推售范围,价格为老钟根据备案价预判。

在整体均价27505的前提下,东北角这栋楼均价2.7左右,中间红色覆盖的两栋楼2.8左右,西侧蓝色覆盖的四栋楼2.6左右,中间灰色覆盖的三栋楼2.9左右。
灰色区域是11层的小高层,两梯四户,122平四房两厅。其中7号楼均价应该是小区里最贵的。三栋楼所处小区中间位置,且11层的小高层得房率高于18层高层,因此价格较贵。
蓝色区域西侧是绿化退让带,再西侧就是萧甬铁路,有一定噪音和振动,不利因素较大,所以开发商在配价上也做了考虑。
我个人判断最便宜的是1号楼,预估整栋楼均价在2.5-2.55左右,意味着西边套较低楼层的单价可能会在2.4左右,总价230万左右。
另外,该项目在备案价基础上应该还有购房优惠。
总结:
- 如果预算允许且自住客户,建议选择7/10/15,总价350万左右。
- 如果预算有限且自住客户,建议选择2/3/4,总价250-300万左右。
- 如果纯投资客户,可以选择1/8/9/16,其中西边套性价比会最高。
这里重点提一下不利因素:
1/4/8三栋楼南侧有配电房,配电房高度4-5米左右(目测),如果介意的朋友,避免这三栋楼的低楼层,高楼层不影响。
户型
该项目只有三个户型。

11层小高层只有122四房双一个户型。三开间朝南,类似四叶草。但厨房在东北角或者西北角。三个卧室各占一个角落,互不干扰。
18层高层,边套97平三房双,餐客厅靠边,落地窗,如果是东边套采光较好。如果是西边套,采光太好,有西晒问题,但在价格面前都不是问题。
个人会比较建议95平的中间套,渗漏水概率会小于东边套,且没有西边套的西晒问题。通风问题可通过开北边书房窗户解决。
户型方面没有硬伤,中规中矩,得房率在75%-77%左右,没有太多的偷面积。
老钟特殊渠道拿到户型开间尺寸图,有需要的朋友私信我。
楼盘总结:
- 规划:北侧为工业区,有大量厂房,且目前未看到有调整迹象。但西侧地段已经调整以居住为主的功能属性,同时配置商业和两所学校,日后会成为北环西路北侧,机场路以东,一个小型的居住中心。
- 交通:4号线庄桥站在项目西侧,另有两条规划地铁线5号线二期和7号线。
- 学校:项目周边没有学校,读惠贞书院和江北外国语学校的概率小。
- 出行:早晚高峰自驾车到三江口或者东部新城,需1个小时左右。
- 价格:与金麟府相比,个别楼栋具有一定价格优势,同时受萧甬铁路干扰也较大,你必须要有所选择。
- 户型:中规中矩,预算允许买122,预算紧张且自住买95平中间套,投资客户建议直接选97平西边套。