昨天,中庆润泽院公布意向客户登记公示:96套房源项目共584户有效登记家庭,其中高层次无房人才家庭5户,普通无房家庭306户, 项目总体中签率约16.4%。
584组的登记人数,不仅是该项目自摇号以来的最低登记人数,也创造了该项目自摇号以来的最高中签率。

中庆润泽院历年摇号情况 凤凰网房产/统计
众所周知,在项目清盘的时刻,往往总是容易创造低中签率,何以到了中庆润泽院,情况就大相径庭了呢?
01
中庆润泽院位于富阳富春街道,周边生活配套齐全,居住氛围也十分浓厚。北侧即是富阳宝龙广场,步行15-20分钟可到东方茂、银泰百货。
项目距地铁6号线桂花西路站和公望站直线距离约1.5公里左右,可以说,整个项目除了离地铁稍远以外,几乎一应俱全。

中庆润泽院 图源:透明售房网
与中庆润泽院一路之隔就是如画府,曾经是富阳登记报名人数最多的楼盘,最后一次推盘,100套房子有4269户家庭登记,最终选房时只有1位弃选。
中庆润泽院的火爆程度与如画府不相上下,原因之一就是它在加推的时候已经处于“准现房状态”。对于富阳本地人来说,这是一个不可多得的高性价比楼盘。
据了解,项目部分楼幢已经在去年九月开始陆续交付,而绝大多数业主,也已经如期在去年年底前收房。
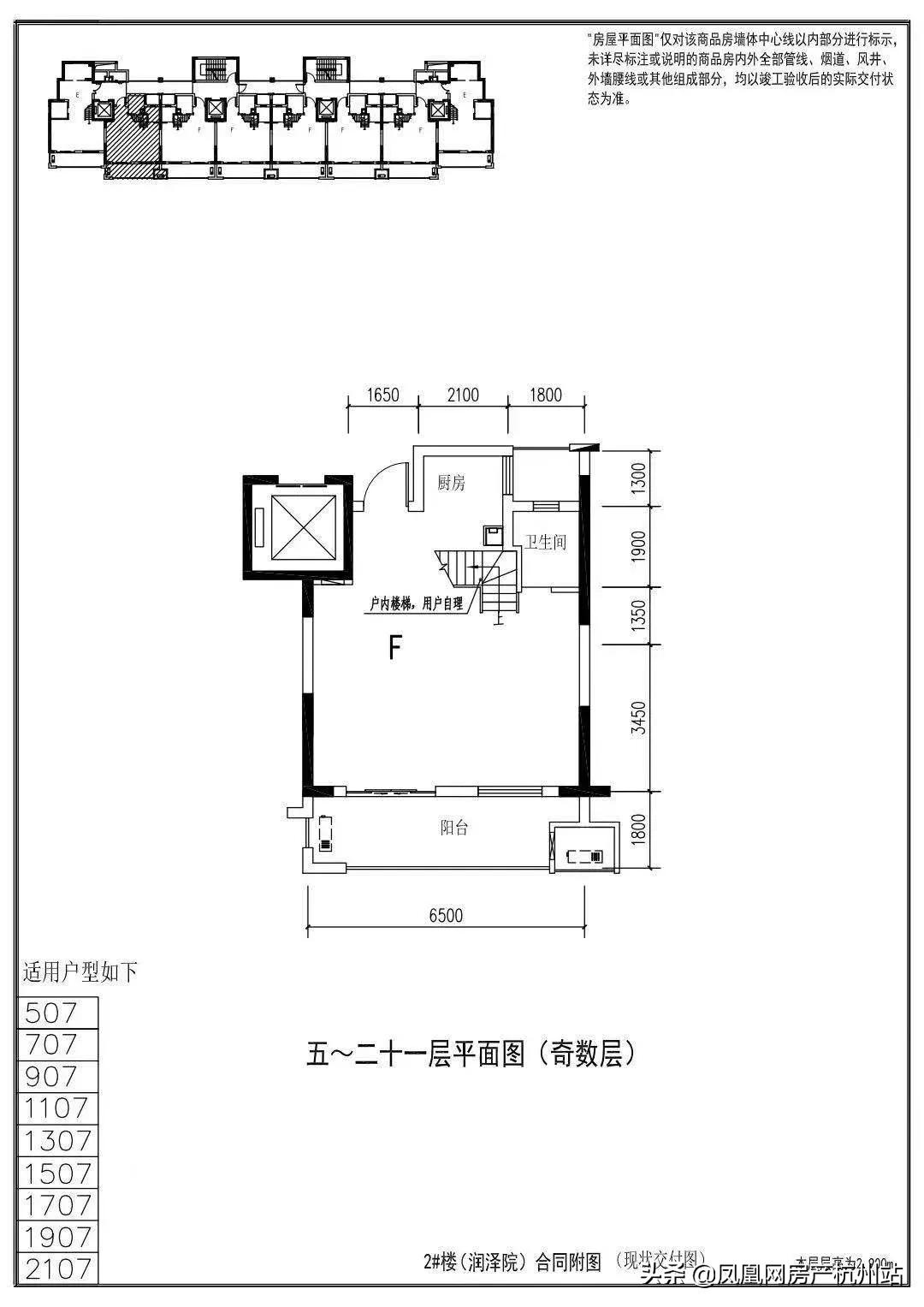
本次加推的2号楼,是中庆润泽院最后一栋楼,户型非常特别,为97、115㎡的复式,得房率极高。
97㎡的三房两卫中间套,拓展改造可达约119㎡;115㎡的四房两卫边套,拓展后则近146㎡。
这样的高得房率,放眼整个杭州几乎无出其右。

项目户型图 点击放大查看

项目户型图 点击放大查看

项目户型图 点击放大查看

项目户型图 点击放大查看
02
现房状态和超高得房率,似乎就注定了这是一个不愁卖的项目,之所以登记人数较低,原因主要在于此次房源均价较前几次有了大幅的上调,均价为21000元/㎡,距前面16800元/㎡的价格, 涨了4200元/㎡,价格优势直接被抹平。
此前,中庆润泽院的毛坯均价仅16800元/㎡,比起富春板块了22000元/㎡-29800元/㎡的新房限价,形成了巨大的倒挂优势,且又有现房优势,自然成为香饽饽。
据杭州市二手房监管服务平台显示,中庆润泽院目前已有不少房源挂牌,其中最低总价也要190万元,折合单价在2.3万元左右,对于之前摇中的购房者来说,几乎没有时间成本的收益,确实是赚了个满盆。

截图来自杭州市二手房监管服务平台
不过,对于二手房买家来说,算上不满5年的税费,二手压力并不小。
如今,中庆润泽院新房调价至21000元/㎡,虽然也有倒挂差价,但考虑到房源为毛坯,且板块内新房仍有供应,巨大的价格红利差已经不复存在,逐利而来的投资客自然也就四下散去了。
03
还记得2018年,星桥的天都城滨沁公寓和大江东的金色和庄入市,1字头的价格和现房的优势,使得两个项目都创造了“2万人摇”浩荡历史。自此以后,等待楼市中的“彩蛋盘”,也成为广大购房者翘首以盼的事情。
据凤凰网房产统计,目前,楼市中的“彩蛋盘”已经不多了,主要集中在大江东、闲林等区域。

杭州楼市那些“捂盘”彩蛋 凤凰网房产/统计
其中,大江东的“捂盘项目”最多。比如被称为“杭州楼市第一彩蛋”的滨江华成大江之星 。
该项目位于地铁7号线地铁口,与金色和庄距离不远。比起金色和庄,更有滨江的品牌加持。项目前期售价12000-13000元/㎡,关于开盘的消息一直众说纷纭,但全无动静。
同样位于大江东的春意江南名邸 ,也还有高层没有开盘。该项目比较特殊,共规划建造6幢高层住宅楼,楼面价虽低,但前4幢为西二线回迁安置用,已经在2019年4月份交付入住了。
剩余2幢商品房,其中5号楼已经在2018年3月初领出预售证,均价仅8000-13000元/㎡,售罄后项目剩下6号楼,且是网传已久的“神户型”,其中89㎡4房2厅2卫的跃层户型,得房率超过100%,实用面积120㎡左右。
虽然他们都很“香”,但小凤凰也不得不提醒大家,中庆润泽院的涨价,意味着那些我们苦苦等待的“捂盘彩蛋”涨价可能性极高,“高性价比”也可能不复存在。