要想在农村盖一栋实用又美观的小别墅,设计的作用不可小觑。有一份专业的设计图纸来指导建房,少花冤枉钱,少走冤枉路。
今天给大家带来5套晒家案例,看看使用专业图纸的业主,房子建的怎么样?

案例一:
这栋房子是梅先生的新房,看实拍图大家会觉得花了多少钱建成的呢?30万?40万?其实像这样一栋农村房,造价花了60万,其中人工费大约20万,材料20万,装修20万(含家具电器)。

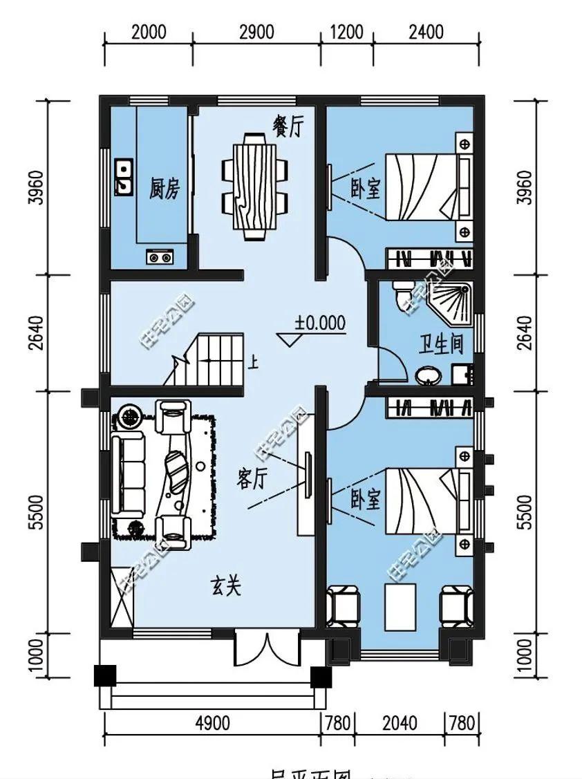
平面布局图:



室内布局采用新中式+简约双重搭配,更有质感。
入户大门跟室内套装门都是定制,全屋灯具就花了2万多,断桥铝双层中空隔音窗更是大气,所有的一切都以高规格来做,只求父母可以居住舒适且安心。
都说农村盖房,设计个挑空客厅着实浪费,但仔细看过之后才觉得,挑空客厅太美了,超级漂亮!预算充足的话,设计了挑空客厅绝对有面子。

案例二:
不管怎么说,辛苦大半辈子,若是能在家乡建一栋别具一格的乡村美宅,再打造一个舒适的农家小院。闲看庭前花开花落,漫随天外云卷云舒。何其幸哉!

这栋房子,是陕西业主魏先生的新房,简单规模的二层小楼,但胜在实用精致,尤其是外墙彩绘更是一绝,房屋外形有亮点,室内布局很稳妥。

效果图展示:

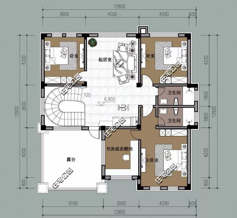
平面布局图:


魏先生的宅基地面积很大,建房只建了一小部分,留出了一个大院子。好好规划一番,可以养养花种种菜,生活更富情趣,也更加贴近自然。

看着房子马上建好,多年的梦想终于成真了,魏先生的语气充满了激动之情。
这栋房子土建部分花了20万,内外装修花了15万,加上门窗、家具、院墙等,一共花了42万左右。是不是超级划算呢!

案例三:
广西覃先生60万建新房,为了在村里留下自己成长的印记。
跟多数人一样,广西覃先生也早早出来打拼,现在已经有了自己的小家庭定居在城市,但父母还是喜欢乡下的宁静与舒爽,喜欢乡村的空气与人情,喜欢鸟鸣与蝉泣。这一次回村建房,覃先生的想法是要完全按照自己的喜好来建,要舒适,但不要铺张浪费。

室内布局遵循古典新中式主义,父母喜欢,前来做客的邻居也夸房子修建的有品位。
通过博古架、隔断、挂落等装饰,互通借景,虚实相生,于“围而不隔,隔而不断”之间,构成层次丰富、境界幽深、情趣无穷的中式家具体验之境。


效果图展示:

平面布局图:


最后说说大家比较关心的工期和造价问题
工期,松松散散用了1年。
总造价,60万,包含主体、装修、装饰、院子、房内电器、所有人工。

案例四:
每个人回村建房的理由不外乎那几种,或是为了结婚,或是为了养老,在今天这位张先生的眼里,他建造的这栋房子,不仅仅只是一栋居所,更饱含着一家人对新生活的热烈期盼。

张先生的这栋房子从2018年正月十六开始拆除旧房建新家,6月份的时候主体完成,年底前内外装修全都搞定开始入住。



按照效果图上的配色,张先生对门斗立柱采用白漆涂色一层采用灰色6*24劈开砖,素雅大气;二层为米色真石漆喷涂,并做好分格;落地窗的部位采用文化石做点缀,提升房屋整体格调。

房子主体花费大概43万,实际建筑面积330平,人工17万,清包人工包括基础在内算到510多平方。
不得不说,这栋房子建的超值,造价很划算,布局很漂亮。

案例五:
为什么一直要强调设计的重要性,是因为只有按照自家的实际情况设计出相对应的图纸,拿图建房才算是真正的实用,可以建造出自己心中的理想宅院。

来自云南的陈先生便是如此,2008年的时候,为了改善居住环境父亲拆了老房重建了一栋200平的新房,但当时没考虑周全,居住起来很不舒服。于是这次重建,找了专业设计师出图设计,力求尽善尽美。

平面布局图:



陈先生的这栋房子从2018年6月开工,历时一年多时间建成,施工队人工费350元一平方,除了有一些小细节存在问题,整个施工过程业主还是很满意的,外观基本和图纸达到了一致。

别墅外墙参考效果图采用彩石漆,70元一平,做好后别墅效果马上就出来了。
像这样一栋房子,所有的花费算下来,一共100万左右,其中施工队人工费350元一平,楼梯间和顶上飞边双倍。主房人工费:19万;附房包工包料:6万。

这5套晒家案例,你最喜欢哪一套呢?也欢迎更多的朋友来我们住宅公园,分享你的建房故事。
关注本号,更多农村自建房户型图欣赏,还有建房小知识,一手掌握。