8哩岛162㎡欧式——北京院子 你我的家

小区名称:8哩岛4-2-801

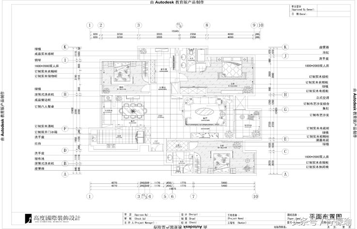
工程户型:四室两厅

8哩岛162㎡欧式——北京院子你我的家

工程面积:162

居住人口:3口

设计风格:欧式

8哩岛162㎡欧式——北京院子你我的家

工程造价:12万9

类别:公寓

8哩岛162㎡欧式——北京院子你我的家

设计理念:业主是50多岁的中年夫妇对生活有自己独特的见解,追求生活品质注重生活细节所选的欧式风格也是现在家装市场的主流风格之一。

8哩岛162㎡欧式——北京院子你我的家

主案对风格整体的把控和卧室夜灯的细节处理都彰显出设计的超高水准。客厅和卧室中壁纸的局部运用也突出了欧式的低调温馨。

8哩岛162㎡欧式——北京院子你我的家

有任何装修难题(陕西西安地区)【18220822155】同微信随时帮您解决。

也可以关注新浪微薄@柠檬--雨,更多家装效果供你参考。