今天分享一套位于康城名郡的三层别墅装修设计案例,共五房四卫一厨两厅,户主对设计有较高的要求,下面让我们来走近这个设计案例吧!
房型分析

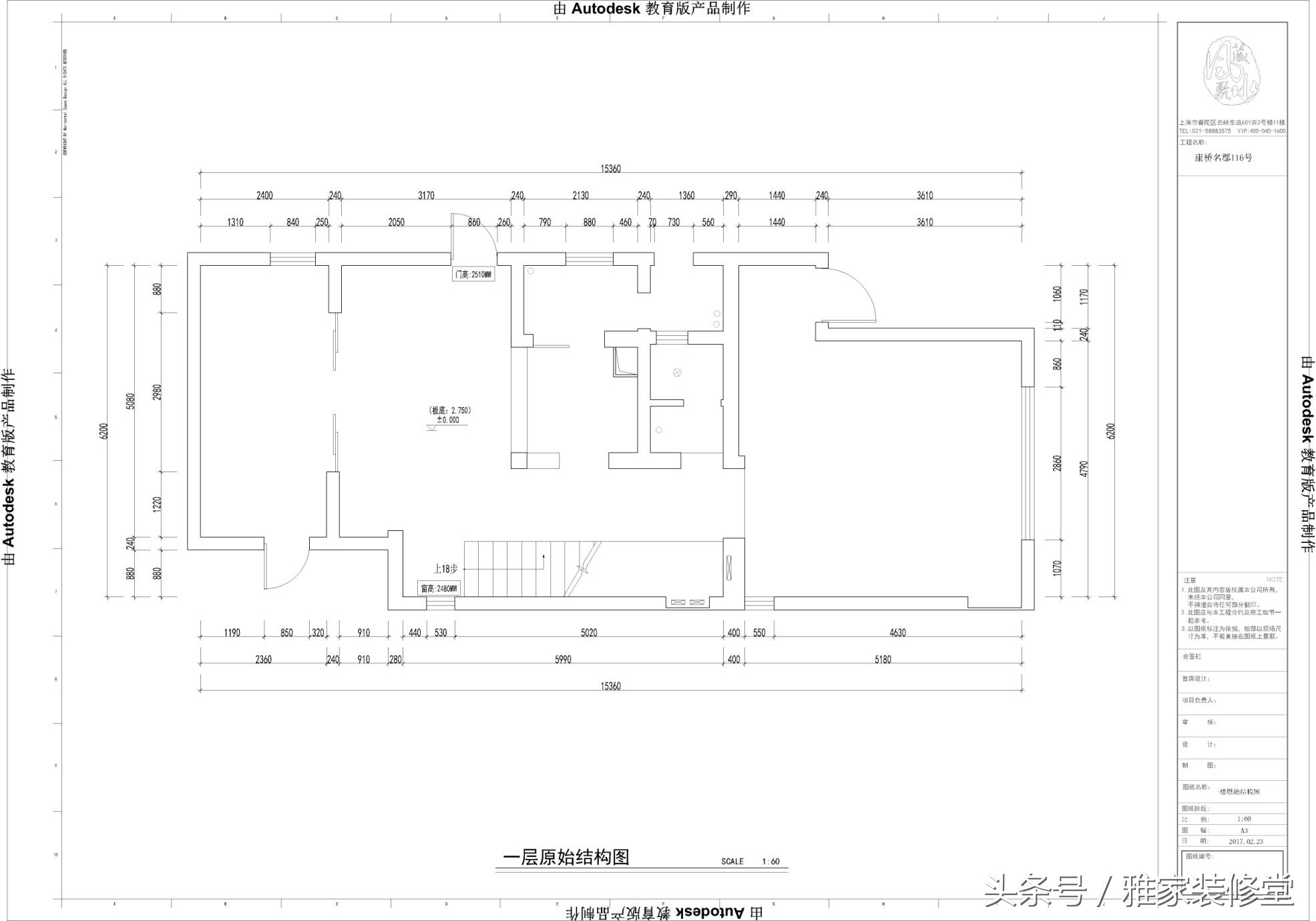
一层原始结构图

二层原始结构图

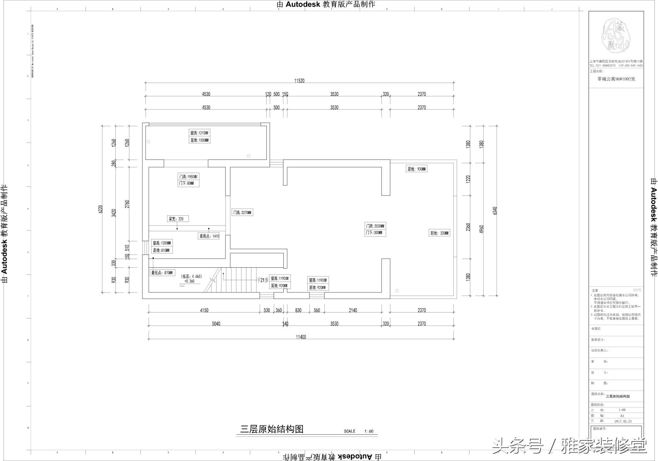
三层原始结构图
优点:基本上每个卧室都匹配一个卫生间,楼梯靠墙,最大限度的利用房屋体积。
缺点:房型不是很规整,正中有承重墙分隔空间,使房间规划有了很大的局限性。
方案分析

一层平面图
-
利用楼梯间浪费的位置做一个吧台,增大的空间的使用功能。
-
门厅处做了一个储物间,将室外的空间收到室内,扩大室内面积。
-
沙发的摆放位置,最大限度地增加采光度。

二层平面图
-
二楼做了两个卧室,一个儿童房套间 ,一个多功能房,方便家里有客人,或是家人小住时使用。
-
儿童房和阳台相通,这样的布置现在看来虽然有些奢侈,但是等到孩子长大后,就会有足够的空间使用,房间的实用性很强。

三层平面图
-
三楼一整层都做为主卧,设置了充足的储物空间。
-
搭配一个洗衣机,搭建一个阳光房,增添了功能区。
效果图







编后:我们不难看出,这个三层别墅装修是极简风格,空间里以黑白和橙色方块为主色调,塑造了一个个性化又舒适的家居空间。如果有装修设计需求的,请联系雅家装修堂哦!