在空间通透感的营造上,我们常常会使用玻璃材质,玻璃一直是设计师爱不释手的材料,给人朦胧而梦幻的空间感受,它给空间带来的的魅力是无限的。
玻璃的种类繁多,大家熟知的给人朦胧感的长虹玻璃、如水纹一般恣意流淌的水纹玻璃、低调沉稳大气的磨砂玻璃、绚丽多彩的炫彩玻璃等等,但我们今天来介绍一种新型玻璃,具有艺术气息兼颜值担当的“新宠”——树脂玻璃。
01.什么是树脂玻璃?
02.树脂玻璃的特性
03.树脂玻璃的应用场景
04.树脂玻璃的施工工艺
05.树脂玻璃的案例展示
01.
什么是树脂玻璃?

玻璃树脂是一种有机硅树脂预聚体的乙醇溶液,外观透明、轻质,可塑性极高,可容易弯曲,容易拼接,成为现代装饰材料的“新晋网红”。
a.规格
树脂玻璃的常规厚度为:3mm、5mm、8mm、10mm、12mm。版面尺寸为:1220mm*2440mm、1220mm*3050mm。(此规格来源于某树脂玻璃品牌,仅供参考)
b.表面纹理
纹理丰富多样,可根据空间风格需求定制,满足设计师多样化的设计需求,表面纹理有光面、沙砾面、哑光面、重磨砂面、珠面。

c.树脂玻璃和炫彩玻璃的区别
树脂玻璃和炫彩玻璃最本质的区别是二者的加工工艺不同。炫彩玻璃中间有一层幻彩膜,这种薄膜,高折射率和低折射率的金属氧化物涂层根据视角和日光条件产生鲜艳的颜色变化。

▲幻彩玻璃结构
而树脂玻璃是有一层颜色层,根据设计需求定制相应的色彩图案。

▲树脂玻璃结构
02.
树脂玻璃的特性
a.物理性能
坚硬透明、绝缘性能好,且具有耐摩擦、耐热、耐老化、耐辐射、低温不脆化、透光率强等优点。
b.重量轻质
重量是普通玻璃的一半,因此运输、施工更为便捷。
c.安全性能高
坚韧、抗冲击性强、不易破碎,使用寿命长。

d.健康环保
0甲醛、无毒、环保,是设计师青睐有加的新材料。
e.易加工
可任意切割、容易拼接,可根据设计效果任意拼接组合。

f. 可塑性高
任意弯曲、造型灵活,可用于空间的曲面造型。
g. 透光度高
晶莹剔透、色泽莹润,不仅可以增大采光面积,还可起到装饰效果,功能性与艺术性兼得。

h. 可根据设计需求定制
由于树脂玻璃的“颜值”很高,适用于多种风格,还可根据设计需求量身定制,为空间创造更多的可能性。
03.
树脂玻璃的应用场景

设计师在选择树脂玻璃时,通常考虑会用在这些地方,来营造空间的氛围感,如隔断、墙面、门。
树脂玻璃还可以用在软装(家具、饰品、灯具等)、艺术装置等。几乎无所不能,一句话总结:哪里都能用,到位!
a.充当隔断,分隔空间
树脂玻璃的质感使它成为了妆点空间的小能手,既能划分空间,又给空间增添装饰效果,一举两得。


b.摒弃传统墙面装饰,让空间更具高级感
打破传统墙面采用壁纸、涂料的设计,让墙面与众不同,让空间更具层次感。

c.代替传统玻璃门,让门更具艺术感
代替传统玻璃移门,让门不仅仅是分隔遮挡空间的作用,更是空间中的视觉焦点。

d.置入软装家具之中,创造灵动性
树脂玻璃独有的特性,使得在家具中发挥极大的作用,置入柜体、灯具、饰品等,点缀空间,更让每个单独的软装单品更具灵动性。


e.同艺术装置的结合,简直是“天作之合”
新颖的材料遇上独特的创意,才能碰撞出更具独特的火花。

04.
树脂玻璃的施工工艺
树脂玻璃的本质其实还是玻璃材质,因此,它的固定方式跟普通玻璃安装方法大同小异,掌握了普通玻璃充当隔断、饰面的安装工艺后,树脂玻璃的施工节点及注意事项也都掌握了,这就是所谓的举一反三,活学活用。
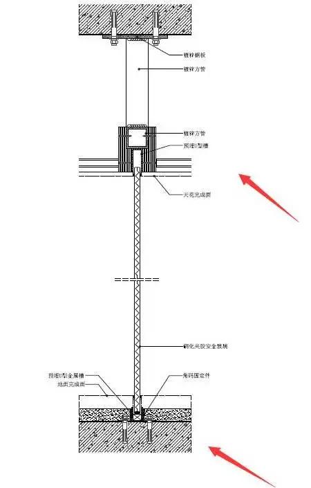
下面以玻璃隔断为例,讲解一下施工节点:
a.地面的金属结构做法

b.玻璃与棚面固定:U型金属槽加木结构


▲玻璃隔墙节点图
地面结构做法,与照片不同,但大同小异。棚面做法是一样的。节点图中,玻璃的厚度并没有标注,因为这个厚度是变量,做多少都对。10mm、12mm、15mm、19mm都是对的。夹胶玻璃、中空玻璃都对。树脂玻璃也是同样的道理。
再来个三维图怎么样?够直接吧,要的就是这是效果!

▲玻璃隔墙三维示意图
05.
树脂玻璃的应用案例
a.Siyanie葡萄酒吧
建筑的形状来源于马厩,立面由红色树脂玻璃构成,在夕阳下呈现出美丽的光泽,与周边环境形成鲜明对比,吸引行人的目光。



b.DECO·DECO2021展厅空间展示
通过色彩、形式的灵动自由组合,高低错落的层次感,将树脂玻璃多变、魔幻、有趣、灵动的特性,表现的淋漓尽致。



c.RUIMOCLUB展厅
空间采用弧形、曲面、重复等设计手法,将树脂玻璃的轻盈、美感塑造的更强,整个空间色彩协调、朦胧的空间氛围都表现的恰到好处。





文中部分图片源于网络和DECO · DECO树脂玻璃,如有侵权,请联系小编~
有关树脂玻璃的内容就先给大家讲解到这里了。下面,还是用一张导图来总结一下今天的内容:
