从福建工艺美院毕业后留在厦门,从事设计行业18年。设计源于思考,思考源于生活。人生跟骑单车一样,只有不断前进,才能保持平衡。设计师就像导演,但不是主角,创作上不能有太过主观的偏好,应该让自己跳出来,对每一个案子做不同的演出……

设计师:周裕霖
01 关于设计
坚持原则与梦想
不忘初心 尊重设计
谈及18年的工作时光,“坚持”二字很重要。
还在学校时,为了学习CAD这种专业软件,他自己买书租电脑自学。毕业后,打听到一家设计公司不错,在没有招聘会、没有投简历的情况下,凭着一腔热血,以及对设计的追求,他直接来到这家公司,提出应聘请求。
功夫不负有心人,在进行了一天的考试之后,他应聘成功。“要坚持,要去争取,不是说水平一定比别人强,但是你不去敲门,门不会打开。”机会是留给有准备的人。毕业这么多年来,有人改行,有人创业,但他坚持下来了,并且一直保持职业敏感状态,不断去探索挖掘,日常生活工作中,看到户外一个材质,他都会转动脑筋,思考如何运用到室内设计中来。
好的设计作品更看重空间的把握,合理的规划与布局。规避棱棱角角,让采光更好、收纳更多、通风更顺畅等,而不是停留于表面上材质的变化。
不忘初心,拥有一个好心态,这很重要。在很多人看来,设计师是一个高大上的职业,但当一名设计师不容易。面对业主,要耐心。形形色色的业主,专业度不同,需求也不一样,需要设计师耐心细细沟通;面对项目,要不忘初心,“项目有大有小,谁都想做豪宅,但设计师要有职业责任感,不要单纯为了赚钱才去做。”
尊重设计,这也是设计师十分看重的地方。他认为实景案例最能体现一个设计师的能力,因为实景案例不仅考验了设计师的效果图还原落地水平,也很大程度上能看出设计师是否具有思考与创新能力,还是一味的照搬照抄,没有自己的美感。
02 关于签单
比业主还上心
多一点真诚 少一点套路
开发一个客户,没有诀窍,唯有用心,做到比业主还操心与上心。从陌生人的第一次见面,到慢慢熟悉,再到最后的信任与完全依赖,需要付出什么?
他的工作习惯是:每天睡觉之前,一定要把微信过一遍,不遗漏任何一个信息;想到任何东西时,为了不忘记,也会第一时间发送给监理、助理、客户等。
获得业主的信任与尊重,是很开心的事。“人都是相互的,多下工地、耐心沟通,只要你付出了,让业主感到你的用心,而不单单只是为了成交生意而已,自然会慢慢积累回头客、做出口碑,而业主越信任,我们会越负责。”
多一点真诚,少一点套路。“业主依赖你,什么东西都会提前先问你一下,动辄发微信打电话,虽然很麻烦,但设计师很开心的。”
遇到客户不合理的需求时,耐心、细心的分析至关重要,设计一定是有原因的,为什么要这样设计,作为设计师,有责任有义务向业主说明。
曾有一个案例,业主想要将阳台包到室内来,但他母亲却十分反对,认为很晒,要装推拉门,母子俩剑拔弩张,互不相让。后来,他与业主母亲沟通,首先强调自己是来解决问题的,其次向业主母亲介绍装推拉门的影响,现在房子寸土寸金,阳台浪费了很可惜,刮风下雨时阳台更用不上,最后向业主母亲提出了解决方案,安装挡光玻璃,将窗帘往外移,双重遮挡之下,阳光柔和不会晒。
经过一番沟通之后,业主母亲理解了他的设计。
其实,大多数业主都是讲道理的,有的只是没有得到很好的沟通。“你不能直接强硬说,我觉得那样好看,这样好看,业主会觉得那是你觉得而已,不关他的事。设计师要让业主觉得关他的事,是帮他解决问题。”
03 关于年轻设计师
美感无法一蹴而就
戒急戒躁 保持一颗好奇心
设计要“悟”,就需要沉淀,去不断学习与创新,保持一颗好奇心。在设计行业,特别是年轻设计师,频繁跳槽,流动性大已然成为一个常态,这并不是什么好事。
诚然,有些年轻设计师、或者助理都很优秀,但是美感无法一蹴而就,不能过于急躁,会软件不意味着会设计。“软件可以学习,悟却需要沉淀,要靠自己对生活的理解,你没有对品质的理解,怎么去设计出有品味的空间。”而所谓的“悟”是软件或者设计模板无法替代的,材质可以替换,但是思考与灵魂却照搬不了。“比如灯光设计,哪里该打,哪里不该打,哪里是冷光,哪里是暖光,这个是软件无法做到的。”
设计源于生活,中间应该加入“思考”。因为设计师是在创造生活,灯光系统设计、空间动向规划......这些就是思考,让设计更好为生活服务,让设计空间更有灵魂与品味。而思考来源于生活,来自于生活的细节观察、探索、挖掘、积累。
在日常工作生活中,他会尽可能地参加沙龙活动、论坛分享会等。“可能有人觉得那种大场面得不到什么东西,但他们都是大师,做过很经典的项目,我们可以学习他的设计理念与设计思维,开阔自己眼界。因为好的案例是具有启发作用的,而不是告诉你这个材质有多高档,大思维才会有大作为。”
建议设计师营销性质不要太强,年轻设计师要有追求,在有东西的基础上力求完美,在没有东西时不能无中生有。面对互联网的冲击,要提升自己的能力,通过学习好的案例、旅游、体验等,增强对空间的理解,提升审美等。
04 关于装企平台
好平台成就事业
靠个人魅力 个人品牌也难长久
平台非常重要,也非常有价值。没有强大的平台和团队支撑,个人品牌也难长久。设计师个人的成长和水平发展离不开装企平台所给予的学习和提升空间,以及为达成项目落地而配备的系统性支撑,还有各种保障机制。同事间的相互鼓励、合作、学习、分工,相辅相成,共同向上,力量才会更强大,光靠个人魅力是远远不足的,最后就会感到很吃力。
团队成员间的相互协作以及学习能力也是非常重要的。2002年,他从福建工艺美院毕业后选择留厦,拥有18年丰富工作经,只在两个平台工作过。在第一家公司工作5年后,他来到了好易居装饰,一干就是13年。期间,曾进修清华大学空间环境高级研修班,不断提升和丰富自己的设计专业修养和理论高度。
在好易居装饰的13年里,他收获了很多:从未婚到已婚,到如今已是两个孩子的爸爸。这里承载了太多的记忆,大家一起成长,慢慢像合伙人一样,变成共同的事业。
当然,作为装企平台能否留得住员工,这也是衡量其是否值得信赖的重要标志。“如果公司人员很稳定,一直都是一些‘老面孔’,时间长了可能大家看都看腻了,却能足够地证明这个平台不错。相反,如果其口碑不好、管理不好、业绩不好,人早就走光了……”
一个人,一生能有几个十年?大家能在一个企业工作10年以上,除了浓浓的情谊,不断沉淀的工作经验外,心态也发生了很多变化。不管是对生活的追求,还是对设计的态度,在熟悉的人面前,都会让你打开无限的心扉,从而产生更奇妙的火花灵感,让工作更顺利,生活更美好。
设计师简介
周裕霖

任职单位:厦门好易居装饰有限公司 设计总监
毕业院校:
福建工艺美院
清华大学空间环境高级研修班
从业时间:18年
设计理念:设计源于思考,思考源于生活。
职称:
国家二级建造师
国家注册高级室内建筑师
中国建筑协会室内设计学会会员
中国室内设计协会高级室内设计师
中国建筑装饰协会高级室内陈设设计师
曾获得:
2009年广州设计周“金羊奖”
2009年“罗马利奥杯”中国十大设计师
2010“金意陶杯”设计新锐大奖赛华南大区三等奖
2012年首届厦门室内装饰设计大赛金奖
2014第十届中国CIDA国际室内设计双年展空间奖
2015年IEEA国际生态设计奖
2016年第八届中国照明应用设计大赛优胜奖
……
代表作品:
晋江太子酒店、龙岩中元大酒店、厦门戴尔写字楼、厦门东方时代广场、厦门港澳中心会所、厦门金山财富广场、厦门国际山庄别墅、晋江浔兴·奥林春天、浔兴·会所中心、厦门翰林苑别墅、角美圣地亚哥别墅、厦门自来水调度大厦、新新地产、唐氏地产、芸溪居住公园、福州领域会所、石狮别墅、爱琴海、国贸蓝海、晋江奥林春天别墅、七星公馆、源昌国际城、瑞景公园、巴厘香墅、东方高尔夫别墅、云顶至尊、皇府御园、新景国际外滩、新景缘、高峰会、宝龙御园、湖滨首府、杏林湾一号、国贸天琴湾……
2020第四届厦门十佳设计作品评选·参评作品
参评项目简介
[装修单位]:厦门好易居装饰有限公司
[楼盘名称]:厦门海沧绿苑别墅
[建筑面积]:370m²
[工程造价]:280万元(全包)
[主要用材]:大板砖、墙布、原木、木纹砖、实木条、黑钛钢……
[灯 光]:以聚光点光源为主,突出重点,冷暖色调的基础上看上去更有空间感。
《尘缘·绿苑别墅》
以现代简约为主题
加上中式的设计元素
相互交融
让人倍感舒适和恬静
以简洁明快的设计风格为主调
配以简单线条造型
营造简洁而不失优雅的品味
让人拾获精神和身体层面的放松和愉悦
简洁和实用是现代简约风格的基本特点
适度装饰是家居不缺乏时代气息
能紧跟时尚的步伐
满足现代人混搭的乐趣
……

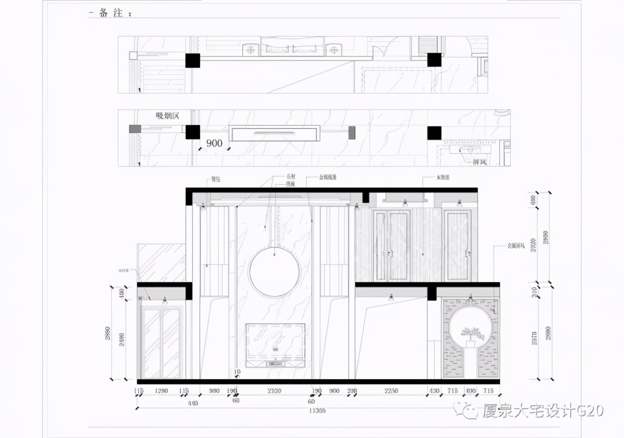
电视背景

客厅

沙发背景

餐厅

泡茶区

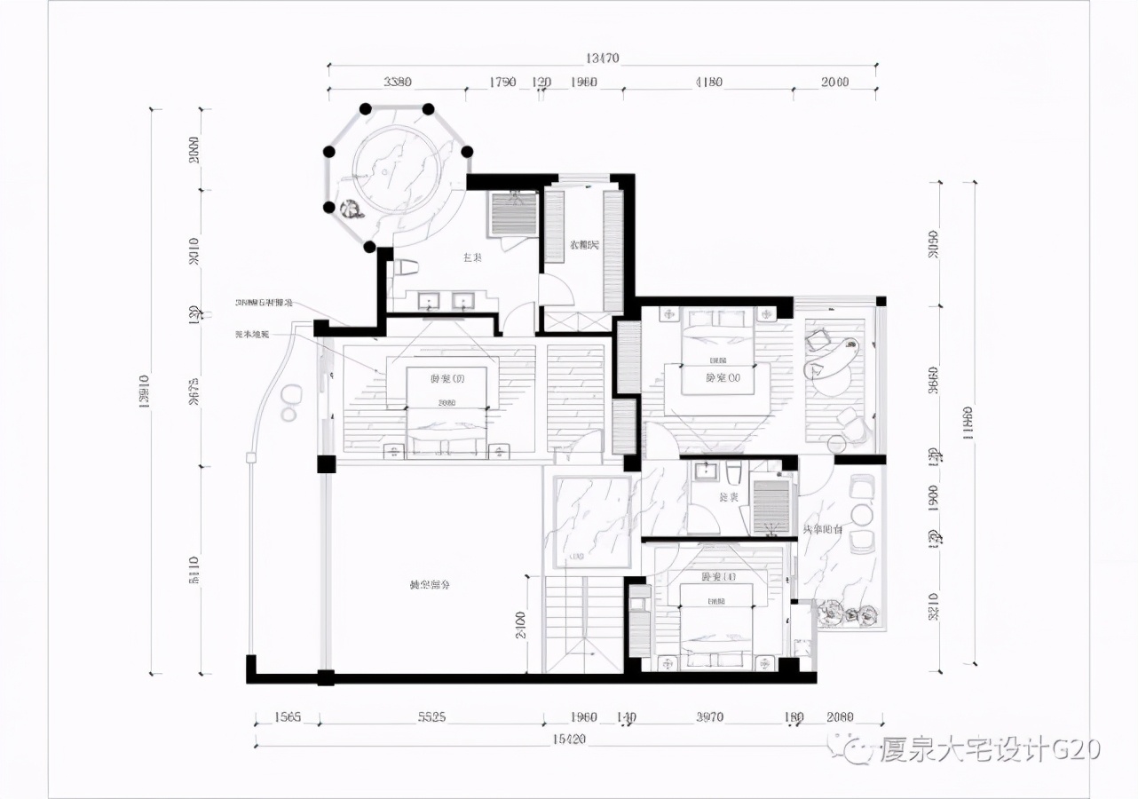
一楼卧室

二楼卧室

二楼男孩房

二楼主卫

三楼主卫

床头
设计亮点
在总体布局上,尽量满足业主生活的需求,主要装修材料以大规格瓷砖、石材、木饰面、壁纸为主,以木头的优美含蓄、砖和壁纸的朴素大方来装饰墙面,更体现现代简约之感,创造一个温馨、健康的家庭环境。
在功能方面,客厅是主人品味的象征,体现了主人品格、地位,也是交友娱乐的场合,入户的玄关做了一面中式造型的金属屏风,既有现代感,又体现主人的高雅品味,还与室内划分开,通透,扩大视线上的空间感。电视背景墙采用石材做的几何造型,既简单又大方,配上墙壁造型里的灯光,整个电视背景墙把客厅提升起来。沙发背景墙只做了简单的处理,用水墨画图案硬包配以线条装饰,使空间更有韵味。餐厅是家居生活的心脏,不仅要美观,更重要是实用性、整体性。餐厅的灯光很重要,以温馨暖和的黄色为基调,顶部用线条造型做了细节的处理,使整个空间更加精致有内涵。
项目平面图

一楼

电视立面

二楼

三楼
《海峡导报》特别报道
2020年09月23日第08-09版
