太原“综改区(小店南区域)”、“汾东商务区”的热度,从恒大、宝能入驻以后就一直没有降过,并且随着中海、保利、招商的进入,有越来越热的趋势。为什么这个区域的热度这么高?为什么这么多品牌开发商纷纷入驻这个区域?这个区域的房子到底能不能买?本文不去过多探讨综改区(小店南区域)和汾东商务区的未来,因为大家有各种渠道可以看到类似的文章,可能已经眼疲劳了。本文仅分析保利时代、中海寰宇时代、招商时代主场这三个项目自身和各自的优劣势,希望能给打算在这个区域安家置业的朋友带来帮助。文章约2600字,阅读时长约6-7分钟。
一. 位置
小店南,综改区、汾东商务区,潇河产业园区以北。
二.交通
四横: 汾东大街、化章西街(化章街)、正阳街、通达街。
七纵: 滨河东路、汾东南路、人民南路、真武路、坞城南路、太太路(唐槐路)、马练营路。
地铁:二号线、二号线南延(规划中)。

三.区域配套
1.公建配套: 山西省综改区管委会、山西省工业和信息化厅、山西计量科学研究院、中国移动山西有限公司、山西国际物联网产业园区、山西省疾病预防控制中心等。
2.医疗: 太原市中心医院(汾东院区)、小店区妇幼保健院等。
3.商业: 万马仕商城、巴克创奇梦工厂等。
4.自然景观: 和谐公园、汾河公园等。
5.教育: 清华附中、小店区一中、小店区三中、汾潇中学、汾东中学(建设中)、育才小学、北京闻励太原实验小学、尊成公学、九一学校等。

6.品牌项目: 招商时代主场、保利时代、中海寰宇时代、宝能城、恒大金碧天下、阳光揽胜、太原碧桂园等。

四.项目简介
1.户型
招商时代主场:
88㎡两房一卫/112㎡三房一卫

126㎡三房两卫/142㎡三房两卫

中海寰宇时代:
88㎡两房一卫

101㎡/103㎡三房一卫

119㎡/126㎡三房两卫

142㎡四房两卫

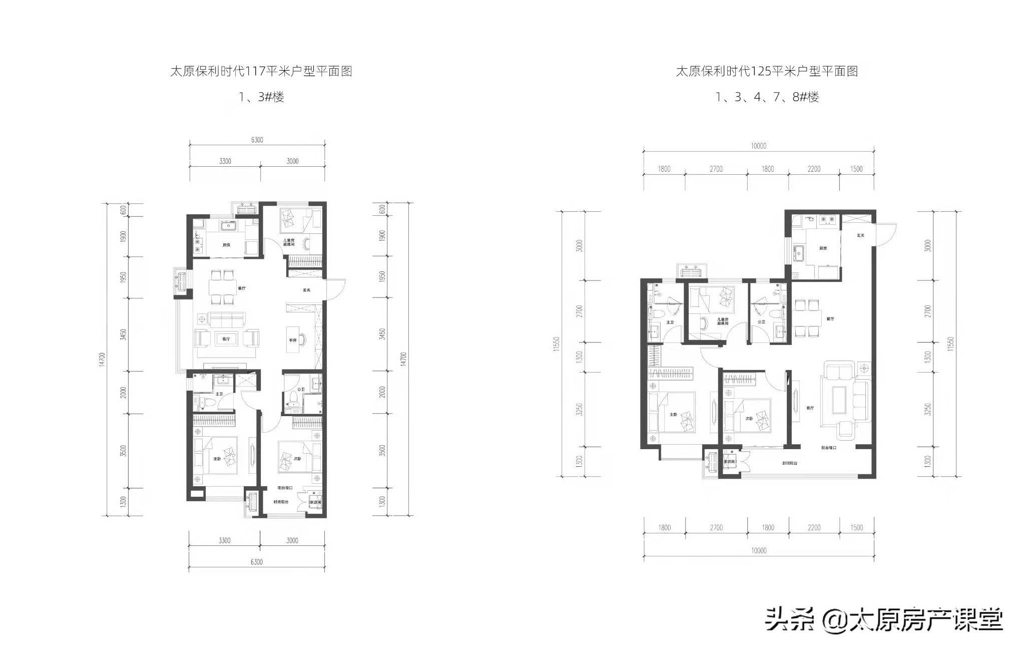
保利时代:
100㎡/105㎡三房一卫

117㎡/125㎡三房两卫

2.装修
招商时代主场:全装修交付,送全屋热水、全屋净水、全屋壁纸。
中海寰宇时代:全装修交付。
保利时代:毛坯交付。
3.商业
招商时代主场:项目一期自身配套66000㎡社区商业和风情商业街,足够满足日常所需。
中海寰宇时代:项目自身配套底商,能满足日常所需。
保利时代:无大型商业配套,仅社区底商,可满足日常所需。
4.教育
招商时代主场:已签约青年路小学,项目另配建一处约160亩的教育用地,小初高一站式教育体系。

中海寰宇时代:一期南侧规划一处教育用地,但尚未签约学校。
保利时代:项目内规划一所幼儿园、一所小学,已与太师三附小签约。
5.价格
招商时代主场:均价约10800元/㎡。
中海寰宇时代:单价约11500元/㎡-12000元/㎡。
保利时代:均价约9500元/㎡。
6.定位
招商时代主场:刚需+刚改。
中海寰宇时代:刚需+刚改。
保利时代:刚需。
7.交房时间
招商时代主场:2024年6月底。
中海寰宇时代:一期:2022年12月底;二期:当前在售楼栋交房时间为2023年6月底。
保利时代:2023年10月底。
8.施工进度
招商时代主场:正在桩基施工阶段。

中海寰宇时代:一期多数楼栋已建至十层左右,二期在售楼栋部分建至四层左右,部分刚出地面。

保利时代:正在桩基施工阶段。

9.舒适度相关
招商时代主场:项目总占地约2000亩,一期占地约170亩,共规划栋楼14栋住宅楼、一条独立商业街、一所幼儿园以及一所小学。临近商业街和学校,生活接送孩子都很方便。一期住宅规划总户数2144户,容积率3.5左右,绿化率约35%,因为靠近汾河,且后期规划有公园和康养社区,居住舒适度较高。

中海寰宇时代:项目为杨庄村城改项目,总占地约500亩,共分三期开发,总规划60余栋楼,一期规划19栋住宅楼,二期规划24栋住宅楼,均为总高17层的小高层,容积率2.3左右。居住舒适度较高。

保利时代:项目总占地150余亩,体量较小,被汾东大街分为南北两个区域。南侧规划8栋住宅楼和一所小学,北侧规划8栋住宅楼和一所幼儿园。绿化率约35%,容积率约为3.76,居住舒适度中规中矩。

五.优劣势分析
1.优势
招商时代主场:项目是招商蛇口进入太原的第一个项目,开发商实力雄厚,母公司招商局,是资产规模达十万亿量级的央企;装修标准高,赠送全屋热水、全屋净水、全屋壁纸;家门口就有商业街,日常生活便利;类比其他两个项目,价格不高;开盘前两个月已经签约青年路小学,学校已开始施工,上学有保障;约160亩的独立教育地块土地已拍下,小初高都有,未来教育资源很丰富。

中海寰宇时代:项目是中海开发,均为小高层,居住舒适度高;中海在太原口碑较好,中海国际社区是现象级的“神盘”;项目周边已较为成熟;交房时间早。
保利时代:毛坯交房,可以根据自己的喜好,随心装修;项目体量适中,交房时间几乎可保持一致,不用在入住以后还承受长时间的施工噪音影响;小学已签约,解决了大多数刚需群体对小学教育的需求;离地铁的距离是三个项目中最近的;均为刚需三居,价格较低。
2.劣势
招商时代主场:交房时间较晚;离市区距离较远,已临近潇河产业园区;总规划体量大,开发周期长,一期交付以后可能会长时间承受剩余地块施工噪音影响。
中海寰宇时代:暂未签约学校,如果家里有孩子上小学,慎重考虑;周边无其他居住区,多为厂区,生活气息不够浓厚;类比其他项目,价格不低。
保利时代:毛坯交房,可能在很长一段时间内,都要承受邻居装修噪音的影响;小学在南区,北区的业主孩子上学需要过一个大的十字路口;没有两居室户型,如果需要两居,这里不适合。
六.是否值得入手
山西综改区的热度,还将会持续非常长的一段时间,因为山西经济要发展,就必须转型,而小店南侧的综改区便是主战场之一。这里云集了各类高新技术企业、物联网产业园以及高端装备制造企业,产业支撑非常雄厚。
就在前几天(7月22日),《*共中**中央 国务院关于新时代推动中部地区高质量发展的意见》的发布,让全太原乃至全山西人看到了经济腾飞的希望,因为“意见”中数次提到了山西经济转型,而作为山西经济转型的主引擎-山西转型综合改革示范区,其发展值得期待。

回归到我们普通购房者,我们应该怎么选?
在我看来,一切要从自己的需求出发。任何房子都是有好有坏,没有十全十美,我们要做的就是找准自己的需求,了解清楚自己的预算,再看哪些房子适合自己。如果一套房子的缺点你也能接受,优点你很喜欢,预算也足够,那这就是适合你的房子。
当然,如果你有购房打算,我更建议你多去了解一些项目,整体对比之后再做决定。切记不要盲目跟风,汝之蜜糖彼之*霜砒**,适合自己的,才是好的。
你觉得这三个项目怎么样?欢迎留言讨论。
关注@太原房产课堂,看更多楼盘测评。#山西##太原##太原头条#
注:本文所有时间节点,均截止到发稿前。