





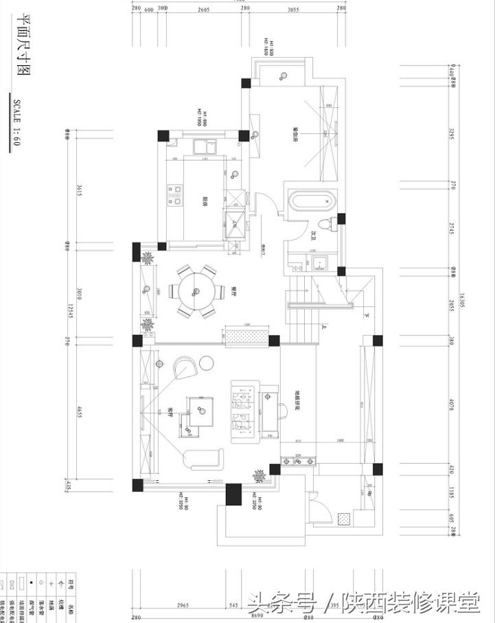
装修费用:大概60万左右
总面积包括地下室:250平
橱柜、壁纸和瓷砖都在佳好佳定的
地板、房门是在第六空间定的
餐桌和三人位功能沙发是在欧亚达定,其他大部分家具和灯具是在网上设计师选的,包括后期的软装(装饰画是{人然}老师提供的)
房门:德诺木门
橱柜:百合(卫生间洁具柜和所有柜体的门板也是他们家定的)
墙纸:西雅图
地砖;LD
餐桌和三人位沙发都在芝华士定的(餐椅网上选购)
电视背景荷花是人然老师现场画上去的
还有帖子里大家都说到的书籍都是我们家女主人买的,不过的确是真书。她有自己的禅院这方面有爱好!(关于是否破坏了美观,这么多书也只能放客厅了)





我现在也相信好的设计师也会帮你在预算上做把控。写了这么多前期的经历是为了让大家知道前期设计师的选择是至关重要的,因为这是第一步。(对于设计师的作用我认为是在你没有方向有疑虑的时候他会给你专业的意见让你做出正确的选择,他们对于整体的把握很关键)现在我们已经住了大半年回到家很放松,其他功能性都是按照我们的生活习惯来安排的,用起来很顺畅。感谢设计师也感谢装修师傅们和工程监理。(工程监理让我对施工质量更放心,也省了很多时间和精力也是至关重要的)装修前期看似设计、施工、质量监理很细化感觉很麻烦要找那么多单位去了解,再确定。但是细化了后期的时间和精力能省下来不少。












































更多案例搜【西安装修课堂】关注