一、易漏点分析
1、玻璃幕墙在展现出其特有的层次感的同时,也因其断面接触缝隙长度过大,频繁出现不同截面更替变换的龙骨布置,增大了幕墙渗漏机率。做好其防水封堵的工作也变的尤为复杂。横竖龙骨交接点如下:
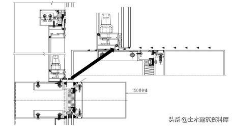
易渗漏点1:
150竖龙骨与150横龙骨接口节点,室外侧龙骨接触缝隙为150mm,部 分区域安装开槽增加渗漏点。

易渗漏点2:
150竖龙骨与65横龙骨接口,横龙骨通过玻璃 副框粘结玻璃面板,密封形式的改变在 明框龙骨处易产生接触缝隙,产生渗漏点。

2、开启部位出现在150龙骨与65龙骨分格中间,上下玻璃出现镶嵌的200外装饰扣盖。外装饰扣盖的“接水作用”易形成滴水现象及积水现象,会增加了封堵的难度。存在漏点隐患。
易渗漏点3:
开启扇上口位于大装饰扣盖下侧,此 时外装饰扣盖会起到屋檐的作用,雨 水会顺着扣盖外皮流淌至开启扇上口 位置。

易渗漏点4:开启扇下口位于大装饰扣盖上侧,形成 积水区域,造成渗漏。

3、玻璃幕墙收口采用石材造型收边。石材与龙骨接触节点如下:
其中容易产生渗漏点的出现在女儿墙收口及石材吊顶收口处,幕墙收边收口部位,一点漏则全盘输。

4、竖龙骨变形缝系处,存在空腔,形成雨水通道。将室外雨水引流至室内,形成渗漏。

二、渗漏点位置控制措施

渗漏点一:
1、室内封闭:
针对明框龙骨交接缝隙过长的现象, 在节点设计过程中,室内增加柔性防噪垫片,用来弥补切口的凹凸误差,将链接缝隙消耗在垫片的塞堵中,安装面板前将龙骨缝隙处进行注胶处理。

2.室外装饰扣盖严格控制下料径里尺寸。将结构缝隙控制在2-3mm,方便胶缝处理。

渗漏点二:
1、竖龙骨横用位置因在龙骨外侧开设50*50工艺孔,存在漏水隐患。此处采用50*50下角料铝片加注胶封堵,将内侧空腔与室外隔离,防止渗漏。

工艺孔封堵,注胶密封
2、因玻璃副框与竖龙骨存在接触缝隙,传统外扣盖处打胶的封堵方式无法保证完美封堵。 在玻璃与主龙骨链接耳朵间注胶,配合横向隐框胶缝,围绕面板和型材形成闭合胶缝。每一玻璃单元自形成封闭系统。

完成第一道”隐框”密封,结合外扣盖的第二道密封有效的保证大面面板的防渗漏能力。
漏点三:
因室内横龙骨安装位置为水平放置,外装饰盖通过压块链接后,呈水平放置效果。
外侧雨水被横向龙骨拦截后会顺龙骨外皮流动,因为不存在泛水坡度,在外侧风力作用下雨水会流淌至开启扇上侧,继而进入室内。
影响因素:因外装饰扣盖与两侧竖向扣盖外平齐平,略有偏差即影响视觉效果。故设置装饰扣盖的泛水坡度效果不佳。
解决方案:开启扇上侧有U型压块,通过优化设计增设披水胶条卡槽,更换掉平头压块。通过披水胶条进行雨水阻挡。阻断雨水进入开启内部。

漏点四:
开启位置位于大截面外扣盖上侧,外扣盖起到接水作用,容易在开启框根部产生囤积现象。
由于无法进行泛水坡度处理,采用在开启框与主龙骨连接处注凹形胶缝,形成泛水坡度。

漏点五:
1、外立面设计中将石材幕墙与龙骨外扣盖完成面齐平,雨水可以无阻碍的在石材幕墙与玻璃幕墙间流淌。

2、玻璃幕墙在最外侧有一圈完整的龙骨扣盖环绕。横向位置龙骨采用通常6米原料,严禁断开使用,通过这样的做法可以避免出现龙骨上的“朝天缝”,将缝隙数量降到最少。杜绝渗漏。

漏点六:
墙体与龙骨接触处内侧采用设置镀锌钢板进行封堵,缝隙处注胶。隔断室内外连接,石材内空间与铝龙骨腔体形成等压腔,防止雨水随风压变化进入石材内部,流淌至室内。

三、总结:
横梁安装需根据出具的龙骨布置图,在竖龙骨上逐个进行打孔安装,严禁通排打孔,以致出现室内漏孔现象。横梁与竖龙骨连接位置需要注密封胶。
开启框安装需要在完成横龙骨注胶之后,开启框室外侧周圈注胶。注胶完成后再进行开启扇安装,严禁工序倒置。
开启扇加工过程中三元乙丙胶条45度碰角位置需要注胶,预留长度10%,严禁产生拼接缝隙。