近日,双桥城志畅悦园迎来了新居民的入住,这个万众期待的共有产权商品房项目终于正式交付,前段时间发布了《刚刚交付!走入双桥这个准商品房新小区内部!》的文章,今天双桥地区公众号带你走入小区占比最高的89平两居户型,看看这处刚刚交付的共有产权新房内部到底长啥样!

ㅿ欢迎回家字样的剪纸布满了楼栋门窗,洋溢着一片喜气洋洋的氛围。

ㅿ每一个单元同时并排安装了两部电梯,方便小区居民快速乘降。

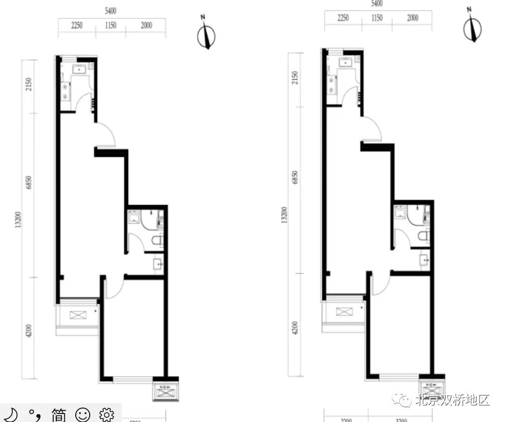
ㅿ64平户型图,89平两居与厨房并排增次卧和壁橱

ㅿ客厅和阳台

ㅿ客厅和阳台另一侧,餐厅和客厅是连为一体的。

ㅿ阳台窗户安装了护栏,确保最大的安全性。

ㅿ主卧室

ㅿ次卧室

ㅿ厨房

ㅿ抽油烟机和灶台

ㅿ抽油烟机和灶台

ㅿ卫生间比较小

ㅿ特别划分出来了淋浴区

ㅿ房间内设置了壁橱

ㅿ壁橱面积着实不小

ㅿ开关和门禁系统