好户型是家的起点
哈喽,今天带来的户型是个叠拼户型,叠拼也有很久没说了,今天说的叠拼180平,8.18号写了一篇180平的顶复,大家正好可以对比一下,下面我们酒一起来看一下这个叠拼户型。
01
家庭结构及需求:
居住人口:男女主人,一个孩子偶住,两个老人偶住,一只狗子。
业主需求:想要厨房大一些,有喝茶弹琴乐器瑜伽的地方,有一个独立的衣帽间。
02
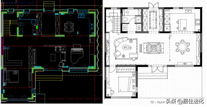
原始户型分析图一层:

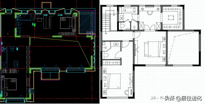
原始户型分析图二层:

这种叠拼,且几乎可以说是二人世界的生活,户型功能上来说不会有太大的问题。从户型基础上来说,这个叠拼很方正,采光和通风也都很大,还是很不错的,这个户型我们主要做的是如何能够让这个户型做出精致,仪式感,让户型居住的更加舒适。
03
方案分析图一层:

一层主要还是对于家庭活动空间进行了规划,下面我们把重点的部分给说一下。
1. 入门衣帽厅,两边高柜,一边放鞋子衣服,一边放吸尘器扫地机器人的柜子,中间可以放地毯,瓷砖拼花等。再往里我们在中间放置了一个欢迎桌,中间是装饰,两边放沙发,自然形成一个景,仪式感十足,也会组织起交通交通,形成一个环绕交通。
欢迎桌意向图


2. 欢迎桌左右两边一边是家庭室,一边是餐厅。家庭室我们用异形沙发和单人沙发加茶几围合而成,可以会客聊天喝茶。一边利用欢迎桌的沙发,前面放古琴,形成演奏厅。另外一边靠墙放了电视可以作为会客的背景音,利用下水,可以做出水吧台,方便喝茶。再利用一整面空墙*爱做**好展示墙,放乐器,展示品等等。
爱好展示墙意向图


3. 餐厅部分我们放了六人圆桌,家庭朋友聚会更方便一些,一边靠墙高柜,一边靠着窗户放了矮柜,都可以作为餐厅的收纳。厨房是做了U型台面加中岛台,中岛台后面做了电器高柜,中岛台也可以作早餐台使用。
方案分析图二层:

二层主要做的事家庭的休息空间,我们也把重点的地方给说一下。
1. 二层主要做的事两间套房,主卧套房可以说是非常的豪华了。走道进来是主卧室,一张双人大床,两个床头柜,空间尺度非常大。北向对开门打开是一个采光非常好的化妆间,化妆间的左右两边一边是不步入式中岛衣帽间,一边是星级酒店套房的卫生间做法,四件套的卫生间,马桶间和淋浴间可以用玻璃隔,也可以砌墙。
04
收纳示意图一层:

收纳示意图二层:

05
方案对比图一层:

方案对比图二层:

06
平面尺寸图一层:

平面尺寸图二层:

尺寸还是依旧给大家上的格子图,一个方格30cm,大家可以数一下格子。
以上是咱们今天的全部内容了,如果觉着改动还不错,可以扫描下方二维码关注我们vx公众号,里面有更多的案例以及装修知识干货。

来《居住进化》做设计
成就家的幸福