今天给大家推荐的是来自爱空间广州认证设计师@曾健的真实案例,擅长艺术设计和色彩搭配的他,分享的设计理念叫《满庭芳园》!

「广州设计师:曾健」
擅长:田园风、现代简约、北欧、轻奢
毕业于室内艺术设计专业,从事室内设计5年
「设计理念」设计源于生活,有温度,有情感
这是设计师为胡先生设计的家,坐标广州,房子是为4岁的儿子以后上学买的,89平三室一厅,一家三口在这里居住。
胡先生是一名职业插画师,热爱大自然的他喜欢旅行、种植花草,文艺范十足,太太在银行工作,热爱烹饪,生活比较随性,胡先生对装修最基本的要求,就是经久耐看,哪怕到夫妻俩四十岁、儿子上了中学,也依然喜欢这间房子,所以选了偏稳重的美式田园风格。
户型 3室
风格 美式田园风
实用面积 89平米
房屋位置 燕东大厦
所有图片/描述均来自「爱空间」

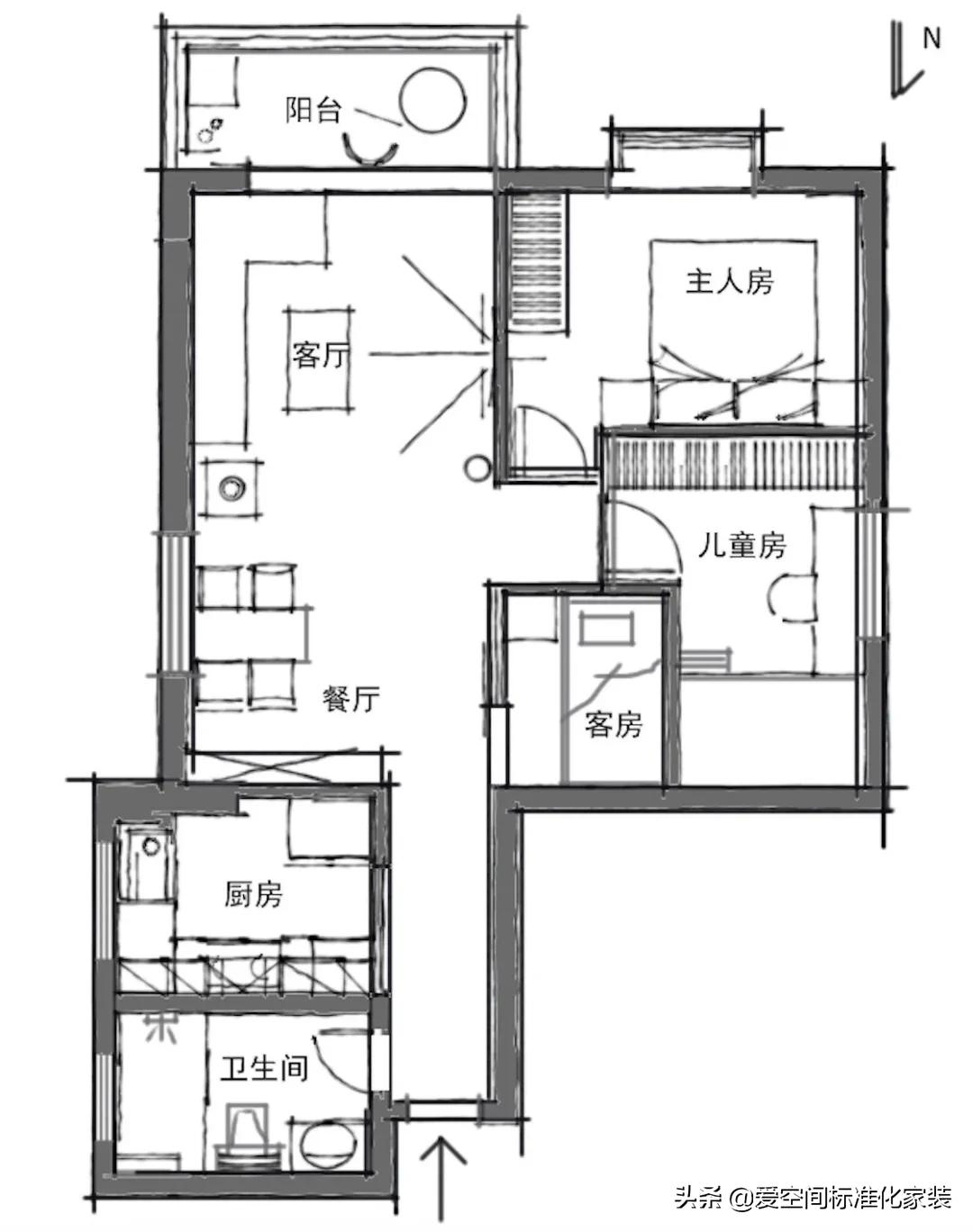
原户型是一个两室一厅,因为胡先生日常和太太孩子一起居住,工作比较忙,奶奶经常过来带孩子,于是改为三室一厅,次卧空间内增加了一间客房,主卧的门朝向进行改变,厨房进行了全包式处理。

原始户型图

改后户型图

3D效果图


原始的户型,进门没有柜体储物,因为房型的关系,设计师把玄关的鞋柜放在进门的左手边,柜体上面放包,下面打开是鞋柜,这样做的好处是鞋柜不挡厨房和卫生间的门,活动起来更方便。


客厅阳台视角

进门客厅视角
从玄关处走进客厅,简洁明快的大自然小清新扑面而来,墙面的碎花挂画和盛放的小雏菊地毯是美式田园的灵魂,白色系布艺沙发最适合搭配原木色茶几,上面的木纹还格外清晰,电视柜也偏向原木风格,随意中透露着温馨。

△「细节设计」
沙发一角加进来一个收纳柜,白色台灯仿佛一件陈列的艺术品。夜晚时分,关上吊灯打开台灯,胡先生喜欢靠在这里画插画。


有人说餐厅布置的太精致,像样板房一样不真实,但胡太太想从小培养孩子优雅绅士的礼仪,餐厅和厨房之间原本是一个宽大的门洞,但设计师觉得,透过玻璃门能看见冰箱侧面,不美观,于是把餐厅和厨房分隔出来,同时还阻挡了炒菜做饭的油烟味。

△「细节设计」
百叶窗设计非常有讲究,这款原木质地的窗帘,配上绿色的吊灯,光是色彩搭配上就很像插画,在这种环境下吃饭,深呼吸都能闻到草木清香。


说起田园风,碎花墙纸必不可少,以往的白色百搭墙面在这里就要失宠了。棉麻的床上用品回归自然,浅绿色的衣柜更显灵气,这个房间的色彩搭配内行人都赞不绝口。

△「细节设计」
背靠碎花墙面,自拍都觉得艺术。床头柜一层做收纳二层做半开放式书柜,这样设计的好处是,躺在床上取二层东西时,手臂不需要费很大力气。


原始户型中没有这间卧室,次卧是设计师改造出来的,方便奶奶带孩子住,空间相对小的情况下,背景墙选用米黄色,单色的视觉效果会看起来空间更大,米黄色会比纯白色看起来更温馨。


终于来到小朋友房间啦!这间儿童房设计非常卡通,林先生的宝贝小学二年级,住在这里特别开心,无论是小蜜蜂吊灯还是上下铺,都是孩子的乐趣,鱼尾式窗帘更增加了房间的活力,一层的床铺墙壁上还有一个简易的小书架。


厨房整体设计实用简单,橱柜上层留出一个放小家电的凹槽,不占用下面的位置,墙面配上爱空间人气爆款花砖,更加精致了,橱柜吊顶,增加了储物空间,悬挂式存储厨具,风干效果好还避免细菌滋生。


卫生间干湿分离,沐浴间地面采用磨砂地板,防止洗澡时滑倒,洗澡产生的水汽能锁在浴室里,再也不会到马桶和洗手台那儿“串门”,洗手台两边设计了收纳柜,拿啥都方便。


阳台在客厅一角,设计师尽可能利用一切角落,阳台收纳柜左边是包住墙角做成的,拥有清洗区,右边用来放洗衣机,洗完直接可以晾衣服,不用从卫生间把湿衣服拿出来。


「田园风」格是通过装饰装修表现出田园的气息,不过这里的田园并非农村的田园,而是一种倡导环保、贴近自然,展现朴实生活的气息的家居风格。
田园风格如何装修?
4个小要素悄悄告诉你:

(此处已添加小程序,请到*今条头日**客户端查看)