小明的故事:
小明在编制一个模板时,梁侧模板设置中,把所有梁都有设置了对拉螺栓,并且配了相关的验算书,当把方案放到现场实施时,结果工人不干了,说不合理,硬要增加人工费,小明看了方案与验算,并没有错误啊,到底是哪里不合理了?您知道怎么优化呢?
梁侧小梁为50*100木方@250,对拉螺栓M14@500
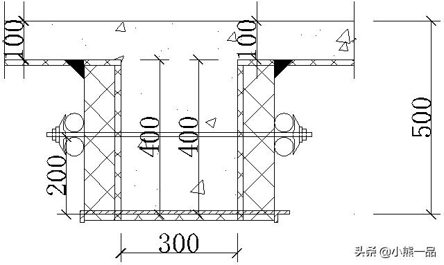
1、300×500梁侧设计,设置1排对拉螺栓,图如下:

300×500梁侧设计
2、300×800梁侧设计,设置2排对拉螺栓,图如下:

300×800梁侧设计
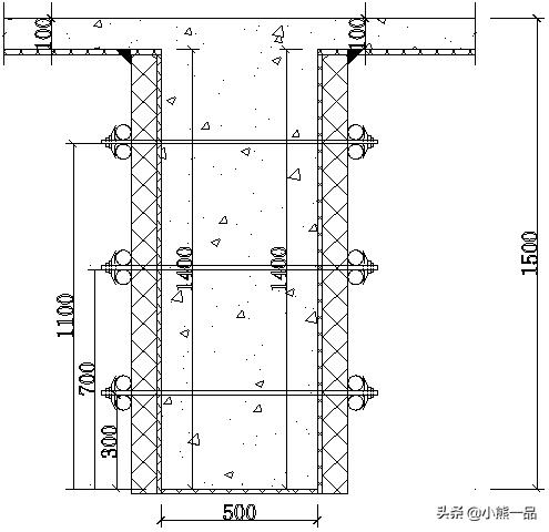
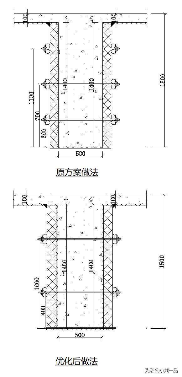
3、500×1500梁侧设计,设置3排对拉螺栓,图如下:

500×1500梁侧设计
优化方案
小明把方案与我讨论后,验算等参数并没有什么问题,材料使用率过低,说人话是太浪费材料了。
1、300×500梁侧设计优化为不设对拉螺栓,常规情况600及以下梁可以不设置对拉螺栓,比原设计节省了一排螺栓,此种梁在工程大量存在,节省的材料非常多,人工也节省很多。

2、300×800梁侧设计优化为1排对拉螺栓,常规情况700~1000梁可以设置1排对拉螺栓

3、300×1500梁侧设计优化为2排对拉螺栓,常规情况1100~1500梁可以设置2排对拉螺栓

在方案优化后,老板省钱,工人省时,小明的水平也得到质的提升!
您觉得做优化合理么,或者还有其它的优化建议么?