更多文章可关注同名公众号,谢谢!
这是洋楼记的第2篇原创探盘文章,觉得有用可以转发到周边的朋友以及购房群,捎给更多迷茫的购房人。
导语:
新中式建筑、美里湖片区,老城改善盘、产业汇集,配建小学、地平置业继西棠甲第后再度落子槐荫,西棠观樾究竟会开出什么价格?
因房产是大宗交易,购买需慎重。所以本篇文章篇幅较长——本篇测评包含项目简介、片区探究、周边配套、项目优劣以及简要总结,购房者也可直接拉至想了解的部分浏览。

1
项目介绍
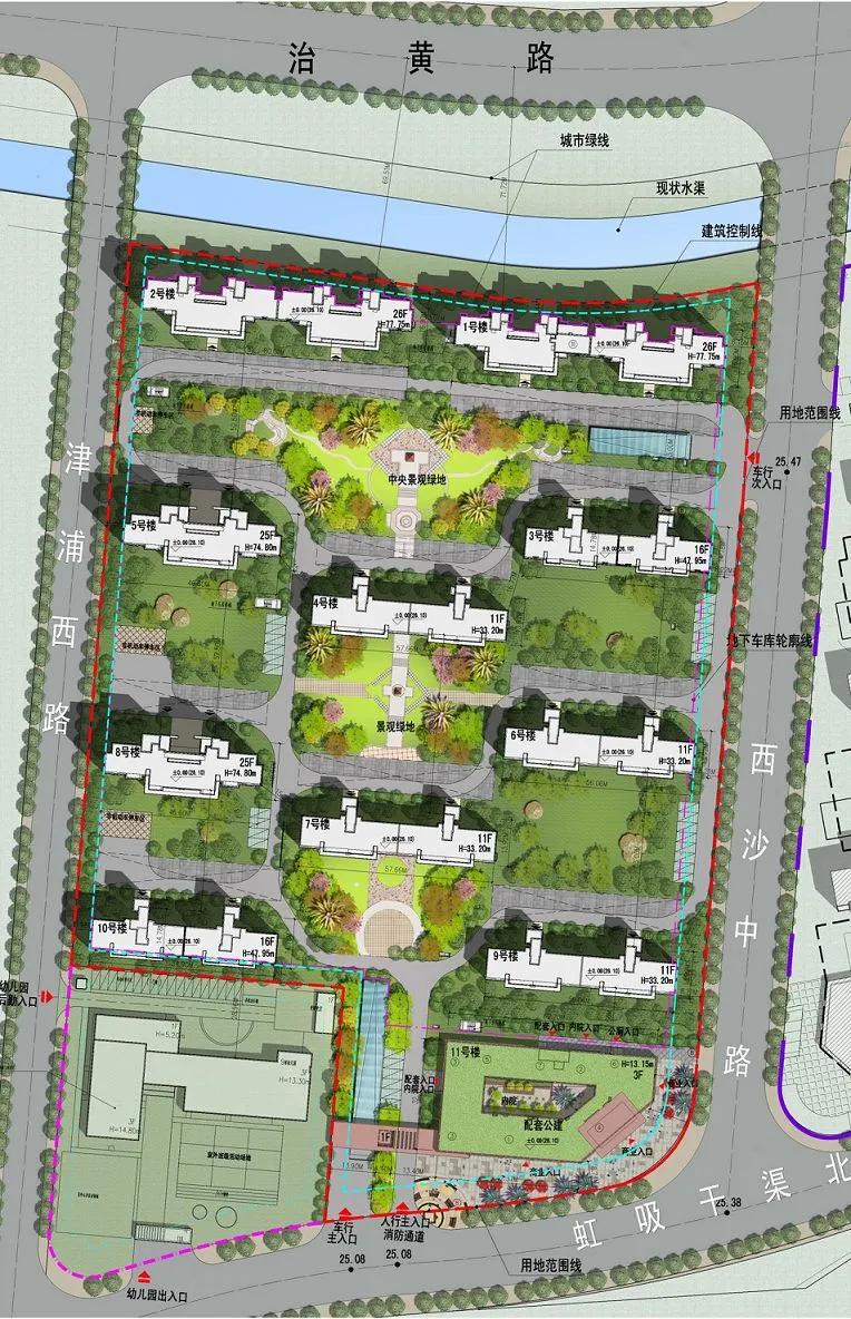
地平·西棠观樾
此项目是2019年8月,由润华旗下的地平置业底价竞拍获得,楼面价7201元/平,这个地块价格对比临近竞拍,世茂璀璨悦府的楼面价价足足低了2300元/平,2017年底拿地的世茂璀璨悦府项目当时的楼面价高达9573元/平,
这意味着西棠观樾项目在营销上拥有更多辗转腾挪的空间;
西棠观樾的具体位置,处于津浦路东侧、西沙中路西侧,从地块质地上看,与邻近的世茂项目相差不大,世茂项目邻近美里路等主干道,距离海那城等配套更近,地平项目环境则更显安静。
西棠观樾总占地约4.5万平,总建筑面积约15万平方米,一共规划10栋楼,共920户,包括4栋11层洋房,2栋16层小高层,2栋25层,2栋26层高层,现在现场展示的户型有四种,分别是:106㎡(三室)、114㎡(三室)、139㎡(四室)、146㎡(四室);从现场的资料看,首期将推售1#、9#楼(26F高层,两梯四户)以及6#、9#楼(11F,两梯两户),毛坯交付。
项目南侧规划有幼儿园一所,一座3层的公共配建(现售楼处所在位置),从效果图上,后期将承担一定的商业及业主活动的作用;5月10日,地平西棠观樾营销中心正式开放。
周边楼盘分布

现场实拍效果

项目规划建设

整体效果:幼儿园,公建,住宅

2
片区探究
追求职住平衡的美里湖片区
项目所在的位置被称为美里湖片区,是济南市政府规划中的十二座城市副中心之一,论地位与东部的唐冶、雪山等片区相齐,从实地探盘来看,片区规划并未遵循生活区与工业园区泾渭分明的规划方针,反而呈现一种“产城融合”的状态,即在诸多企业园区中混搭住宅,追求职住平衡。
美里湖片区整体发展处于刚刚起步的状态,交通设施正在完善中,已经入驻了不少的高精尖企业,另外周边德迈产业园、海那城总部二期正在建设中,企业入驻将会更多。
关于片区的未来,值得期望的是政府于19年引进的宽带小镇,从相关资料看,技术水平与规格双高,希望可以带来更多的产业人群。
美里湖详细规划

部分道路正在整修,但已见新区雏形

周边高精尖企业不少



宽带小镇起步区,占地约3万平,属重点项目

3
周边配套
交通
公交出行可乘坐brt7、132等公交车,线路不多但换乘方便,驱车经二环西路上高架,还是非常方便的,美中不足的是,项目临近暂无公交线路,需步行约500米前往站牌。
商业
片区虽然临近多座大型配套,比如宜家、迪卡侬、百联奥莱、海宁皮革城,但是这些配套距离日常生活较远,缺乏大型商超型/ 日常购物型配套,日常需前往临近社区底商满足(大魏社区、邹庄社区)
公园
日常休憩可前往海那城,海那城配建百亩森林公园以及千平湖面,稍远处可前往济南市森林公园
学校
学校多说两句,经售楼处问询,西棠观樾业主可入学北侧配建的西沙王庄小学,学校的硬件不错,原定本年度9月份开学,因为疫情顺延,从建筑进度上看,年底竣工问题不大,另据不实消息,此小学会签约槐荫区名校,各位关注的朋友可坐等官宣。
补遗
本来对西棠观樾广告中林荫境的描述嗤之以鼻,但实地探访,西棠观樾项目南侧,苗木茂盛,存在水系,后期存在借助水体规划小型公园的可能;另外项目南侧有铁路以及铁路桥,见到一辆极小型火车路过,基本没什么影响,至于后期会怎么样,洋楼暂未查阅到相关资料,点出来提醒各位朋友注意。
西沙王庄配建小学

现场建设实景

周边苗木茂盛

二环西路主干道观感,对比明显

铁路,从距离上看,没啥影响

海那城航拍景色

4
项目优劣
优:
对比周边楼盘,地平西棠观樾最大的优势是密度相对较低,从规划图与现场沙盘看,西棠观樾可供绿化的面积较多,楼前的绿地大,居住较舒适;从推出的户型上看,中规中矩户型,方正实用
其中146平楼王户型客卧一体的阳台是亮点,至于赠送面积与公摊,可现场问询,相对常规,基础配套已完善,上文已解析,此处不赘述。
劣:
项目地处西北,并非济南置业热点,美里湖片区处于待成熟阶段、路网刚刚成型,更多配套亟待入驻,居住氛围一般;奥特莱斯作为目的购物型配套,节假日人气旺盛,二环西路物流类大车较多,易导致美里路及二环西路拥堵。
洋楼比较认同的一个观点是:没有不好的项目,只有不适合的人群和不合适的价格,质量问题才是真正的劣势;不是特别喜欢写劣势,尤其是均好性的楼盘更难写,不写就好像不客观一样……
现场沙盘展示


户型图展示(146户型没有户型折页,据称位于10#11#楼王)




5
简要总结
西棠观樾作为地平置业继西棠甲第后,落子槐荫的又一住宅,以东方人文作为主体风格;周边产业发达,村落密集(西沙新沙邹庄大魏美里),洋楼认为,客群多数为周边地缘性客群+少量城区溢出型改善客户。
西棠观樾营销中心将于5月10日正式开放,洋楼根据周边市场大胆推测入市价格,仅供参考。
高层:
海信九麓府多为34F高层,成交价格10500-11500/平;世茂精装高层,成交价格12500-13500元/平,海那城洋房世家高层成交均价9000-9800元/平(不计特价房价格)预计西棠观樾毛坯26F高层入市价格11000-12000元/平之间。
洋房:
片区内洋房产品供应量较少,洋房世家10F洋房成交价为10000-13000元/平(楼座差异明显),西棠观樾将大户型安置于11F产品上,无非是追求利润,针对片区内不差钱的客户,优中选优,预计西棠观樾洋房入市价格12000-13500之间。
注:以上价格推测推测,入市价格与认筹数量有关,静待开发商报价即可,仅仅参考。
最后现场售楼处探盘图
对西棠观樾感兴趣的朋友可5月10日前往






