今天米宝给大家带来的是东南亚风格,注重的是生活品质和细节,活的比较细腻。。。
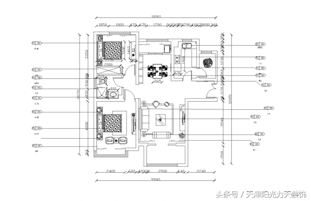
本案为奥莱城小高层标准层E户型2室2厅1卫1厨 109.00㎡,本户型南北通透,并具有非常好的采光,入户门宽度较宽,安置子母门,更显高端大气,方便住户进入,进门后有一段玄关,右侧是厨房的位置,厨房内还有多功能区,为住户提供了良好的环境。左侧是客厅,客厅带有阳台,并且空间大而且通透,采光很好,为住户休息娱乐提供了良好的空间。餐厅邻近厨房,方便做菜与就餐。主卧位于最里端,隔音效果好,为户主休息提供了良好的环境。卫生间位于主卧与次卧之间,方便户主入厕。本案户型空间布局合理,采光充足,整体居住舒适,适合住户入住



本案为奥莱城小高层标准层E户型2室2厅1卫1厨 109.00㎡,户主是三口之家,喜欢简单朴实的风格,本户型南北通透,并具有非常好的采光,入户门宽度较宽,安置子母门,更显高端大气.进门后有一段玄关,右手边开始依次是厨房,厨房内有小窗,光源充足,分布也明确,厨房内还有多功能区,更好的方便住户。客厅的沙发背景墙采用的东南亚风格造型,木色的纹理,东南亚风情的原始木叶的装饰点缀,再加上十分浓郁的东南亚设计感的吊灯,浓烈的烘托出整个空间的异域风情,既满足业主的要求,又让人感到整个空间的朴实与庄重。接着是餐厅,餐厅的吊顶采用的圆形吊顶有灯带,明亮光感好,整个空间不是很大,所以放了一个大的酒柜,增加了整个空间的储物功能,为了达到整个空间的饱满有时尚感,右边挂了一副色彩鲜明的挂画,为这个氛围增加了活力与个性
微信添加15900261178可免费咨询装修方案、装修报价。
更多装修咨询添加QQ:3182500155,海量装修效果图免费分享哟