【房屋面积】 156 平米
【房屋类型】普通
【装修公司】北京龙发装饰西安分公司
【装修风格】简欧风格
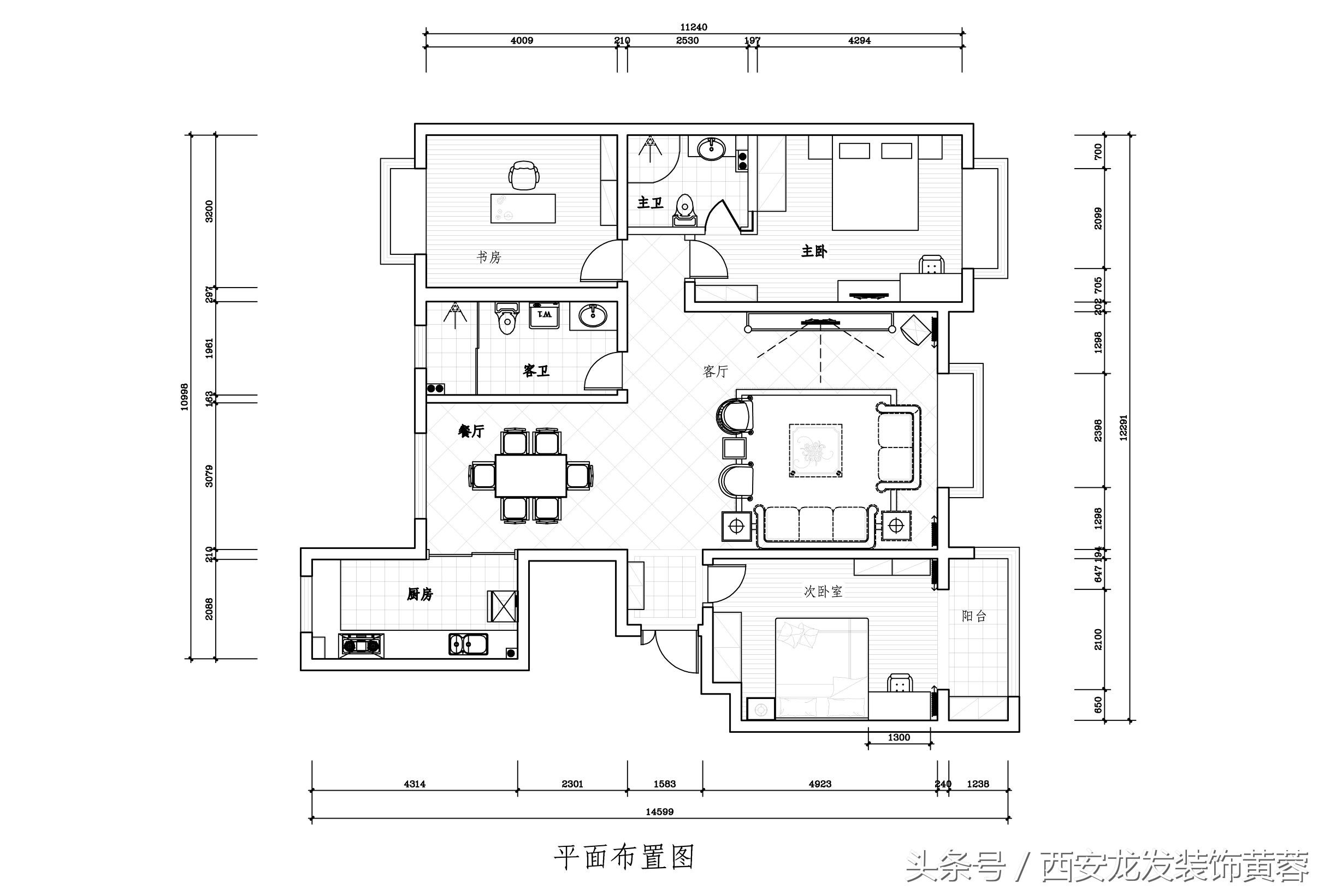
【户型特点】南北通透,采光效果好。
【工程造价】 9万(不含主材)
【设 计 师】李雁龙
【工程周期】60天
【设计说明】本案是位于西安市北郊经济开发区的核心区内,长庆油田管道局家属院。本案主要考虑是功能性和通用性,满足不同的居住需求。整体的舒适性方面要求比较高。鉴于此,此案定位于简约的欧式风格,在户型的调整方面做了比较大的调整,来满足每个空间的基本需求。装饰手法方面通过运用大面积的墙纸,简洁温馨的色彩,优美的线条,欧式的拱形元素,精美的枝形水晶吊灯,光洁的大理石雕花墙面等等的处理形式为居家或会客带来一种舒适的氛围。

户型点评:
优点:
1、该户型属于目前西安市市场上非常少见的大三居室,无论从哪个角度来讲,都是可圈可点!
2、户型相当规整,空间利用率高,南北通透,采光也相当不错
3、客厅餐厅在入户门的前部属于“动”态区。卧室位于客厅餐厅的前后部,属于“静”态区域,从而构成了动静分离户型
缺点:
户型虽然很大,但是缺少生活阳台,晾衣服非常不方便。
建议方案:
1、由于阳台没有下水只能把洗衣机放在客卫生间,但原始结构是干湿分离的,空间比较狭小无法放置洗衣机,建议把卫生间隔墙打通,变成一个大卫生间。洗衣间可以放置,整个采光也变得明亮了。
2、客厅是该户型的设计亮点。也是需精心研究的部分。建议沙发摆放在入户门的那面墙上,电视墙摆放在主卧的那面墙上。
如果按照简欧风格进行设计,衬托该区的方法为:顶面的造型。(个性化吊顶);墙面的造型(电视墙和沙发墙);地面瓷砖的选择及铺设方式。





我来细细和你聊装修设计,如你刚好喜欢。
龙发西安欧标样板间火热征集中,,,,
预约本案设计师,请加:hr199584(可复制)