
最近台湖板块很热闹,两个限竞房项目讨论热度很高,分别是万科城市之光·东望、及台湖金茂悦。尤其是万科·东望,临近8月底开盘,基本清盘,一天销售额近20亿,提振了整个市场;而金茂悦也赶在同一天在东望隔壁紧锣密鼓地开放了售楼处,进入排卡,预计本周开放样板间,本月底开盘。
不同于北京其他城区扎堆供应及入市的情况,台湖板块今年入市的仅有万科东望及金茂悦所处地块。从整个板块去年供地的情况来看,还有住总、中建一局、万科等开发商拿下的共有产权地产及安置回迁地块。
唯一的商品房用地就是 YZ00-0405-0094等限价房地块,总建控规模不超过28万平方米。这5幅地块共同承载了万科·东望、金茂悦两个项目,去年1月由北京万科和平安联合体以66.6亿元的价格竞得。其中0095等4宗地块建成城市之光·东望;0094一宗地块被万科让与金茂,由金茂操盘,打造成台湖金茂悦。
可以说两个项目是位置紧邻,所以,购房人享受的交通、配套几乎一样;其次,都是万科、金茂这样的大开发商操盘,各有产品力;最后,限价也是妥妥一致,挂牌文件规定,该地块商品住房销售均价不超过 51585 元/㎡,最高销售单价不得超过 54164 元/㎡,并有7090限制,定位刚需。
种种的交通、地块、价格等各种条件决定了金茂悦、东望互为竞品的属性。
和讯房产近期去台湖打探了一圈,本期质造将聚焦台湖板块、及东望的踩盘感受,同时会将“本是同根生”的台湖金茂悦现有情况加以对比。为大家生成一份踩盘报告。

“不要你觉得,我要我觉得,听我的!”。

1 产品力比拼: 万科·东望VS金茂悦
位置紧邻的情况下,比拼的自然是产品力。总体定位,东望和金茂悦都是承接CBD、亦庄的外溢需求,产品风格都是定位比较年轻的85后。不过,这也给购房者提供了更多选择。
从下图的基本信息可以看到,金茂悦虽然总建面不足东望三分之一、一期仅提供200余套房,不过据说年底前会推完全部房源。万科东望一期规划6栋住宅,共488套房源。

虽然互为竞品,但是开盘时间和节奏相近,总给人感觉也达到了互相宣传的效果。
二者的社区均是围合设计,人车分流,比较安全,同时可以降噪抑尘。
金茂的社区规划走了“智能路线”,有智能垃圾分类、户外防水插座(户外活动用电需求)、非机动车充电桩、天使之眼(儿童活动区配全天监控并可随时云端查看)等功能。户外规划中还有一个无边草坪,有设置运动跑道、夜跑系统等。从整体氛围看,比较高端。
另外,因地块形状限制,两个项目个别楼座不是南北方向。
刚需上车——最小户型
东望72㎡ VS 金茂悦80㎡
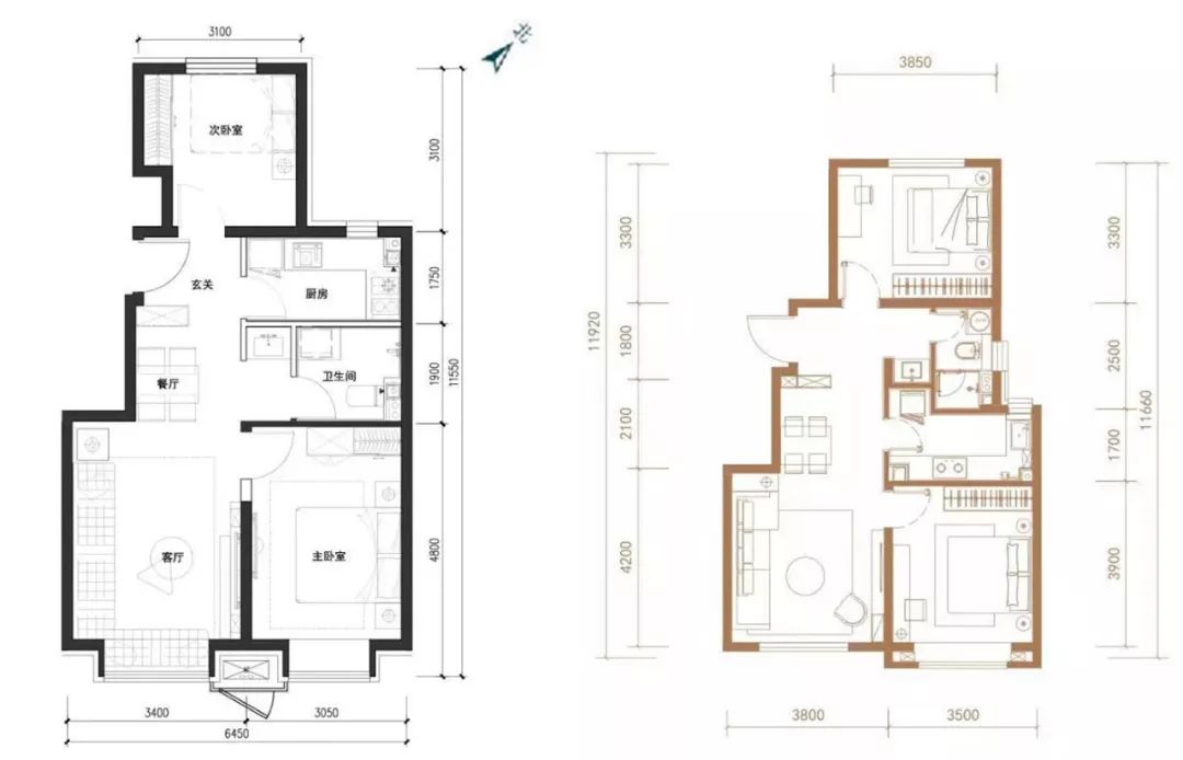
万科东望的最小户型是72㎡,金茂悦的最小户型80㎡,二者都是两居。
从价格的衡量上看,最小的户型,金茂悦贵了近40万,这给刚需上车的一部分人群拦在了外面。
不过,万科的72㎡是斜45°南北户型,明厨暗卫,金茂悦80㎡是正南向户型,做到了明厨明卫。
两个小户型产品有各自不完美的点。第一,就东望来说 ,小户型北侧的次卧面积略小,约9平米;台湖金茂悦的北侧次卧12.7平米,相对舒适;第二,就金茂悦来说,玄关对着卫生间,无私密性,相当一部分人比较介意这样的设计。

万科东望72㎡ VS 金茂悦80㎡
两室两厅一卫
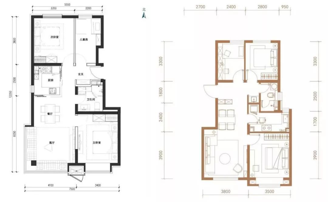
主力户型——三室两厅一卫东望90㎡VS金茂悦89㎡
7090地块,决定90㎡的户型是主力。首先,总价差距不大;
户型设计上,金茂悦依旧玄关对卫生间,但做到了南北通透、全明。
目前金茂悦最小的80㎡基本被选完,89㎡还可选择,与80㎡对比,89㎡户型北侧多了功能间的设计,做小卧室略局促,可以当作储物间、衣帽间。
东望的90㎡户型有两种选择,比较热门是90㎡边户,不同于市面上的大多数产品,客厅会有一个90°转角大飘窗,将墙体向外推半米,扩大的部分放个长L形沙发,坐在长沙发上透过飘窗向外看,一定是不同的风景。 扩大居住面积体验感同时,诠释了真正的“都市居住”感觉。

90㎡转角飘窗边户
另外,东望的90㎡做到了餐厨客一体,很适合年轻人,增强了居住的交互感。金茂悦在132㎡大户型中,有餐厨客一体这样的设计。金茂悦89㎡户型,餐厅、厨房与客厅的活动路线设置的比较合理。

餐厨客一体——万科·东望90㎡
看过东望的样板间后,个人觉得有一些小细节比较打动人,厨房设置了可升降的洗手台,当水龙头抬起,厨房正常运转并履行功能;当水龙头降下,空间合上,厨房可以变成一个加班台,甚至是一个迷你酒吧。合理利用空间同时,增强了与客厅的互动。

水龙头的“升和降”
厨房操作台上还可直接无线充电、预留手机支架位置,当你边做饭边追剧时,妈妈再也不用担心这种操作不靠谱。

万科东望90㎡ VS 金茂悦89㎡
三室两厅一卫
改善四居 东望148㎡ VS 金茂悦132㎡

东望148㎡四室两厅三卫 VS 金茂悦132㎡ 四室两厅两卫
两个户型均是方正的南北通透户型,东望的总面积比金茂悦大了16㎡,也多出一个盥洗间,对于四居的大户型来说,相对更加合理。
东望的南北两侧均可加购可以移动的非承重墙,贴近无限系,诠释了从年轻夫妻到四世同堂的居住角色转换。

可移动承重墙——可以是大客厅,也可以是私密的书房和客厅

卧室可移动承重墙
另外,东望除90㎡边户转角飘窗在客厅,在123㎡和148㎡户型,飘窗均设在了南侧的主卧,提升了居住的尊贵感。

万科·东望—148㎡带广角飘窗的主卧
另一边,金茂悦虽未公开样板间,但从其目前的信息来看,金茂悦算是可以打动重视细节的购房者,除了以上提到的社区规划。房间内部,金茂的“十二大智慧舒居系统”,将呈现在节能、灯光、降噪、净水、安防等细节;通过大数据分析,可以智能操控新风和空调的运行,节能的同时保持室内空气的高质量和温度的适宜。不过年轻化的限竞房悦系产品,相对府系应该会做一些减配。
小细节上,金茂悦的卫生间配了防滑瓷砖;吉博力的同层排水、内部三层双中空LOW-E玻璃、外部园林可使降噪效果达到。从下图可见,悦系产品的科技系统也算是面面俱到。

金茂悦科技系统示例

2 区域规划: 十年后的“新望京”?
说完产品,来讲整体规划,从位置上看,台湖位于北京东南,地处通州与亦庄开发区的交界处,北部规划为演艺小镇,南部为亦庄新城所划定的高端总部基地,整体定位为“演艺文化小镇+世界一流的产业综合新市镇”。

台湖板块位置图
北部地区,台湖镇将文化创意和科技创新产业作为主要发展方向,主要突出“演艺+科技”的定位。以国家大剧院舞美基地为龙头,依托环球影城辐射效应,还计划打造世界第三个百老汇,加上煤矿文工团、北京儿童剧院、德国 APASSIONATA 马剧团等项目,台湖将成为北京文化演艺中心区。同时推进区域旅游信息服务、设施维护等配套产业发展,形成文化休闲旅游上下游产业链条。

台湖板块区域规划图
位于台湖南部的次渠规划为整个台湖镇的综合交通枢纽,包括至少3条轨道线经停此站,台湖南部高端总部基地规划为科技服务配套区,该基地将打造高端智慧生态综合体,引导高端产业进驻,包括车联网、生物医药、节能环保、新能源等为主的战略性新兴产业和以研发服务、科技商务为主的现代服务业。

“两站一街”规划
南部“两站一街”的规划是连接亦庄火车站末端与次渠站沿线盖起商业街。
业内人士曾说,一个十年,台湖或许会和望京一样,成为一个“职住平衡”的新中心。 提一下,台湖的行政规划属于通州,所以买房需要通州购房资格。共4种人群可满足: ①无房京籍 ②二套,但落户通州3年京籍 ③二套,但通州缴3年社保京籍 ④无房,通州缴3年社保非京籍 3 周边供应:良莠不齐
和讯房产来到万科·东望的售楼处及样板间所在地,金茂悦的售楼处也在附近。明显可见这块区域已经趋见成熟,台湖不愧是万科在北京深耕的“大本营”之一,好几个盘均以“城市之光”系列命名。
紧挨着售楼处的首开万科城市之光住宅目前均价51000元/㎡; 万科公园里42896元/㎡,万科时光里53575元/㎡,首开万科翡翠四季叠拼居多,均价61000元/㎡。

东望售楼处周围的城市之光楼盘
其他新房项目上,售楼处东侧,临街有正在动工的城市之光商住项目。
去年入市的台湖银河湾,均价70800元/㎡,据说产品上做的也很用心,物业费5.99元/㎡·月,基本售完。

银河湾
还有距离售楼处大概1000米的是泰禾的豪宅项目——泰禾1号公馆,套均价600万/套起。
据工作人员介绍,东望、金茂悦的项目施工地距离售楼处的距离大概有3公里,目前还是“荒”的状态,不过这块地在出让时有规定配建基础教育用地、商业,可以满足日常生活需求。
和讯房产也沿着地块基本上所处的位置附近逛了一圈,周围确实很空,目前已有成规模的小区,红色的楼是安置房项目——次渠嘉园,均价水平在3万多,次渠南里价格也在相似区间。

附近二手房分布

远处的次渠嘉园

离开城市之光范围的台湖,还是有点“荒”
一圈逛下来,台湖板块的项目种类很“丰富”。别墅、刚入住新盘、新老二手房、回迁安置房,共有产权房,这一类的价格都比较低;还有在售的限竞房,以及未来要入市的共有产权房。各类产品都有,“良莠不齐”,不知道区域成熟后会不会稍显混乱,影响居住氛围。 4 配套:交通/医疗/教育
总体看来目前一般,有待发展,但未来规划看具备发展潜力
交通是明显优势之一。台湖算是北京交通枢纽之一,机场快轨、高铁、地铁、公交集聚。地上交通有京津、京哈、京沪三大高速。
地铁交通,亦庄线、17号线、以及连接首都机场、北京城市副中心和北京新机场的21号线(S6)都在台湖设站。
亦庄线的次渠南和次渠站距离东望和金茂悦的地块距离约1.5公里。
东望、金茂悦距离地铁17号线的始发站——亦庄站前区南站约500米,从地块位置来看,金茂悦的距离地铁站稍微近一点。
17号线是一条贯通昌平、CBD、亦庄的重要线路,2022年底开通后,居住在东望或金茂悦坐地铁到达CBD的时间仅需30分钟。

医疗配套情况,周边区域内主要医院有台湖医院。安贞医院通州院区确定于今年开建,计划1500张床位。教育配套方面,在建的景山学校距离项目约4.3公里。其它中学有台湖镇银河湾小学等、通州区次渠中学、马驹桥镇实验小学等。但是否是东望或金茂悦的划片学校,还未公布。

在建的景山学校
其实不仅是东望、金茂悦的相互竞争与“成就”,这两年亦庄集中入市的和悦华锦、金麟府等项目也与台湖项目互为竞品。虽然两块区域的项目最远的“相隔”7、8公里,互为竞品的原因之一是价格相似,都是限价房(亦庄河西区限价房在51000元/平方米左右);原因二,驾车至CBD的时间基本一致,大约30分钟。
给人的整体感受是,这两个板块区域规划都不错,选择亦庄的购房者是选择了更成熟的环境,选择台湖的购房者看好的是交通优势。
总体来说,可以看到万科城市之光·东望,在产品设计上兼具创新实用,在刚需盘中做到了居住的迭代升级;万科的物业服务品质也很高,在当下的市场情况下,东望做到“日光盘”必定是打动了购房者。
但马上开放样板间的金茂悦也算值得期待。金茂作为央企,品质历来有所保证。其科技系统是大多数开发商做不到的,用限竞房的价格享受到科技居住系统,性价比很高。但 玄关对着洗手间的户型设计遭到不少吐槽,销售给出意见,“可以再做一个玄关”。
没有产品是十全十美的,刚需买房还是需要认真做功课,用自己预算、需求、居住习惯、喜好去比对出打动你内心的那个产品。
所以,不要谁觉得,看完这篇,相信各位心中有不同答案。

和讯房产半年报独家榜单系列
资色·榜单系列①| 扣非净利润增速:融创高达233%
资色·榜单系列②|销售增速:大房企集体消失在前十名 ,“黑马”荣安首次进榜即夺冠
资色•榜单系列③|4家龙头房企净资产负债率低于60% ,中海以31%负债率居榜首
资色•榜单系列④|降负债成主流 大悦城以超9成有息负债增速扩规模
资色·榜单系列⑤|房企投资力度前三强出炉:华侨城、弘阳、中交
资色·榜单系列⑥丨偿债能力哪家强?中海现金覆盖比遥遥领先
资色•榜单系列⑦|龙头房企营收增速普遍放缓 合景泰富“黑马逆袭”
资色·榜单系列⑧|净资产收益率难达标:51家房企中50家都入不了巴菲特的法眼
和讯房产半年考系列
资色·半年考丨6家房企投资强度负增长:千亿军团的野心和谨慎
资色·半年考|房企销售增速明显放缓 下半年“抢收”提前打响
资色·半年考 | 大型房企成拿地大户 中小房企加速狂奔
资色·半年考丨房企长租投资热度下降 “算不过来账”成根本问题
资色·半年考丨超六成房企目标完成率未过半 绿城垫底
和讯房产独家榜单系列
资色·榜单丨2018年上市房企成长潜力榜单TOP50
资色·榜单|2018年上市房企财务健康榜单TOP50
资色·榜单|2018年上市房企经营能力榜单TOP50
资色·榜单|2018上半年上市房企财务健康榜单TOP50
资色·榜单|2018上半年上市房企成长潜力榜单TOP50
资色•榜单|2018上半年上市房企经营能力榜单TOP50