基地内现有一个建筑,业主不满意现在的造型和布局,所以要对其进行改造,场地内还要新建设两栋建筑,同一电梯入户式的布局设计,建筑选用现代风格,主要以大面积的玻璃为主同时要考虑当地风压,新建设的户型用于销售,每层一户,四跃五为一户,并且为其提供大面积的露台,空调机位要隐藏起来以不影响建筑立面。

业主想要在群体建筑中脱颖而出,与周边建筑相融合又可让人一眼便记住。



一、户型基本情况:
建筑名称:现代别墅
建筑面积:1858㎡
占地尺寸:48m×48m
建筑结构:砖混结构
土建造价:260万

建筑立面主要采用现代手法,色调采用白、灰和木色三色搭配。业主居住的楼是双拼户型,但立面处理并没有采用中间对称的方式,给人的感觉是一个整体建筑,休闲空间和主卧均布置在了南向,最大限度的利用自然光。用于销售的户型,也采用类似的手法,客厅和主卧均提供了室外的阳台和大面积的落地窗。

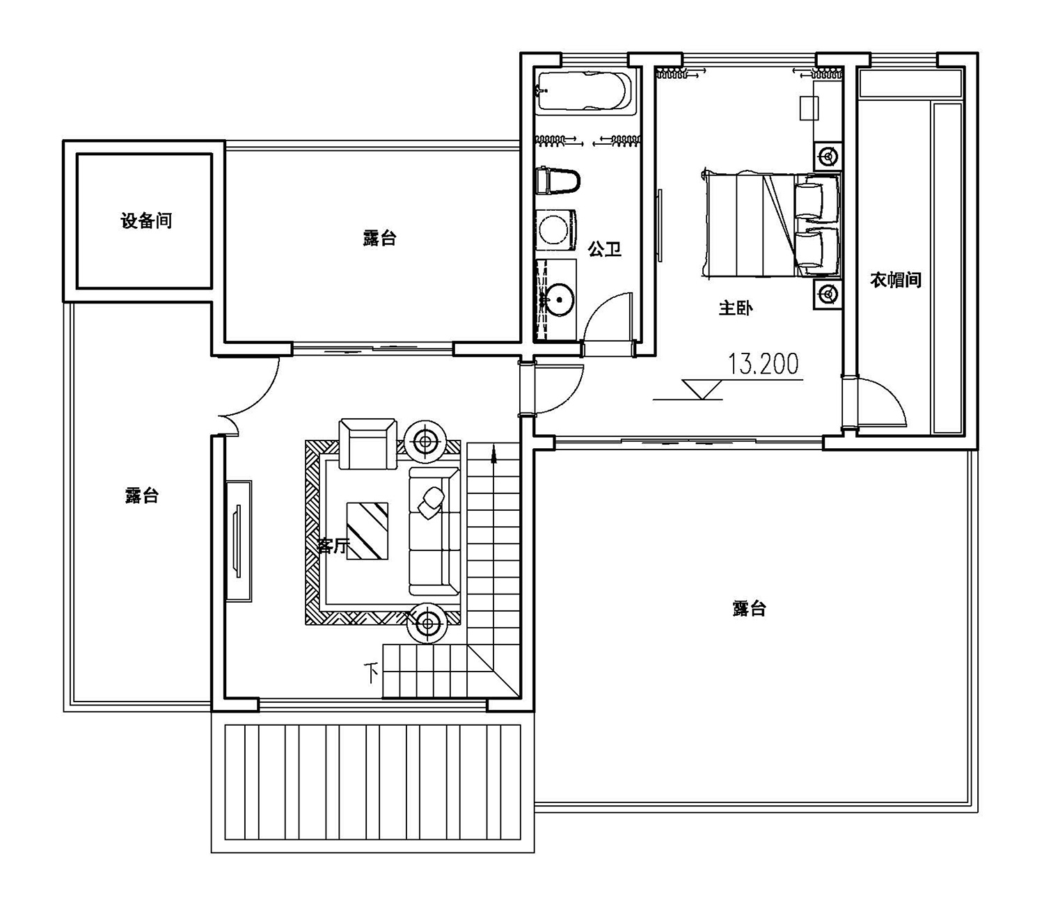
空调机位直接外挂室外会很影响立面效果,所以,在外挂机的位置设置了百叶在不影响排风的前提下将其隐藏起来。建筑五层预留了大面积的露台,通过体块和交通空间划分成三个区域,使得主卧,客厅分别有了各自专属的露台,相互独立,互不影响。主建筑屋顶的中间位置设计了一个天窗,为两户的交通空间提供采光。整个屋顶采用单坡的方式,低的一侧再设置两个高起来的体量,使其整个看起来均衡。



场地的入口设置在北边,穿过中间的车道,来到升降机位置,倒车入口。建筑周边的位置均作了绿化和木质平台处理,为人们的户外活动增加了场地同时也营造了良好的户外环境。



主建筑前面的景观,以花园的形式呈现,透过小水池,便可来到廊架下休息,三三两两的沙发,沏一壶热茶,呼吸沁人的空气,怎能不享受呢。别墅的一层,则为其提供了一私人的小花园,通过客厅便可来到。低矮的灌木和鲜花交错种植,放一把躺椅,一本书,岂不惬意。
二、平面图
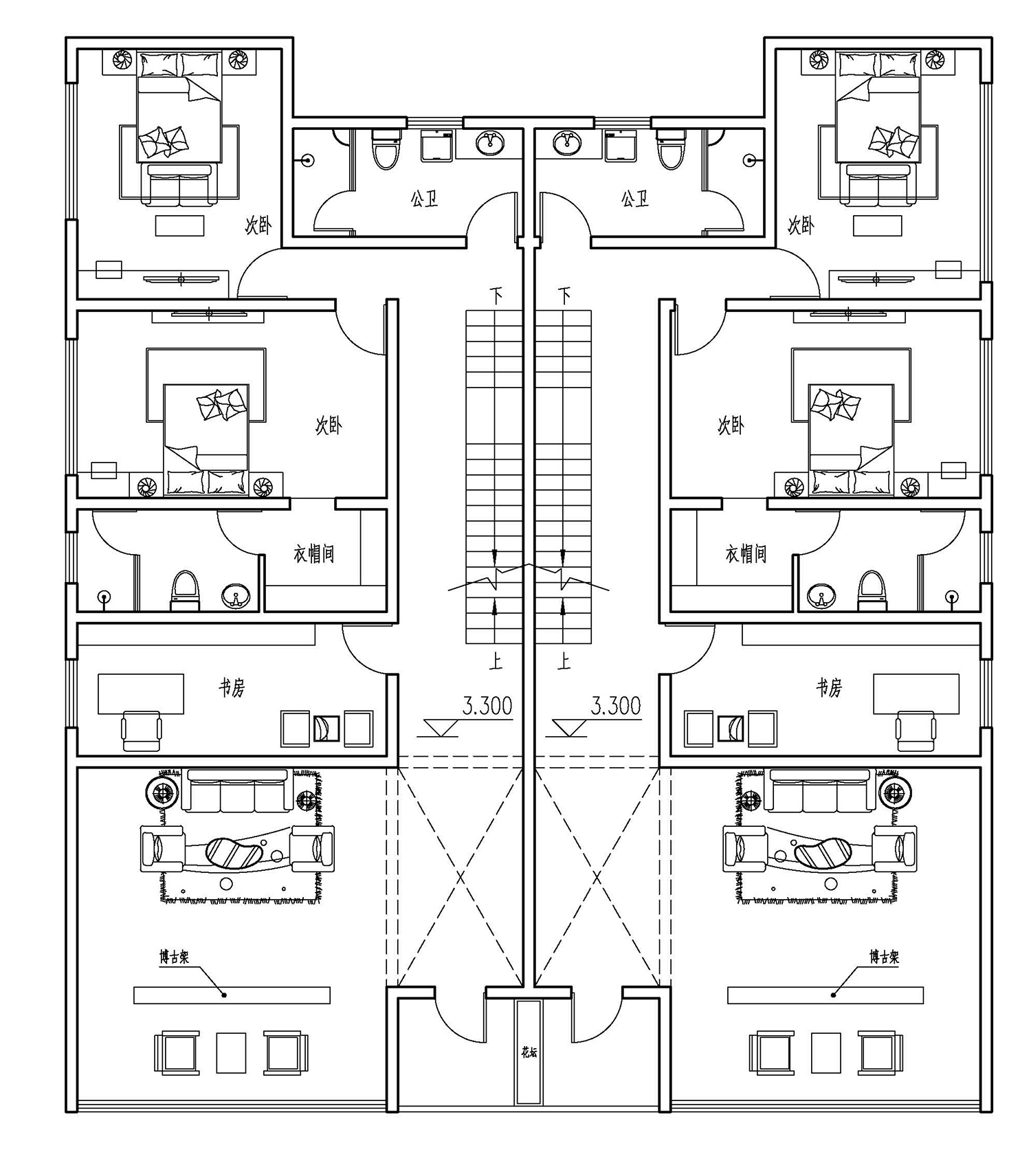
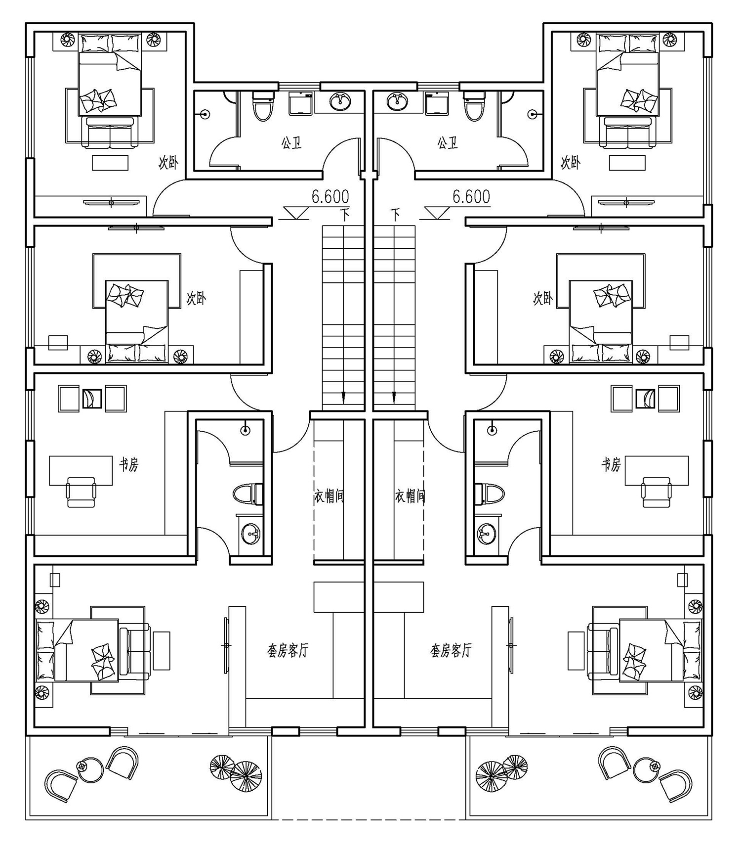
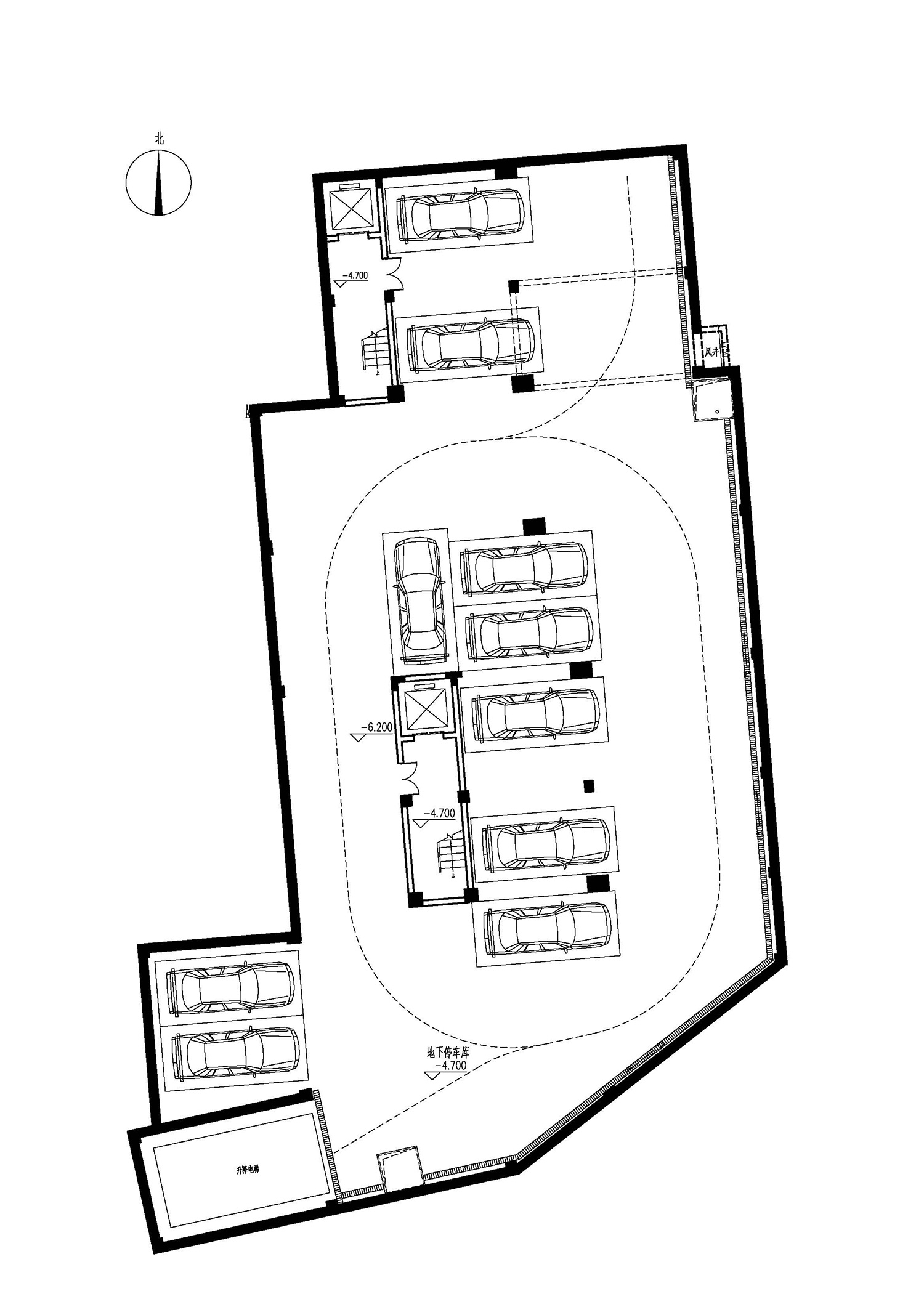
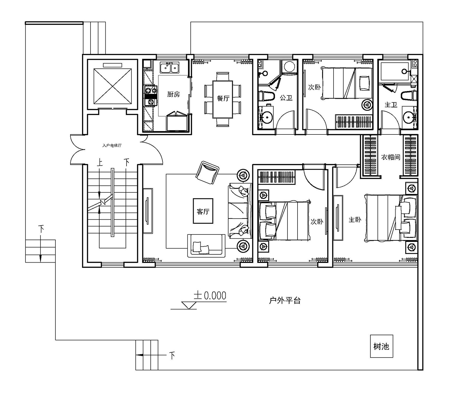
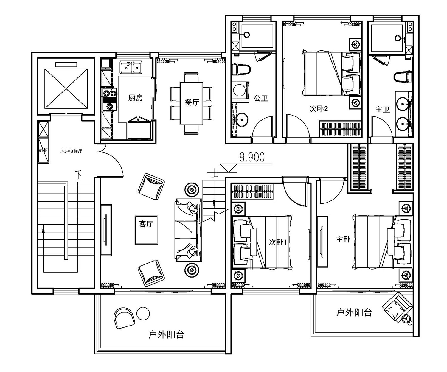
户型A是两栋,呈现对称设计,一层只要是就餐待客使用,设有宽敞的客厅和餐厅,还有一处小吧台,后面带有一处酒窖,设有封闭式厨房,避免油烟的扩散,此外还带有客卫和洗衣房;剩下两层为居住使用;户型B负一层设有多车位的停车库,设有楼梯可进入一层的客厅,楼梯旁边设有电梯;一层至四层在布局上是一样的,一层设有客厅和餐厅均为开敞设计,封闭式的厨房有利于室内居住环境更好,设有一处主卧带有衣帽间和独卫,剩下两处次卧使用客卫;五层设有一处主卧和客厅,带有大露台;

△A户型一层平面图

△A户型二层平面图

△A户型三层平面图

△B户型负一层平面图

△B户型一层平面图

△B户型二层平面图

△B户型三层平面图

△B户型四层平面图

△B户型五层平面图