设计说明:
7天优品是酒店集团全新推出的高端经济型酒店。本设计主张“年轻的选择”的生活态度,青春与个性的交融,独特而简约的设计,卓越的舒适和品质,尽心让每位宾客享受一段轻松自在的舒适之旅。
独特主题“优吧”。一个集体休闲书吧、休闲电游、自助商务、自助餐饮等各种元素的独特闲憩空间。
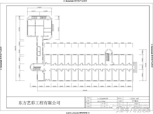
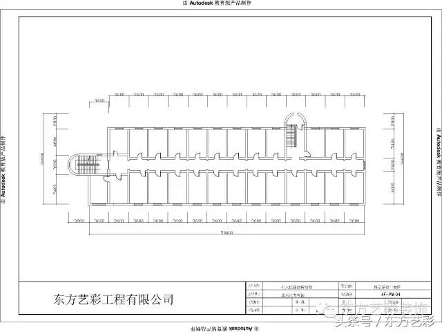
原始平面图:

一层↑

二层↑

三层↑

四层↑

五层↑

六层↑
平面布置图:

一层↑

二层↑

三层↑

四层↑

五层↑

六层↑
效果图:

外景↑

外景↑

外景↑

房间↑

房间↑

大堂↑

大堂↑

大堂↑

大堂↑

前台↑
设计说明:
7天优品是酒店集团全新推出的高端经济型酒店。本设计主张“年轻的选择”的生活态度,青春与个性的交融,独特而简约的设计,卓越的舒适和品质,尽心让每位宾客享受一段轻松自在的舒适之旅。
独特主题“优吧”。一个集体休闲书吧、休闲电游、自助商务、自助餐饮等各种元素的独特闲憩空间。
原始平面图:

一层↑

二层↑

三层↑

四层↑

五层↑

六层↑
平面布置图:

一层↑

二层↑

三层↑

四层↑

五层↑

六层↑
效果图:

外景↑

外景↑

外景↑

房间↑

房间↑

大堂↑

大堂↑

大堂↑

大堂↑

前台↑