前段时间福州大暴雨,位于闽侯旗山的正祥林语墅被淹得非常严重,对于正祥而言,目前在福州市区的项目也不多,其中前两年位于鼓楼市中心的高配比安商房正祥贵里香园是其中之一,今天来聊聊看。
楼盘规划
正祥贵里香园:鼓楼区水部街道古乐路以东。
项目共规划4栋14-22层的高层建筑,共475套,其中商品房仅26套(4套45平方,8套75平方,12套90平方,1套105平方,1套120平方),分布与2,5号楼,备案均价3.8W,项目是典型的混合安商。

土拍情况
2018年9月20日,正祥以5.47亿元拿下宗地2018-40号,楼面价约10934元/平。土地面积27.79亩,容积率2.7,限高80米,中商业面积不少于5300平方米,不超过5500平方米,须建设95%安置型商品住房,按照19300元/平方米均价销售,开发商最大可售商品房建筑面积仅2236平方米。
分析:2018年正祥拿下鼓楼区五一广场的地块,正好遇上安商房阶段,项目配建了95%的安商房,基本等同于做包工头建安置房,对比楼面价1.1W,回购价1.93W,差价8K,基本保障了资金回笼和利润。对于地块而言,由于区位较好,地块不大,虽然地形相对规整,不过开发空间也相对一般。
对于正祥而言,近年在市区拿地,基本都以袖珍地块为主,除了这副,还有位于鼓楼区西禅寺的正祥福沁满庭,也是定位小地块安商房,还有目前准备上市的奥体的正祥凤林别舍。

户型情况
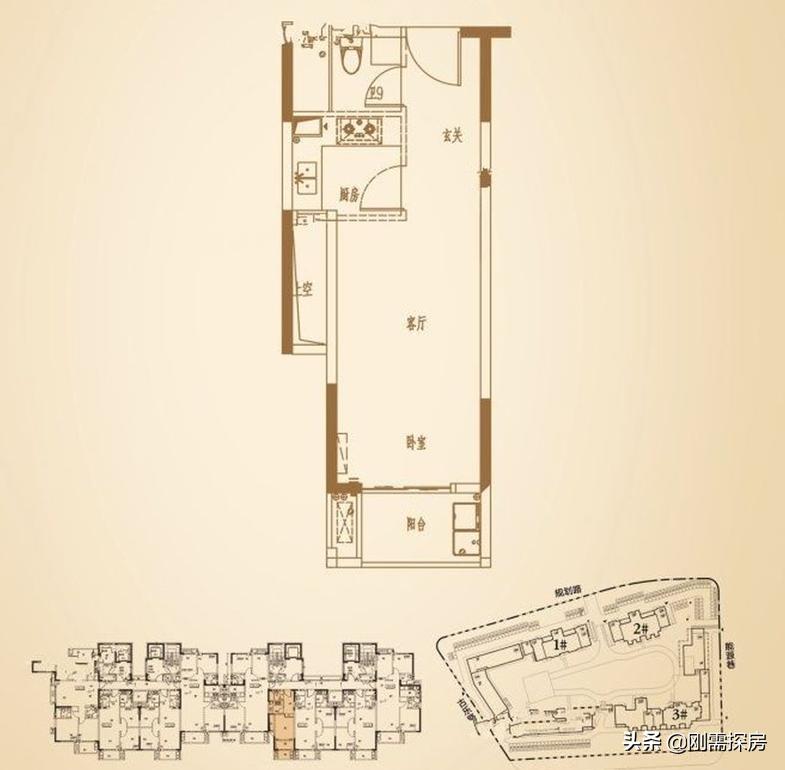
45平米:一房一厅一卫,位于5号楼,长条布局,与目前的人才房户型有点类似,主要硬伤在于卫生间是暗卫,不过市中心的小户型,不管对于投资客还是单身购房者,都有较大吸引力。

75平米:两房两厅一卫,位于5号楼,双开间朝南,紧凑布局,缺点依然是卫生间是暗卫,北面卧室采光也仅仅是小开口的采光井。

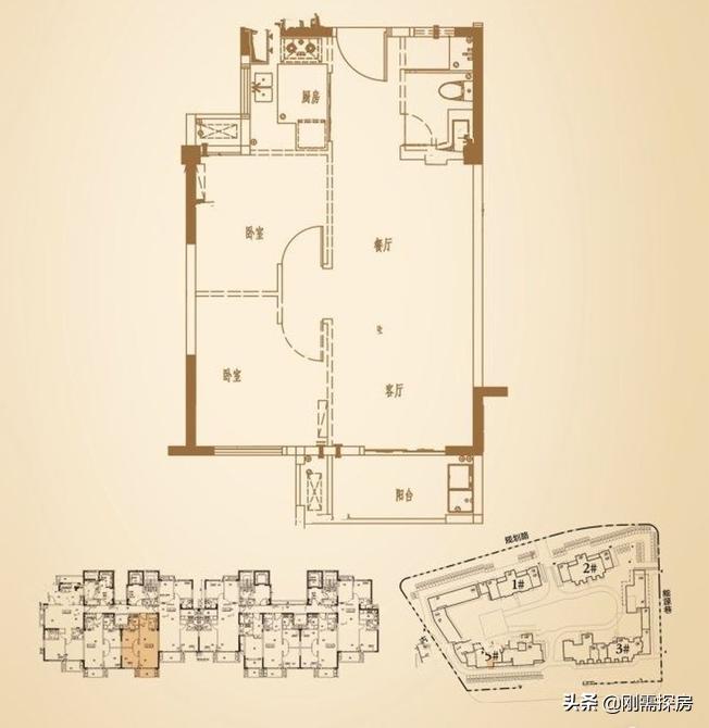
89平米:三房两厅一卫,双开间朝南,南面凸了个卧室,也算特殊,缺点在于仅一个卫生间还是暗卫,对比目前市面的89三开间布局而言,没有太大的优势。

区位情况
项目位于鼓楼区五一广场附近,距离二号线350米,距离在建的滨海快线350米,交通出行优势较大,距离五一广场750米,休闲购物有一定帮助,周边以老房龄社区为主,对于景观有一点影响,总的来说,区位较好。

价格情况
项目的商品房部分在2019年12月27日摇号开盘,商品房仅26套,备案均价3.8W,目前已经全部网签。

分析:对于项目而言,在2019年底摇号开盘,看到上面截图的摇号公告,可以说也是格外有记忆点。当时开盘基本都是备案价出来几天内,项目登报公告摇号,购房者去进行认筹,然后当天摇号选房。
由于有规范的流程,当时还有不少购房者在12345咨询项目的摇号情况,质疑项目是否有保留唯一的一套120产品,可以说整个购房过程还是相对透明。
对比现如今无证暗开,价外加价等乱象,当年的购房者可以说还是比较幸运。对于项目的备案价3.8W而言,近年鼓楼区也上市了几个高配比安商房,比如市中心的永安里、花满庭,梅峰路的群升左海悦等。
虽然备案价都在3.9W左右,不过不少项目都进行了加价,而且加价的幅度非常夸张,当然就算面对加价,个别项目甚至连买都买不到。
对于该盘而言,依靠当时的摇号限制,对于不少有意向市中心的购房者而言,虽然项目是安商房,但是还是能有机会购入。
楼盘总结
项目位于鼓楼区五一广场附近,优势在于区位较好,依靠摇号没有过多溢价,同时个别小户型对于投资客有一定吸引力,劣势在于高配比安商房,接近安置房,同时不少户型布局也相对一般。对于有意向的购房者而言,也只能等待后续安商房出证,观察二手市场的情况。
题外话
对于项目周边,还存在几个新盘,中建龙庭嘉园与项目类似,高配比安商房,备案价接近。当然对于目前周边关注度最高的,应该就属当年的阳光五一花园,项目已经拿地多年,目前也开始建设,在商品房部分打造了大平层产品,由于鼓楼区的供应短缺,未来售价预计也会刷新区域新高。