淡定,遇事波澜不惊,才会看清波诡云谲的多变。
用淡然的心态看待红尘万物,用心灵感受生活中的每一个细节。
让阳光的明媚冲淡心底的忧虑,携一抹淡淡的兰香,静观红尘过往。
嫣然一笑,在风轻云淡的日子里飘浅。

项目名称:首创漫香郡
项目面积:270㎡
户型结构:底复
设计风格:北欧现代
本案为北欧风格设计,以简约著称,具有很浓的后现代主义特色,注重流畅的线条设计,代表了一种时尚,回归自然,崇尚原木韵味,外加现代、实用、精美的艺术设计风格,正反映出现代都市人进入新时代的某种取向与旋律。

▲空间家具的选购与色彩以及布品的搭配协调、对称,让每一个细节的铺排都呈现出令人感觉舒适的气氛。

▲简单的背景以及吊顶造型是房子最大的特色,给房子留下无限的软装空间,让家的风格别具一格。

▲餐厅少了一些不必要的华丽,却多了一份自在。在这个餐厅里就餐,整个人的心都会变得更自由、慵懒。

▲拒绝蛊惑人心的虚华设计,追求自然的艺术智慧与灵感,给人一份宁静的北欧风情。

▲充足的光线从窗户洒进室内的每一角落,早上在阳光里醒来,晚上在星辰的相伴下入梦。

▲墙上的挂画给人一种流畅、明快的现代感,素色的墙面、原木装饰的顶面,更显精致。

▲负一层会客区不刻意去追求奢华,只是努力营造一种简单却又不失雅致品味的生活气氛。

▲在空间平面设计中追求流畅感,墙面、地面、顶面以及家具陈设乃至灯具器皿等,均以简洁的造型为主。

▲如一层以休闲为主,所以设计了台球厅,闲来和两三好友打球娱乐,享受的生活的乐趣。

▲负一层卧室营造了一份宁静稳重和浪漫舒适的情调,用色高雅,装饰元素搭配合宜,空间灵动而独具气质。

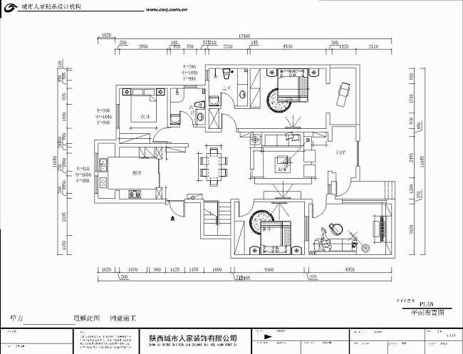
▲一层平面图

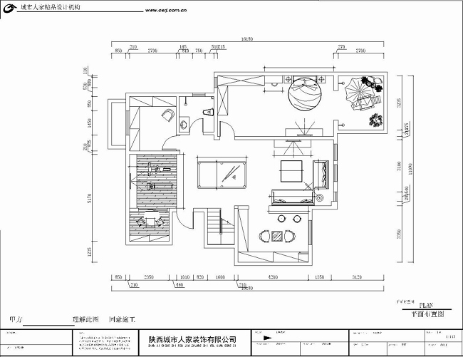
▲负一层平面图
★感谢阅读本文,如果喜欢这篇文章,欢迎分享到微信朋友圈,让更多的人看到。
★关注本文作者,每天精彩案例不断呈现。
★预约设计师、报名样板间,请私信小编(陕西地区)